📝 Aprašymas
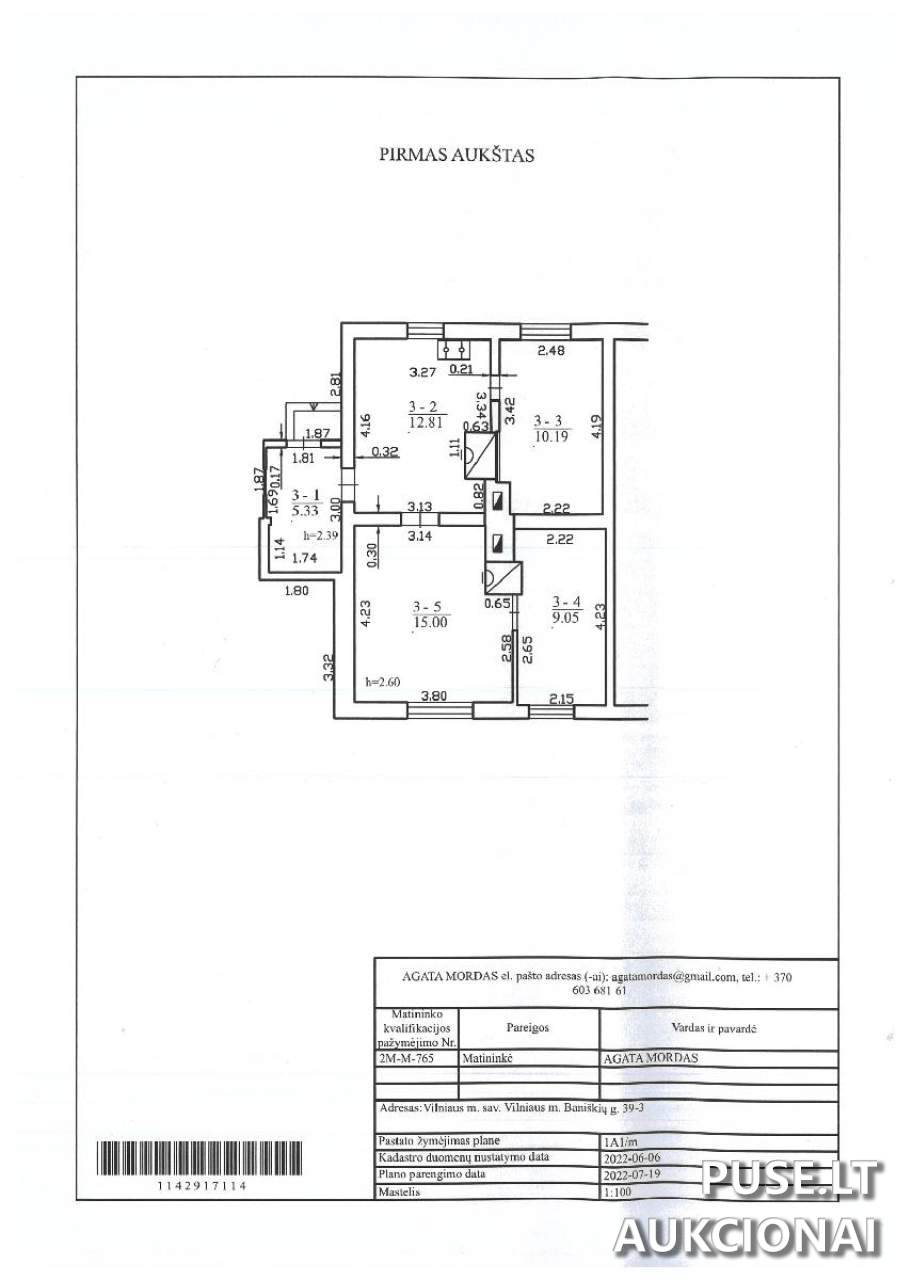
Parduodamas 52,38 kv.m. ploto butas Vilniaus miesto savivaldybėje, esantis vieno aukšto medinio pastato pirmame aukšte, adresu Baniškių g. 39-3, Vilnius. Tai yra savivaldybės skelbiamas pakartotinis turto pardavimo aukcionas, kurio pradinė kaina siekia 30132 EUR.
Objektas parduodamas esamos būklės. Svarbu atkreipti dėmesį į elektros tiekimo sąlygas: Savivaldybė negarantuoja nenutrūkstamo elektros tiekimo ar vidaus elektros tinklo techninės tvarkos. Galimi laikini elektros tiekimo apribojimai. Visi su elektros tinklų remontu, tiekimu ir atnaujinimu susiję klausimai, išlaidos ir rizika bei įsipareigojimai sprendžiami pirkėjo lėšomis ir rizika, palaikant ryšį su atitinkamomis institucijomis.
Šiam butui priklauso 1/1 nuosavybės dalis. Unikalus turto numeris yra 4400-0105-4142:5294.
Aukciono dalyviai privalo sumokėti 3013 EUR garantinį mokestį ir 145 EUR registracijos mokestį. Garantinis įnašas ir registracijos mokestis turi būti sumokėti iki elektroninio aukciono registracijos pabaigos. Pirkimo-pardavimo sutartis su laimėtoju sudaroma per 30 dienų nuo aukciono vykdymo dienos, o visa nekilnojamojo turto kaina sumokama ne vėliau kaip per 10 dienų po sutarties pasirašymo.
Galima apžiūrėti turtą 2026-04-10 11.00 val. ir 2026-04-17 11.00 val. Būtina iš anksto susitarti dėl apžiūros laiko su atsakingu specialistu Naujosios Vilnios seniūnijoje.
Objektas parduodamas esamos būklės. Svarbu atkreipti dėmesį į elektros tiekimo sąlygas: Savivaldybė negarantuoja nenutrūkstamo elektros tiekimo ar vidaus elektros tinklo techninės tvarkos. Galimi laikini elektros tiekimo apribojimai. Visi su elektros tinklų remontu, tiekimu ir atnaujinimu susiję klausimai, išlaidos ir rizika bei įsipareigojimai sprendžiami pirkėjo lėšomis ir rizika, palaikant ryšį su atitinkamomis institucijomis.
Šiam butui priklauso 1/1 nuosavybės dalis. Unikalus turto numeris yra 4400-0105-4142:5294.
Aukciono dalyviai privalo sumokėti 3013 EUR garantinį mokestį ir 145 EUR registracijos mokestį. Garantinis įnašas ir registracijos mokestis turi būti sumokėti iki elektroninio aukciono registracijos pabaigos. Pirkimo-pardavimo sutartis su laimėtoju sudaroma per 30 dienų nuo aukciono vykdymo dienos, o visa nekilnojamojo turto kaina sumokama ne vėliau kaip per 10 dienų po sutarties pasirašymo.
Galima apžiūrėti turtą 2026-04-10 11.00 val. ir 2026-04-17 11.00 val. Būtina iš anksto susitarti dėl apžiūros laiko su atsakingu specialistu Naujosios Vilnios seniūnijoje.
📍 Objekto lokacija
📍 Vilniaus m. sav. Vilniaus m. Baniškių g. 39-3
❓ Dažnai užduodami klausimai
Kokia yra pradinė buto Baniškių g. 39-3, Vilniuje, kaina?
Pradinė pardavimo kaina yra 30132 EUR.
Kada vyks nekilnojamojo turto aukcionas?
Aukcionas prasideda 2026-04-27 09:00:00 ir baigiasi 2026-04-28 13:59:59.
Kokie yra privalomi mokesčiai dalyvaujant aukcione?
Dalyviai turi sumokėti 3013 EUR garantinį mokestį ir 145 EUR registracijos mokestį.
Kada galima apžiūrėti parduodamą butą Vilniuje?
Galimos apžiūros datos yra 2026-04-10 11.00 val. ir 2026-04-17 11.00 val., suderinus laiką iš anksto.
Kokia yra nekilnojamojo turto registracijos vieta ir terminas?
Registracija į elektroninį aukcioną vyksta nuo 2026-04-20 00:00:00 iki 2026-04-22 23:59:59.
Kokie yra apribojimai dėl elektros tiekimo po buto įsigijimo?
Pirkėjas įsipareigoja spręsti visus su vidaus elektros tinklų remontu ir elektros tiekimo atnaujinimu susijusius klausimus savo lėšomis ir rizika, kadangi savivaldybė neteikia garantijų dėl tiekimo situacijos.