📝 Aprašymas
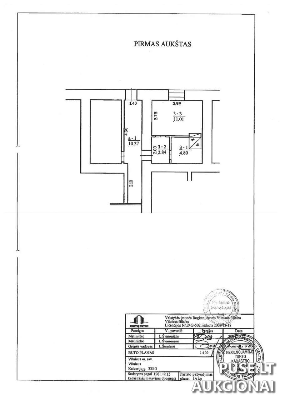
Parduodamas viešame pakartotiniame aukcione 1/1 dalis buto Vilniaus mieste, Kalvarijų gatvėje 335-3. Šis mažas 18,65 kv. m butas, esantis pirmajame vieno aukšto mūrinio pastato aukšte, apima ir 1,23 kv. m bendrojo naudojimo patalpų. Unikalus objekto numeris - 1094-0151-8014:0006. Objektas parduodamas esamos būklės, priklausantis Vilniaus miesto savivaldybei.
Svarbi ypatybė pirkėjui: Patalpos yra kultūros paveldo objekto - Namo (unikalaus kodo Kultūros vertybių registre 48460) teritorijoje. Todėl visos patalpų naudojimo, tvarkymo, remonto ar rekonstrukcijos darbų sąlygos yra griežtai reglamentuojamos Lietuvos Respublikos nekilnojamojo kultūros paveldo apsaugos įstatymu bei susijusiais teisės aktais. Būsimas savininkas turi įsipareigoti laikytis šių reikalavimų.
Kalbant apie inžinerinius tinklus, nėra nustatytų skolų už elektros energijos tiekimą. Tačiau Savivaldybė neįsipareigoja garantuoti nenutrūkstamą elektros tiekimą ar vidaus tinklų tvarkingumą. Pirkėjas prisiima atsakomybę ir įsipareigoja spręsti visus su elektros tiekimu ir vidaus tinklų remontu susijusius klausimus savo lėšomis ir rizika.
Turto apžiūros vyks 2026-04-07 14.00 val. ir 2026-04-14 14.00 val. Aukciono dalyviai turi pasiruošti mokėti 3006 EUR garantinį įnašą ir 145 EUR registracijos mokestį. Pirkimo-pardavimo sutartis turi būti pasirašyta per 30 dienų nuo aukciono pabaigos, o visa kaina sumokėta per 10 dienų po sutarties pasirašymo.
Svarbi ypatybė pirkėjui: Patalpos yra kultūros paveldo objekto - Namo (unikalaus kodo Kultūros vertybių registre 48460) teritorijoje. Todėl visos patalpų naudojimo, tvarkymo, remonto ar rekonstrukcijos darbų sąlygos yra griežtai reglamentuojamos Lietuvos Respublikos nekilnojamojo kultūros paveldo apsaugos įstatymu bei susijusiais teisės aktais. Būsimas savininkas turi įsipareigoti laikytis šių reikalavimų.
Kalbant apie inžinerinius tinklus, nėra nustatytų skolų už elektros energijos tiekimą. Tačiau Savivaldybė neįsipareigoja garantuoti nenutrūkstamą elektros tiekimą ar vidaus tinklų tvarkingumą. Pirkėjas prisiima atsakomybę ir įsipareigoja spręsti visus su elektros tiekimu ir vidaus tinklų remontu susijusius klausimus savo lėšomis ir rizika.
Turto apžiūros vyks 2026-04-07 14.00 val. ir 2026-04-14 14.00 val. Aukciono dalyviai turi pasiruošti mokėti 3006 EUR garantinį įnašą ir 145 EUR registracijos mokestį. Pirkimo-pardavimo sutartis turi būti pasirašyta per 30 dienų nuo aukciono pabaigos, o visa kaina sumokėta per 10 dienų po sutarties pasirašymo.
📍 Objekto lokacija
📍 Vilniaus m. sav. Vilniaus m. Kalvarijų g. 335-3
❓ Dažnai užduodami klausimai
Kokia yra pradinė buto Kalvarijų g. 335-3 kaina ir unikalus turto kodas?
Buto pradinė kaina aukcione yra 30069 EUR. Unikalus numeris aukcione registruojamas kaip 1094-0151-8014:0006.
Kada vyks nekilnojamojo turto aukcionas, kuriame parduodamas šis butas?
Aukcionas prasidės 2026-04-27 09:00:00 ir baigsis 2026-04-28 13:59:59.
Kokie yra papildomi mokesčiai dalyvaujant aukcione be pradinės kainos?
Dalyviai privalo sumokėti 3006 EUR garantinį mokestį ir 145 EUR registracijos mokestį.
Kokios pagrindinės sąlygos susijusios su buto buvimu kultūros paveldo objekte?
Patalpos yra Namo, kurio kodas Kultūros vertybių registre 48460, teritorijoje, todėl visus tvarkymo ir rekonstrukcijos darbus reglamentuoja Nekilnojamojo kultūros paveldo apsaugos įstatymas.
Kokie yra elektros tiekimo ir tinklų tvarkos apribojimai po buto įsigijimo?
Savivaldybė negarantuoja elektros tiekimo nenutrūkstamumo ar tinklų tvarkingumo; pirkėjas įsipareigoja visus su vidaus tinklų remontu susijusius klausimus spręsti savo lėšomis.
Kada galima apžiūrėti parduodamą butą Vilniuje?
Turto apžiūros numatytos 2026-04-07 14.00 val. ir 2026-04-14 14.00 val., jas būtina iš anksto suderinti.