📝 Aprašymas
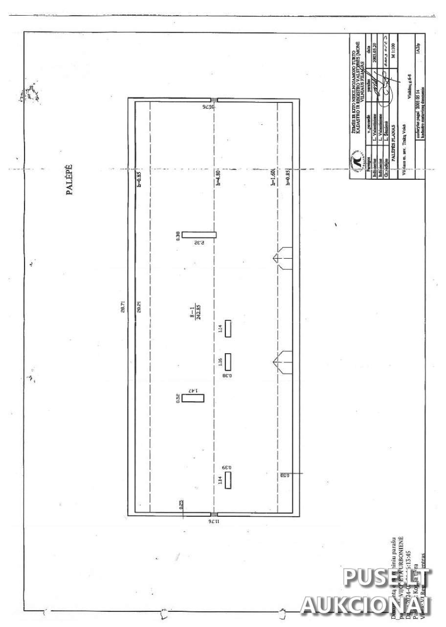
Parduodama 156/1000 dalis negyvenamosios patalpos-neįrengtos pastogės, esančios Vinkšnų g. 6, Vilniuje. Ši parduodama dalis sudaro 37,88 kv. m. iš bendro 242,85 kv. m. patalpų ploto. Unikalus parduodamos dalies identifikavimo numeris yra 1394-0001-0014:0009.
SVARBI SĄLYGA: Patalpos yra parduodamos esamos būklės. Ši vieta yra nekilnojamoji kultūros vertybė - tai Administracijos pastatas, turintis unikalų kultūros vertybių registro kodą 48795. Dėl šios priežasties, visų statybos (remonto, rekonstrukcijos) darbų reglamentavimas griežtai vykdomas pagal Lietuvos Respublikos nekilnojamojo kultūros paveldo apsaugos įstatymą ir kitus taikomus teisės aktus.
Aukcionas skelbiamas pakartotiniu būdu. Pradinė kaina siekia 6416 EUR. Dalyvio registracijos mokestis yra 70 EUR, o mokėtinas garantinis mokestis – 641 EUR. Šie mokesčiai turi būti sumokėti iki registracijos pabaigos.
Aukcionas vyks 2026-04-27 09:00:00 val. ir baigsis 2026-04-28 13:59:59 val. Registracija į elektroninį aukcioną vyksta nuo 2026-04-20 00:00:00 iki 2026-04-22 23:59:59.
Galimos turto apžiūros yra numatytos 2026-03-30 14:00 val. ir 2026-04-13 14:00 val. Su atsakingu specialistu apžiūros laiką būtina suderinti iš anksto. Pardavimo sutartis su laimėtoju sudaroma per 30 dienų nuo aukciono vykdymo dienos, o visa kaina turi būti sumokėta per 10 dienų po sutarties pasirašymo.
SVARBI SĄLYGA: Patalpos yra parduodamos esamos būklės. Ši vieta yra nekilnojamoji kultūros vertybė - tai Administracijos pastatas, turintis unikalų kultūros vertybių registro kodą 48795. Dėl šios priežasties, visų statybos (remonto, rekonstrukcijos) darbų reglamentavimas griežtai vykdomas pagal Lietuvos Respublikos nekilnojamojo kultūros paveldo apsaugos įstatymą ir kitus taikomus teisės aktus.
Aukcionas skelbiamas pakartotiniu būdu. Pradinė kaina siekia 6416 EUR. Dalyvio registracijos mokestis yra 70 EUR, o mokėtinas garantinis mokestis – 641 EUR. Šie mokesčiai turi būti sumokėti iki registracijos pabaigos.
Aukcionas vyks 2026-04-27 09:00:00 val. ir baigsis 2026-04-28 13:59:59 val. Registracija į elektroninį aukcioną vyksta nuo 2026-04-20 00:00:00 iki 2026-04-22 23:59:59.
Galimos turto apžiūros yra numatytos 2026-03-30 14:00 val. ir 2026-04-13 14:00 val. Su atsakingu specialistu apžiūros laiką būtina suderinti iš anksto. Pardavimo sutartis su laimėtoju sudaroma per 30 dienų nuo aukciono vykdymo dienos, o visa kaina turi būti sumokėta per 10 dienų po sutarties pasirašymo.
📍 Objekto lokacija
📍 Vilniaus m. sav. Vilniaus m. Vinkšnų g. 6
❓ Dažnai užduodami klausimai
Kokia neįrengtos palėpės Vinkšnų g. 6 dalies kaina ir parduodama ploto dalis?
Pradinė neįrengtos palėpės 156/1000 dalies (37,88 kv. m. iš 242,85 kv. m. bendro ploto) kaina yra 6416 EUR.
Kada baigiasi aukcionas ir kada vyksta registracija?
Aukcionas baigiasi 2026-04-28 13:59:59. Registracija vyksta nuo 2026-04-20 00:00:00 iki 2026-04-22 23:59:59.
Kokie yra privalomi mokesčiai dalyvaujant aukcione?
Dalyvis turi sumokėti 641 EUR garantinį mokestį ir 70 EUR registracijos mokestį.
Ar yra specialių sąlygų dėl nekilnojamojo kultūros paveldo objekto?
Taip, patalpos yra Administracijos pastate, kuris yra kultūros vertybė (kodas 48795). Naudojimas ir tvarkymas reglamentuojamas Kultūros paveldo apsaugos įstatymu.
Kokia yra apžiūros data ir kaip ją suderinti?
Apžiūros datos yra 2026-03-30 14:00 val. ir 2026-04-13 14:00 val. Apžiūros laiką būtina iš anksto suderinti su atsakingu darbuotoju.
Kokie yra galutinio pirkimo-pardavimo sutarties ir apmokėjimo terminai po laimėjimo?
Pirkimo-pardavimo sutartis sudaroma per 30 dienų nuo aukciono vykdymo dienos, o visa kaina turi būti sumokėta per 10 dienų po sutarties pasirašymo.