📝 Aprašymas
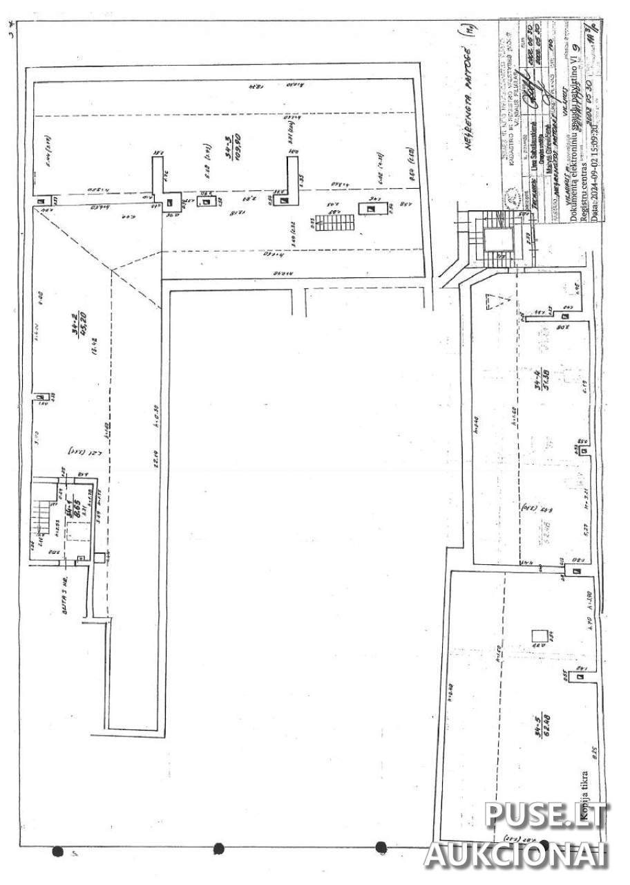
Parduodama neįrengtos pastogės dalis (4552/27761 dalis) Vilniaus miesto savivaldybėje, esanti adresu Žemaitijos g. 9, Vilnius. Šio pardavimo metu siūloma 45,52 kv. m dalis nuo bendro 277,61 kv. m ploto pastate. Pastatas yra mūrinis, trijų aukštų. Unikalus kodas - 1094-0478-0012:0065.
Objektas parduodamas esamos fizinės ir funkcinės būklės. Svarbu atkreipti dėmesį, kad neįrengta pastogės dalis yra atidalinta, tačiau po atidalinimo patalpų kadastriniai matavimai neatlikti ir neįregistruoti Nekilnojamojo turto registre bei kadastre.
Nors patalpos nėra įrašytos į Kultūros vertybių registrą, jos yra valstybės saugomos nekilnojamosios kultūros vertybės - Vilniaus senamiesčio, paskelbto kultūros paminklu (unikalus kodas Kultūros vertybių registre 16073) teritorijoje. Taip pat, jos yra Vilniaus senojo miesto ir priemiesčių archeologinėje vietovėje (unikalus kodas Kultūros vertybių registre 25504). Dėl to visos su šiuo objektu susijusios naudojimo, tvarkymo bei statybos (remonto, rekonstrukcijos) darbų sąlygos yra griežtai reglamentuojamos Lietuvos Respublikos nekilnojamojo kultūros paveldo apsaugos įstatymu ir kitais susijusiais teisės aktais.
Pradinė objekto kaina aukcione yra 38250 EUR. Garantinis mokestis siekia 3825 EUR, o registracijos mokestis - 145 EUR. Šie mokesčiai bei registracijos įnašas turi būti sumokėti iki registracijos į elektroninį aukcioną pabaigos.
Aukciono laimėtojo atsakomybės apima sutarties sudarymą per 30 dienų nuo pardavimo dienos, o pilna kaina turi būti sumokėta ne vėliau kaip per 10 dienų po pirkimo-pardavimo sutarties pasirašymo.
Objektas parduodamas esamos fizinės ir funkcinės būklės. Svarbu atkreipti dėmesį, kad neįrengta pastogės dalis yra atidalinta, tačiau po atidalinimo patalpų kadastriniai matavimai neatlikti ir neįregistruoti Nekilnojamojo turto registre bei kadastre.
Nors patalpos nėra įrašytos į Kultūros vertybių registrą, jos yra valstybės saugomos nekilnojamosios kultūros vertybės - Vilniaus senamiesčio, paskelbto kultūros paminklu (unikalus kodas Kultūros vertybių registre 16073) teritorijoje. Taip pat, jos yra Vilniaus senojo miesto ir priemiesčių archeologinėje vietovėje (unikalus kodas Kultūros vertybių registre 25504). Dėl to visos su šiuo objektu susijusios naudojimo, tvarkymo bei statybos (remonto, rekonstrukcijos) darbų sąlygos yra griežtai reglamentuojamos Lietuvos Respublikos nekilnojamojo kultūros paveldo apsaugos įstatymu ir kitais susijusiais teisės aktais.
Pradinė objekto kaina aukcione yra 38250 EUR. Garantinis mokestis siekia 3825 EUR, o registracijos mokestis - 145 EUR. Šie mokesčiai bei registracijos įnašas turi būti sumokėti iki registracijos į elektroninį aukcioną pabaigos.
Aukciono laimėtojo atsakomybės apima sutarties sudarymą per 30 dienų nuo pardavimo dienos, o pilna kaina turi būti sumokėta ne vėliau kaip per 10 dienų po pirkimo-pardavimo sutarties pasirašymo.
📍 Objekto lokacija
📍 Vilniaus m. sav. Vilniaus m. Žemaitijos g. 9
❓ Dažnai užduodami klausimai
Kokia yra neįrengtos pastogės dalies pradinė kaina ir su kokiais papildomais mokesčiais reikia ruoštis?
Pradinė kaina yra 38250 EUR. Papildomai mokamas 3825 EUR garantinis mokestis ir 145 EUR registracijos mokestis.
Kada vyks nekilnojamojo turto aukcionas Vilniuje, Žemaitijos g. 9?
Aukcionas prasideda 2026-04-27 09:00:00 ir baigiasi 2026-04-28 13:59:59.
Koks nekilnojamojo turto unikalus numeris ir kokio dydžio parduodama dalis?
Unikalus numeris 1094-0478-0012:0065. Parduodama 4552/27761 dalis, atitinkanti 45,52 kv. m ploto dalį iš bendro 277,61 kv. m ploto.
Kokie yra svarbiausi apribojimai, susiję su šia pastoge Vilniuje?
Objektas yra valstybės saugomos nekilnojamosios kultūros vertybės - Vilniaus senamiesčio teritorijoje, Todėl bet kokie statybos ar remonto darbai reglamentuojami Kultūros paveldo apsaugos įstatymu.
Kada galiu apžiūrėti parduodamą pastogės dalį adresu Žemaitijos g. 9?
Apžiūros numatytos 2026-04-07 10.00 val. ir 2026-04-14 10.00 val. Būtina iš anksto suderinti laiką su atsakingu specialistu.
Per kiek laiko po laimėjimo reikia pasirašyti sutartį ir sumokėti visą sumą?
Pirkimo-pardavimo sutartis turi būti sudaryta per 30 dienų nuo pardavimo aukcione dienos, o visa kaina turi būti sumokėta ne vėliau kaip per 10 dienų po sutarties pasirašymo.
Kokie yra registracijos terminai šiam aukcionui?
Registracija prasideda 2026-04-20 00:00:00 ir baigiasi 2026-04-22 23:59:59.