📝 Aprašymas
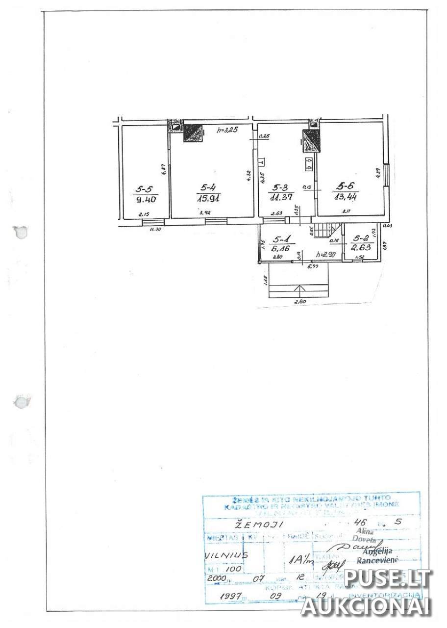
Parduodamas 58.91 kv. m. ploto butas Vilniaus mieste, Žemojoje g. 46-5, kurio pardavimo vieta yra pakartotinis savivaldybės aukcionas. Tai 1/1 dalies nuosavybės teisė į butą, esantį vieno aukšto medinio pastato pirmame aukšte. Objekto unikalus numeris yra 1094-0480-0015:0005, pažymėjimas plane 1A1/m.
SVARBI PARDAVIMO SĄLYGA: Patalpos parduodamos esamos būklės, po patirto gaisro. Nors skolų už elektros energijos tiekimą šiam objektui nėra, Savivaldybė negarantuoja elektros tiekimo nenutrūkstamumo ar vidaus elektros tinklo techninės tvarkos. Būsimas pirkėjas įsipareigoja visus susijusius remonto, elektros tiekimo atnaujinimo klausimus spręsti savo lėšomis ir rizika, bendradarbiaudamas tiesiogiai su atitinkamomis institucijomis.
Aukciono pradinė kaina sudaro 8771 EUR. Dalyviai turi sumokėti 877 EUR garantinį mokestį (10 proc. nuo pradinės kainos) bei 70 EUR registracijos mokestį. Garantinis įnašas ir registracijos mokestis turi būti sumokėti iki el. aukciono registracijos pabaigos, t. y. iki 2026-04-22 23:59:59.
Sutartis su laimėtoju sudaroma per 30 dienų nuo pardavimo aukcione vykdymo dienos. Visa pirkimo suma turi būti sumokėta ne vėliau kaip per 10 dienų po nekilnojamojo turto pirkimo-pardavimo sutarties pasirašymo.
Organizatorius yra Vilniaus miesto savivaldybės administracija (įmonės kodas 188710061). Sutarties projektus teikia Teisės grupės patarėja.
SVARBI PARDAVIMO SĄLYGA: Patalpos parduodamos esamos būklės, po patirto gaisro. Nors skolų už elektros energijos tiekimą šiam objektui nėra, Savivaldybė negarantuoja elektros tiekimo nenutrūkstamumo ar vidaus elektros tinklo techninės tvarkos. Būsimas pirkėjas įsipareigoja visus susijusius remonto, elektros tiekimo atnaujinimo klausimus spręsti savo lėšomis ir rizika, bendradarbiaudamas tiesiogiai su atitinkamomis institucijomis.
Aukciono pradinė kaina sudaro 8771 EUR. Dalyviai turi sumokėti 877 EUR garantinį mokestį (10 proc. nuo pradinės kainos) bei 70 EUR registracijos mokestį. Garantinis įnašas ir registracijos mokestis turi būti sumokėti iki el. aukciono registracijos pabaigos, t. y. iki 2026-04-22 23:59:59.
Sutartis su laimėtoju sudaroma per 30 dienų nuo pardavimo aukcione vykdymo dienos. Visa pirkimo suma turi būti sumokėta ne vėliau kaip per 10 dienų po nekilnojamojo turto pirkimo-pardavimo sutarties pasirašymo.
Organizatorius yra Vilniaus miesto savivaldybės administracija (įmonės kodas 188710061). Sutarties projektus teikia Teisės grupės patarėja.
📍 Objekto lokacija
📍 Vilniaus m. sav. Vilniaus m. Žemoji g. 46-5
❓ Dažnai užduodami klausimai
Kokia yra pradinė buto Žemojoje g. 46-5 kaina Vilniuje?
Buto pradinė kaina aukcione yra 8771 EUR.
Kada vyksta šis savivaldybės aukcionas?
Aukcionas prasideda 2026-04-27 09:00:00 ir baigiasi 2026-04-28 13:59:59.
Koks yra buto plotas ir koks jo unikalus numeris?
Buto plotas yra 58.91 kv. m. Unikalus numeris: 1094-0480-0015:0005.
Kokie papildomi mokesčiai privalomi dalyvaujant aukcione?
Privalomas 877 EUR garantinis įnašas ir 70 EUR registracijos mokestis.
Kada reikia pateikti registraciją į elektroninį aukcioną?
Registracija į elektroninį aukcioną baigiasi 2026-04-22 23:59:59.
Ar yra specifiškų sąlygų dėl turto būklės ar komunikacijų?
Butas parduodamas esamos būklės po gaisro. Pirkėjas pats atsako už elektros tinklo sutvarkymą ir atnaujinimą savo lėšomis.
Kada numatytos turto apžiūros?
Turto apžiūros numatytos 2026-04-07 10.00 val. ir 2026-04-15 10.00 val., jas būtina suderinti iš anksto.