📝 Aprašymas
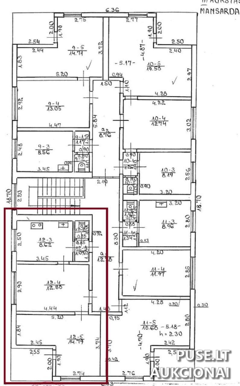
Parduodamas 1/1 dalis buto bendrojoje nuosavybėje, esančio Kelmės rajono savivaldybėje, Vaiguvos seniūnijoje, Vaiguvos kaime, Kaštonų gatvėje 10-12. Šis nekilnojamasis turtas parduodamas pradinėje 171 EUR kainoje. Unikalus turto kodas yra 5497-1008-9013:0012.
Svarbu atkreipti dėmesį, kad nekilnojamasis turtas parduodamas esamos faktinės būklės ir pagal neatnaujintus nekilnojamojo turto kadastro duomenis. Pardavėjas - VĮ Turto bankas, neįsipareigoja nustatyti aktualios kadastro duomenų būklės ar iškraustyti jame esančių daiktų.
Butas yra avariniame name. Avaringumas nustatytas Kelmės rajono savivaldybės 2014 metais. Pastatas yra apleistas, išplėštas, nesandarus ir aptvertas stop juosta kaip pavojingas aplinkiniams. Pirkėjas priima šias sąlygas.
Būtina sumokėti 17 EUR dydžio garantinį mokestį ir 1 EUR registracijos mokestį. Aukcionas prasideda 2026-04-09 09:00:00 ir baigiasi 2026-04-10 13:59:59. Registracija dalyviams vyksta nuo 2026-04-01 00:00:00 iki 2026-04-03 23:59:59.
Apžiūros organizuojamos iš anksto individualiai suderinus laiką, bet tik iki aukciono registracijos pradžios. Dėl apžiūros galite kreiptis į atsakingą asmenį (duomenys pašalinti).
Sutarties projektai yra skelbiami viešai nuorodoje. Dėl detalesnės informacijos apie pirkimo-pardavimo sutartis galite kreiptis į VĮ Turto bankas Pardavimų administravimo grupę.
Svarbu atkreipti dėmesį, kad nekilnojamasis turtas parduodamas esamos faktinės būklės ir pagal neatnaujintus nekilnojamojo turto kadastro duomenis. Pardavėjas - VĮ Turto bankas, neįsipareigoja nustatyti aktualios kadastro duomenų būklės ar iškraustyti jame esančių daiktų.
Butas yra avariniame name. Avaringumas nustatytas Kelmės rajono savivaldybės 2014 metais. Pastatas yra apleistas, išplėštas, nesandarus ir aptvertas stop juosta kaip pavojingas aplinkiniams. Pirkėjas priima šias sąlygas.
Būtina sumokėti 17 EUR dydžio garantinį mokestį ir 1 EUR registracijos mokestį. Aukcionas prasideda 2026-04-09 09:00:00 ir baigiasi 2026-04-10 13:59:59. Registracija dalyviams vyksta nuo 2026-04-01 00:00:00 iki 2026-04-03 23:59:59.
Apžiūros organizuojamos iš anksto individualiai suderinus laiką, bet tik iki aukciono registracijos pradžios. Dėl apžiūros galite kreiptis į atsakingą asmenį (duomenys pašalinti).
Sutarties projektai yra skelbiami viešai nuorodoje. Dėl detalesnės informacijos apie pirkimo-pardavimo sutartis galite kreiptis į VĮ Turto bankas Pardavimų administravimo grupę.
📍 Objekto lokacija
📍 Kelmės r. sav. Vaiguvos k. Kaštonų g. 10-12
❓ Dažnai užduodami klausimai
Kokia yra nekilnojamojo turto Kaštonų g. 10-12 pradinė kaina ir kokie yra papildomi mokesčiai?
Buto pradinė kaina yra 171 EUR. Papildomai reikia mokėti 17 EUR garantinį mokestį ir 1 EUR registracijos mokestį.
Kada vyksta aukcionas dėl buto Kelmės r. savivaldybėje?
Aukcionas prasideda 2026-04-09 09:00:00 ir baigiasi 2026-04-10 13:59:59 Valstybės įmonės Turto banko sistemoje.
Kokios yra registracijos aukcionui datos ir terminai?
Registracija į aukcioną prasideda 2026-04-01 00:00:00 ir baigiasi 2026-04-03 23:59:59.
Kokia yra pagrindinė turto būklė, kurią turi žinoti potencialūs pirkėjai?
Butas yra avariniame name (avaringumas nustatytas 2014 m.), pastatas yra apleistas, išplėštas, nesandarus ir aptvertas stop juosta kaip pavojingas.
Ar Turto bankas atnaujins kadastro duomenis ar iškraustys esamus daiktus prieš parduodant?
Ne, nekilnojamasis turtas parduodamas esamos faktinės būklės ir pagal neatnaujintus kadastro duomenis. VĮ Turto bankas neįsipareigoja nustatyti aktualios būklės ar iškraustyti esamų daiktų.
Koks yra parduodamo buto bendras plotas ir unikalus kodas?
Buto bendras plotas yra 49.65 kv. m, o unikalus numeris yra 5497-1008-9013:0012.