📝 Aprašymas
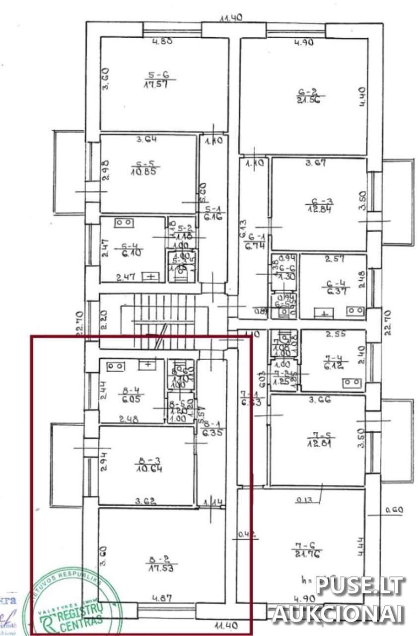
Parduodamas 42.87 kv. m bendro ploto butas Kelmės rajono savivaldybėje, Vaiguvos kaimo, Kaštonų g. 10-8. Šis nekilnojamasis turtas parduodamas esamos faktinės būklės, remiantis neatnaujintais kadastro duomenimis. Valstybės įmonė Turto bankas neįsipareigoja atnaujinti kadastro duomenų ar iškraustyti jame esančių daiktų, tai yra svarbi sąlyga pirkėjui.
Objektas yra parduodamas tiesiogiai iš valstybės turto - Lietuvos Respublikos.
Butas randasi avariniame name, kurio avaringumas nustatytas Kelmės rajono savivaldybės sprendimu 2014 metais. Pastatas šiuo metu yra apleistas, išplėštas, nesandarus ir aptvertas stop juosta, klasifikuojamas kaip pavojingas aplinkiniams. Pirkėjas priima šią būklę be pretenzijų.
Pradinė buto kaina aukcione yra 180 EUR. Registracijos mokestis siekia 1 EUR, o garantinis mokestis yra 18 EUR. Aukcionas prasideda 2026-04-09 09:00:00 ir baigiasi 2026-04-10 13:59:59. Dalyvių registracija vyksta nuo 2026-04-01 00:00:00 iki 2026-04-03 23:59:59.
Mokėjimus (registracijos mokestį ir garantinį įnašą) galima atlikti per NEOPAY sistemą arba bankiniu pavedimu į AB SEB banko sąskaitą LT85 7044 0901 0022 1537, nurodant konkretaus aukciono numerį paskirtyje.
Potencialiems pirkėjams, norintiems apžiūrėti turtą, reikia kreiptis individualiai, suderinant laiką iki aukciono registracijos pradžios. Sutarčių projektai ir detali informacija skelbiama nurodytose nuorodose Valstybės įmonės Turto bankas svetainėje.
Objektas yra parduodamas tiesiogiai iš valstybės turto - Lietuvos Respublikos.
Butas randasi avariniame name, kurio avaringumas nustatytas Kelmės rajono savivaldybės sprendimu 2014 metais. Pastatas šiuo metu yra apleistas, išplėštas, nesandarus ir aptvertas stop juosta, klasifikuojamas kaip pavojingas aplinkiniams. Pirkėjas priima šią būklę be pretenzijų.
Pradinė buto kaina aukcione yra 180 EUR. Registracijos mokestis siekia 1 EUR, o garantinis mokestis yra 18 EUR. Aukcionas prasideda 2026-04-09 09:00:00 ir baigiasi 2026-04-10 13:59:59. Dalyvių registracija vyksta nuo 2026-04-01 00:00:00 iki 2026-04-03 23:59:59.
Mokėjimus (registracijos mokestį ir garantinį įnašą) galima atlikti per NEOPAY sistemą arba bankiniu pavedimu į AB SEB banko sąskaitą LT85 7044 0901 0022 1537, nurodant konkretaus aukciono numerį paskirtyje.
Potencialiems pirkėjams, norintiems apžiūrėti turtą, reikia kreiptis individualiai, suderinant laiką iki aukciono registracijos pradžios. Sutarčių projektai ir detali informacija skelbiama nurodytose nuorodose Valstybės įmonės Turto bankas svetainėje.
📍 Objekto lokacija
📍 Kelmės r. sav. Vaiguvos k. Kaštonų g. 10-8
❓ Dažnai užduodami klausimai
Kokia nekilnojamojo turto Kaštonų g. 10-8 pradinė kaina aukcione?
Buto pradinė kaina aukcione yra 180 EUR.
Kada vyksta Turto banko aukcionas dėl buto Kelmės r. savivaldybėje?
Aukcionas prasideda 2026-04-09 09:00:00 ir baigiasi 2026-04-10 13:59:59.
Kiek kainuoja dalyvavimas aukcione (registracijos ir garantinis mokestis)?
Registracijos mokestis yra 1 EUR, o garantinis mokestis siekia 18 EUR.
Koks yra parduodamo turto plotas ir unikalus numeris?
Buto bendras plotas yra 42.87 kv. m, o unikalus Nr. yra 5497-1008-9013:0008.
Kokia yra šio buto pastato būklė?
Butas yra avariniame pastate, kurio avaringumas nustatytas 2014 m. Pastatas apibūdinamas kaip apleistas, išplėštas ir aptvertas stop juosta kaip pavojingas.
Ar pardavėjas įsipareigoja atnaujinti turto kadastro duomenis ar iškraustyti daiktus?
Ne, Valstybės įmonė Turto bankas neįsipareigoja nustatyti aktualios kadastro būklės ar iškraustyti jame esančių daiktų. Turtas parduodamas esamos faktinės būklės.