📝 Aprašymas
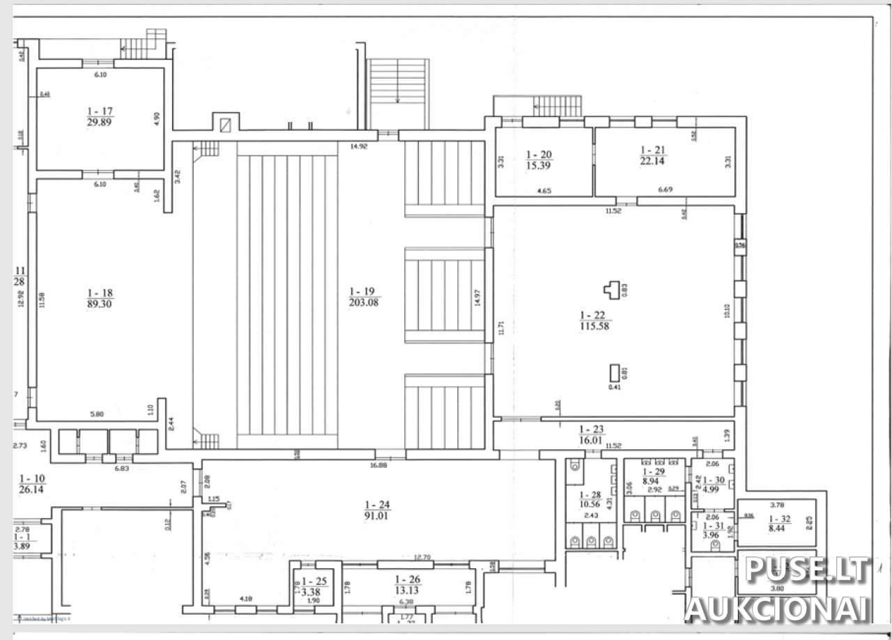
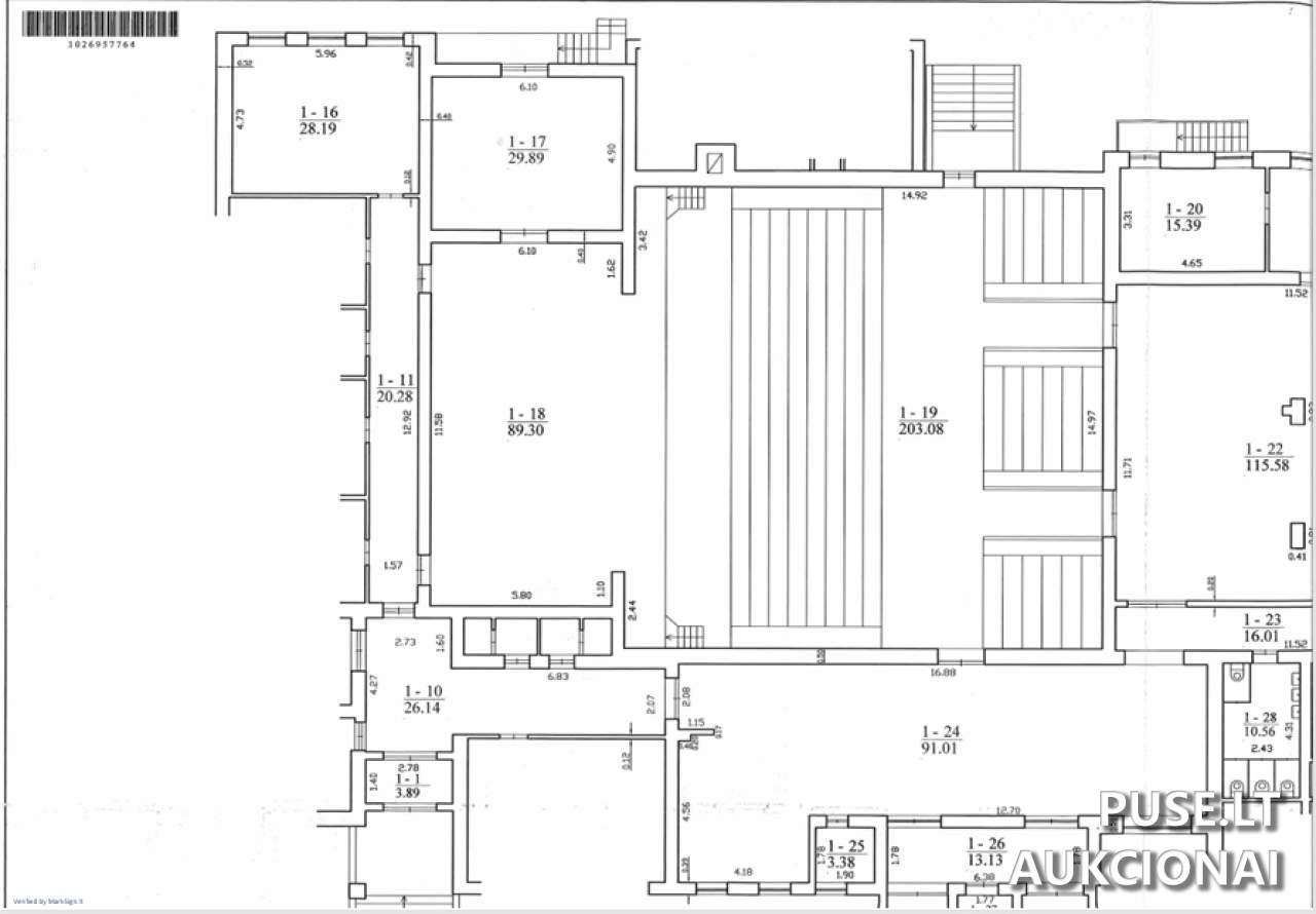
Parduodama nekilnojamojo turto dalis viešame savivaldybės aukcione: kultūros namų patalpos, esančios Šilutės rajono savivaldybės teritorijoje, Inkaklių kaime, Ašvos g. 4-2. Tai 32227/67388 dalis bendro turto. Pardavimo pradinė kaina yra 10350 EUR. Unikalus turto numeris, reikalingas identifikavimui, yra 4400-2131-9682:2273. Parduodama dalis apima konkrečias patalpų pažymėtas plane: 1-17, 1-18, 1-19, kurių bendras plotas siekia 322,27 kv. m. Taip pat parduodamos ir bendro naudojimo patalpos: 1-1 (dalį 1/2 iš 3,89 kv. m) ir 1-10 (dalį 1/2 iš 26,14 kv. m). Bendras parduodamo viso nekilnojamojo turto plotas yra 673,88 kv. m, tačiau parduodama tik nurodyta dalis.
Pardavimo sąlyga numato, kad Šilutės rajono savivaldybės administracija neįsipareigoja iškraustyti iš parduodamų patalpų esančių daiktų. Pardavėjas yra Šilutės rajono savivaldybė, o aukcioną organizuoja Šilutės rajono savivaldybės administracija (įmonės kodas 188723322).
Aukciono registracija prasideda 2026-04-21 00:00:00 ir baigiasi 2026-04-22 23:59:59. Pats elektroninis aukcionas vyks nuo 2026-04-27 09:00:00 iki 2026-04-28 13:59:59. Būtina sumokėti 1035 EUR garantinį mokestį ir 50 EUR registracijos mokestį iki registracijos termino pabaigos. Garantinis įnašas bus grąžinamas, jeigu dalyvis nelaimės aukciono.
Turto apžiūra organizuojama laiku nuo 2026-04-13 iki 2026-04-17 d. d. Dėl detalių ir sutarčių projektų teikiama informacija kreiptis į Šilutės rajono savivaldybės administracijos Ūkio skyrių. Apmokėjimas už įgytą turtą turi būti atliktas ne vėliau kaip per 10 dienų po pirkimo-pardavimo sutarties pasirašymo, kuri turi būti sudaryta per 30 dienų nuo pardavimo dienos.
Pardavimo sąlyga numato, kad Šilutės rajono savivaldybės administracija neįsipareigoja iškraustyti iš parduodamų patalpų esančių daiktų. Pardavėjas yra Šilutės rajono savivaldybė, o aukcioną organizuoja Šilutės rajono savivaldybės administracija (įmonės kodas 188723322).
Aukciono registracija prasideda 2026-04-21 00:00:00 ir baigiasi 2026-04-22 23:59:59. Pats elektroninis aukcionas vyks nuo 2026-04-27 09:00:00 iki 2026-04-28 13:59:59. Būtina sumokėti 1035 EUR garantinį mokestį ir 50 EUR registracijos mokestį iki registracijos termino pabaigos. Garantinis įnašas bus grąžinamas, jeigu dalyvis nelaimės aukciono.
Turto apžiūra organizuojama laiku nuo 2026-04-13 iki 2026-04-17 d. d. Dėl detalių ir sutarčių projektų teikiama informacija kreiptis į Šilutės rajono savivaldybės administracijos Ūkio skyrių. Apmokėjimas už įgytą turtą turi būti atliktas ne vėliau kaip per 10 dienų po pirkimo-pardavimo sutarties pasirašymo, kuri turi būti sudaryta per 30 dienų nuo pardavimo dienos.
📍 Objekto lokacija
📍 Šilutės r. sav. Inkaklių k. Ašvos g. 4-2
❓ Dažnai užduodami klausimai
Kokia yra nekilnojamojo turto dalies pradinė kaina ir garantinis įnašas?
Nekilnojamojo turto dalies pradinė kaina yra 10350 EUR. Garantinis mokestis, kurį reikia sumokėti, siekia 1035 EUR.
Kada vyks elektroninis aukcionas šiam objektui?
Elektroninis aukcionas vyks 2026-04-27 09:00:00 prasideda ir baigiasi 2026-04-28 13:59:59.
Kokios yra parduodamos dalies ir bendro ploto charakteristikos?
Parduodama dalis yra 32227/67388. Pardavimas apima 322,27 kv. m nuosavybės (patalpos 1-17, 1-18, 1-19) ir bendro naudojimo patalpas (1-1 ir 1-10 dalys). Bendra viso objekto kvadratūra yra 673,88 kv. m.
Kokie yra registracijos terminai dalyvavimui aukcione?
Registracija aukcionui prasideda 2026-04-21 00:00:00 ir privalo būti baigta iki 2026-04-22 23:59:59. Registracijos mokestis yra 50 EUR.
Kur yra parduodamas objektas ir koks jo unikalus numeris?
Objektas (kultūros namų patalpos dalis) yra Šilutės r. sav., Inkaklių k., Ašvos g. 4-2. Unikalus numeris yra 4400-2131-9682:2273.
Kada galima apžiūrėti turtą prieš aukcioną?
Turto apžiūra vyksta nuo 2026-04-13 iki 2026-04-17 d. d.
Kokie yra pagrindiniai atsiskaitymo terminai po aukciono laimėjimo?
Pirkimo-pardavimo sutartis turi būti sudaryta per 30 dienų, o visa kaina sumokėta ne vėliau kaip per 10 dienų po sutarties pasirašymo.