📝 Aprašymas
Vyksta antstolių varžytynės parduodant 4325/8019 dalį buto, esančio Klaipėdos rajono savivaldybėje, Vytaučių kaime, Kuršelių gatvėje 9-3. Šiuo metu nustatyta pradinė pardavimo kaina siekia 5504 EUR. Pardavimas yra susijęs su nekilnojamojo turto areštu.
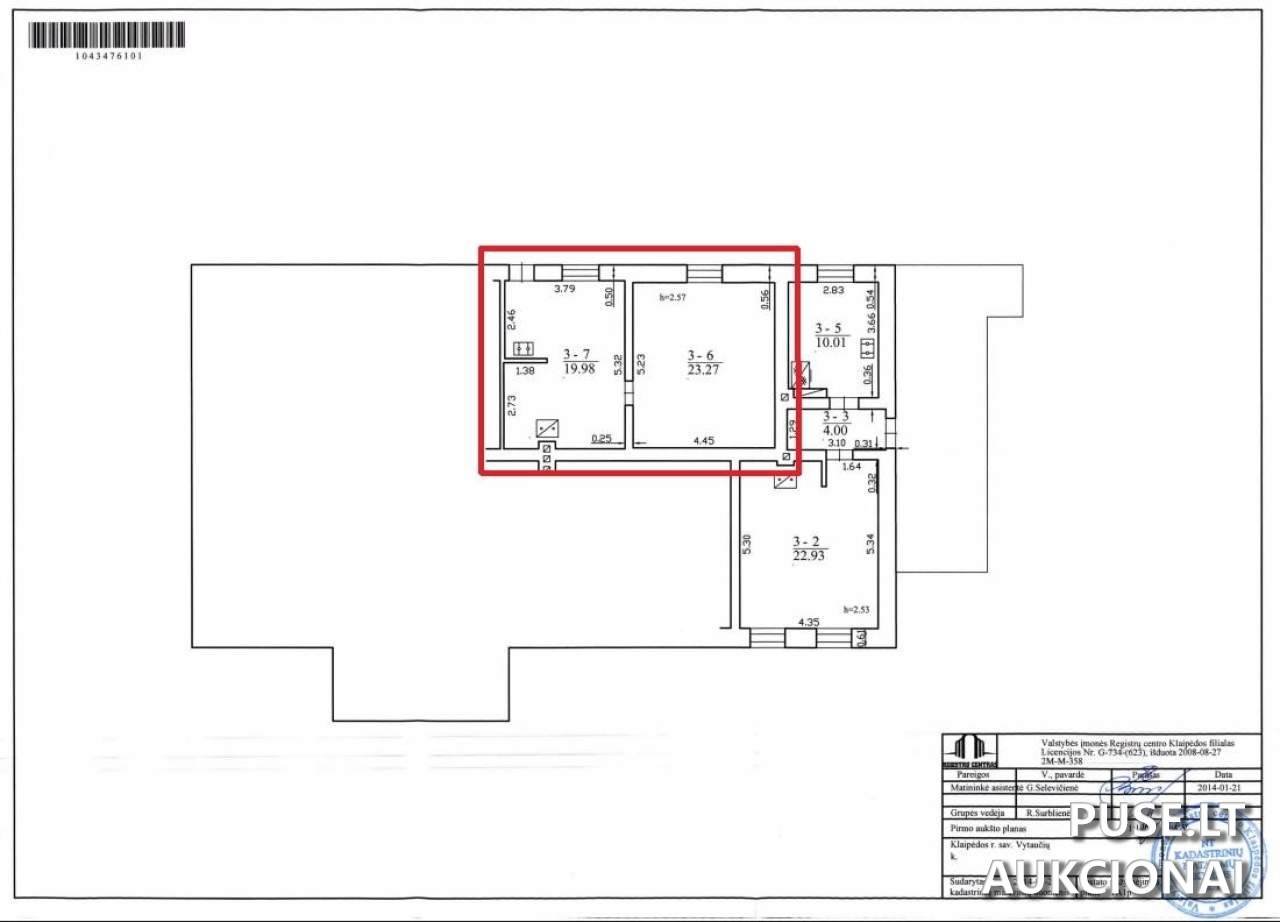
Išvaržoma 43,25 kv. m. buto dalis, kuri sudaro 4325/8019 viso buto dalies dalį. Bendras viso buto plotas yra 80,19 kv. m. Pastatas statybos metai yra 1915, o patalpų baigtumo procentas siekia 84 proc.
Buto dalis yra fiziškai pažeista. Nustatyta ir viešajame registre įregistruota naudojimosi tvarka. Varžytynėse parduodamos dvi buto patalpos: 3-6 indeksu pažymėta patalpa (23,27 kv. m.) ir 3-7 indeksu pažymėta patalpa (19,98 kv. m.). Šiomis patalpomis išvaržomo turto savininkas naudojasi atskirai nuo kitų buto bendraturčių.
Komunikacijos yra specifiškos: šildymas yra krosninis, tačiau vandentiekis, nuotekų šalinimas ir dujos nėra įrengtos. Varžytynėse dalyvaujantiems asmenims rekomenduojama vykti į vietą apžiūrai.
Pardavimo procesą organizuoja Antstolės B. Tamkevičienės kontora.
Išvaržoma 43,25 kv. m. buto dalis, kuri sudaro 4325/8019 viso buto dalies dalį. Bendras viso buto plotas yra 80,19 kv. m. Pastatas statybos metai yra 1915, o patalpų baigtumo procentas siekia 84 proc.
Buto dalis yra fiziškai pažeista. Nustatyta ir viešajame registre įregistruota naudojimosi tvarka. Varžytynėse parduodamos dvi buto patalpos: 3-6 indeksu pažymėta patalpa (23,27 kv. m.) ir 3-7 indeksu pažymėta patalpa (19,98 kv. m.). Šiomis patalpomis išvaržomo turto savininkas naudojasi atskirai nuo kitų buto bendraturčių.
Komunikacijos yra specifiškos: šildymas yra krosninis, tačiau vandentiekis, nuotekų šalinimas ir dujos nėra įrengtos. Varžytynėse dalyvaujantiems asmenims rekomenduojama vykti į vietą apžiūrai.
Pardavimo procesą organizuoja Antstolės B. Tamkevičienės kontora.
📍 Objekto lokacija
📍 Klaipėdos r. sav. Vytaučių k. Kuršelių g. 9-3
❓ Dažnai užduodami klausimai
Kokia pradinė kaina parduodamai buto daliai Klaipėdos r. sav.?
Pradinė kaina, už kurią pradedamos antstolių varžytynės, yra 5504 EUR už 4325/8019 dalį buto.
Kada baigiasi aukcionas, kuriame parduodamas turtas Kuršelių g. 9?
Aukcionas prasideda 2026-03-17 09:18:43 ir baigiasi 2026-04-16 09:18:59.
Koks yra parduodamos buto dalies plotas ir bendras buto plotas?
Išvaržomos buto dalies plotas yra 43,25 kv. m. (4325/8019 dalis). Bendras viso buto plotas yra 80,19 kv. m.
Ar yra įvestos komunikacijos parduodamose patalpose Vytaučių kaime?
Patalpose yra krosninis šildymas, tačiau nėra vandentiekio, nuotekų šalinimo ar dujų.
Kokios patalpos tiksliai parduodamos pagal naudojimosi tvarką?
Parduodamos dvi patalpos: 3-6 (23,27 kv. m) ir 3-7 (19,98 kv. m), kuriomis savininkas naudojasi atskirai.
Kokia juridinė informacija apibūdina parduodamą turtą?
Turtui taikomas nekilnojamojo turto areštas, o unikalus numeris yra 4400-0669-6333:6333.