📝 Aprašymas
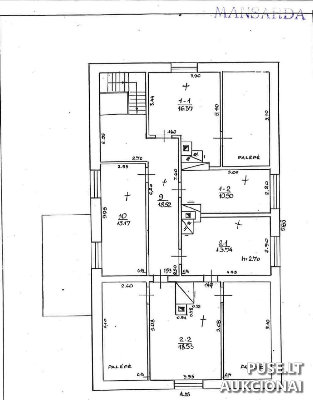
Pakartotinis mokyklos pastato pardavimas viešame aukcione Tauragės rajono savivaldybėje. Pardavimo pradinė kaina sudaro 7900 EUR. Nekilnojamasis turtas (unikalus numeris 7796-0013-5015) yra buvusi mokykla, kurios bendras plotas yra 245,46 kv. m. Pastato pažymėjimas plane yra 1C1p. Pagrindinė daikto naudojimo paskirtis yra Kultūros. Pastato statybos metai – 1960.
Nekilnojamasis turtas parduodamas esamos būklės. Tauragės rajono savivaldybė neįsipareigoja iškraustyti patalpose esančių daiktų. Šildymo sistema yra krosninis šildymas, tačiau vandentiekis ir nuotekų šalinimas (kanalizacija) nėra įrengti.
Dėl pradinės būklės ir neapibrėžtų komunikacijų, šis objektas gali būti įdomus investuotojams, ieškantiems plėtros ar pritaikymo galimybių Tauragės rajone. Svarbu pažymėti, kad nurodytas nekilnojamasis turtas nepatenka į valstybės saugomas kultūros paveldo vietoves.
Aukcionas prasideda 2026-04-15 09:00:00 ir baigiasi 2026-04-16 13:59:59. Dalyvio registracija vyksta nuo 2026-04-09 00:00:00 iki 2026-04-10 23:59:59. Garantinis mokestis yra 790 EUR, o registracijos mokestis – 60 EUR. Jei laimite, visa kaina turi būti sumokėta per 10 dienų po pirkimo-pardavimo sutarčių pasirašymo. Pirkėjas apmoka visas su turto perleidimu susijusias išlaidas.
Turto apžiūra galima susitarus iš anksto su Tauragės rajono savivaldybės administracijos specialistais.
Nekilnojamasis turtas parduodamas esamos būklės. Tauragės rajono savivaldybė neįsipareigoja iškraustyti patalpose esančių daiktų. Šildymo sistema yra krosninis šildymas, tačiau vandentiekis ir nuotekų šalinimas (kanalizacija) nėra įrengti.
Dėl pradinės būklės ir neapibrėžtų komunikacijų, šis objektas gali būti įdomus investuotojams, ieškantiems plėtros ar pritaikymo galimybių Tauragės rajone. Svarbu pažymėti, kad nurodytas nekilnojamasis turtas nepatenka į valstybės saugomas kultūros paveldo vietoves.
Aukcionas prasideda 2026-04-15 09:00:00 ir baigiasi 2026-04-16 13:59:59. Dalyvio registracija vyksta nuo 2026-04-09 00:00:00 iki 2026-04-10 23:59:59. Garantinis mokestis yra 790 EUR, o registracijos mokestis – 60 EUR. Jei laimite, visa kaina turi būti sumokėta per 10 dienų po pirkimo-pardavimo sutarčių pasirašymo. Pirkėjas apmoka visas su turto perleidimu susijusias išlaidas.
Turto apžiūra galima susitarus iš anksto su Tauragės rajono savivaldybės administracijos specialistais.
📍 Objekto lokacija
📍 Tauragės r. sav. Gedgaudiškės k. Kryžkalnio g. 23
❓ Dažnai užduodami klausimai
Kokia pradinė nekilnojamojo turto kaina aukcione?
Pradinė nekilnojamojo turto kaina yra 7900 EUR.
Kada vyksta aukcionas, kuriame parduodama mokykla Gedgaudiškėje?
Aukcionas prasideda 2026-04-15 09:00:00 ir baigiasi 2026-04-16 13:59:59.
Kokie mokami mokesčiai norint dalyvauti aukcione?
Dalyvio registracijos mokestis yra 60 EUR, o garantinis įnašas yra 790 EUR. Abu turi būti sumokėti iki registracijos pabaigos.
Koks parduodamo pastato plotas ir pagrindinė paskirtis?
Pastato bendras plotas yra 245,46 kv. m. Pagrindinė naudojimo paskirtis yra Kultūros.
Ar viešbutyje yra įvadai vandentiekiui ir nuotekų šalinimui?
Ne, nurodoma, kad vandentiekis ir nuotekų šalinimas (kanalizacija) šiame objekte nėra įrengti (nėra).
Kokia parduodamo objekto registracijos procedūros pabaigos data?
Dalyvio registracija į elektroninį aukcioną baigiasi 2026-04-10 23:59:59.
Koks yra objekto unikalus numeris ir ar jis saugomas kaip kultūros paveldas?
Nekilnojamojo turto unikalus numeris yra 7796-0013-5015. Jis nepatenka į valstybės saugomas kultūros paveldo vietas.