📝 Aprašymas
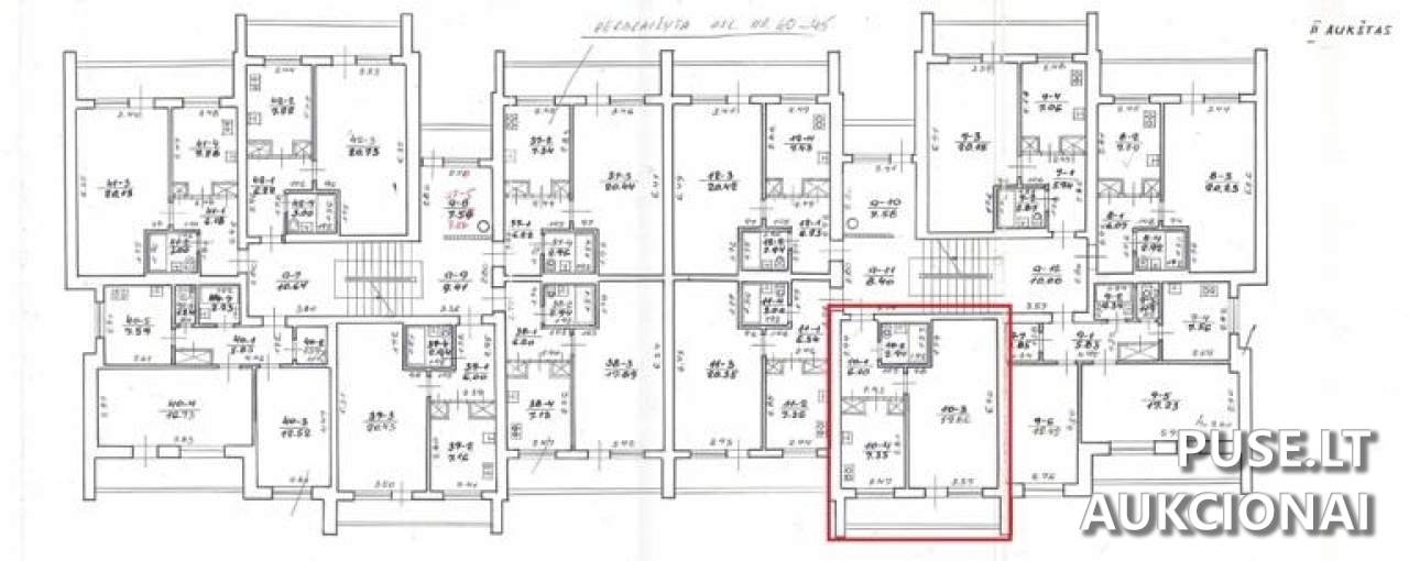
Parduodamas 1/1 dalies nuosavybės teise priklausantis nedidelis butas Šiaulių mieste, Klevų gatvėje 9-10, su 2.63 kv. m rūsiu. Šis pirminis nekilnojamojo turto pardavimas per Turto banko aukcioną prasideda nuo 56800 EUR pradinės kainos. Bendra buto naudingoji plotas yra 36.25 kv. m.
Nekilnojamasis turtas parduodamas esamos fizinės ir funkcinės būklės. Svarbu žinoti, kad VĮ Turto bankas neįsipareigoja atlikti esamos turto kadastro duomenų būklės nustatymo ar iškraustyti jame esančių daiktų, jei tokių yra. Butui priskirtas rūsys yra klasifikuojamas kaip bendrojo naudojimo patalpa, kurios tiksli vieta ir indeksas nenustatyti. Kadangi daugiabučio namo bendrojo naudojimo patalpos yra bendrosios dalinės nuosavybės objektas, visus klausimus dėl jų valdymo, naudojimo ir vietos nustatymo sprendžia bendraturčiai, kurie šiuo metu nėra sudarę susitarimų dėl naudojimosi tvarkos.
Gyvenamasis namas, kuriame yra butas, yra valstybinėje žemėje, kurios sklypas nėra suformuotas. Todėl teisės į žemės sklypą nėra perleidžiamos. Unikalus turto numeris 2998-5004-8015:0010.
Aukciono registracija vyksta ribotu laiku: ji prasideda 2026-04-27 ir baigiasi 2026-04-29 23:59:59. Pats aukcionas vyks 2026-05-05 09:00:00 iki 2026-05-06 13:59:59. Būtina sumokėti 60 EUR registracijos mokestį ir 5680 EUR garantinį mokestį. Mokėjimai priimami per NEOPAY arba bankiniu pavedimu, nurodant el. aukciono numerį. Sutarčių projektai su suinteresuotais asmenimis gali būti peržiūrėti iš anksto.
Nekilnojamasis turtas parduodamas esamos fizinės ir funkcinės būklės. Svarbu žinoti, kad VĮ Turto bankas neįsipareigoja atlikti esamos turto kadastro duomenų būklės nustatymo ar iškraustyti jame esančių daiktų, jei tokių yra. Butui priskirtas rūsys yra klasifikuojamas kaip bendrojo naudojimo patalpa, kurios tiksli vieta ir indeksas nenustatyti. Kadangi daugiabučio namo bendrojo naudojimo patalpos yra bendrosios dalinės nuosavybės objektas, visus klausimus dėl jų valdymo, naudojimo ir vietos nustatymo sprendžia bendraturčiai, kurie šiuo metu nėra sudarę susitarimų dėl naudojimosi tvarkos.
Gyvenamasis namas, kuriame yra butas, yra valstybinėje žemėje, kurios sklypas nėra suformuotas. Todėl teisės į žemės sklypą nėra perleidžiamos. Unikalus turto numeris 2998-5004-8015:0010.
Aukciono registracija vyksta ribotu laiku: ji prasideda 2026-04-27 ir baigiasi 2026-04-29 23:59:59. Pats aukcionas vyks 2026-05-05 09:00:00 iki 2026-05-06 13:59:59. Būtina sumokėti 60 EUR registracijos mokestį ir 5680 EUR garantinį mokestį. Mokėjimai priimami per NEOPAY arba bankiniu pavedimu, nurodant el. aukciono numerį. Sutarčių projektai su suinteresuotais asmenimis gali būti peržiūrėti iš anksto.
📍 Objekto lokacija
📍 Šiaulių m. sav. Šiaulių m. Klevų g. 9-10
❓ Dažnai užduodami klausimai
Kokia pradinė buto Klevų g. 9-10 kaina ir kokia bendra buto ploto dydis?
Pradinė kaina yra 56800 EUR. Bendra buto naudingoji plotas yra 36.25 kv. m, papildomai priskirtas 2.63 kv. m rūsys.
Kada vyksta Turto banko aukcionas, kuriame parduodamas šis butas Šiauliuose?
Aukcionas prasideda 2026-05-05 09:00:00 ir baigiasi 2026-05-06 13:59:59.
Kokie yra mokami mokesčiai dalyvaujant aukcione: registracijos mokestis ir garantinis įnašas?
Registracijos mokestis yra 60 EUR, o garantinis mokestis yra 5680 EUR.
Ar bus sprendžiami klausimai dėl bendrojo naudojimo patalpų ir žemės sklypo?
Ne, turtas parduodamas esamos būklės. Į žemės sklypo teisės nėra perleidžiamos, nes namas stovi valstybinėje žemėje. Bendrojo naudojimo patalpų naudojimo tvarka sprendžiama bendraturčių sutarimu (kurio nėra sudaryta).
Iki kada reikia užsiregistruoti dalyvauti aukcione?
Registracija prasideda 2026-04-27 ir baigiasi 2026-04-29 23:59:59.
Ar pardavėjas iškrausto daiktus ar sutvarko buto kadastro duomenis?
VĮ Turto bankas neįsipareigoja tvarkyti aktualios turto kadastro duomenų būklės ar iškraustyti jame esančių daiktų, objektas parduodamas esamos būklės.