📝 Aprašymas
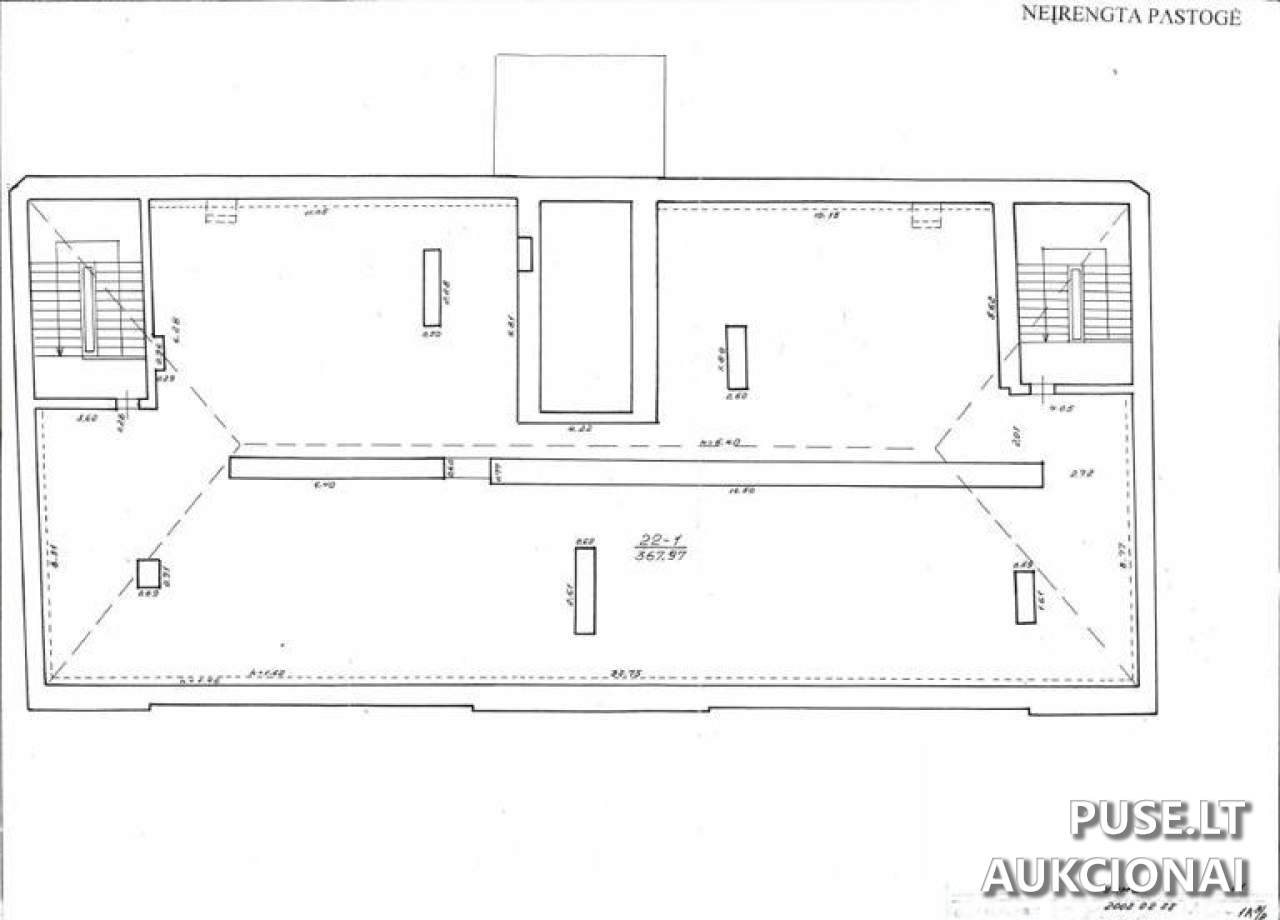
Parduodama 1067/36797 dalis bendro ploto 367,97 kv. m neįrengtos pastogės, esančios Vilniuje, Pylimo g. 11-16A, unikalus numeris 4400-0232-4889:4933, pakartotiniame Turto banko aukcione. Pradinė kaina siekia 8406 EUR, o garantinis mokestis – 840 EUR.
Objektas parduodamas esamos fizinės ir funkcinės būklės, be jokių komunikacijų. Pirkėjas įgyja teisę naudotis atitinkama žemės sklypo dalimi (kadastro numeris 0101/0041:264, unikalus numeris 4400-5768-2421), priskirta valstybei, tokiomis pat sąlygomis kaip ir pardavėjas, nes pardavėjas teisių į visą žemės sklypą neperleidžia.
Kadastro duomenys nustatyti 2002-02-28 (nurodoma, kad palėpė performuota atidalinant dvi patalpas). Yra apribojimų dėl apžiūros ir bendraturčių susitarimų trūkumo tvarkos klausimais. Pastato aukšto plane (duomenys iš 2022-10-04) patalpos indeksais Nr. 12 ir Nr. 27 yra atidalintos, o patalpos Nr. 16 faktiškai naudojamos trečiųjų asmenų, neturint su jais sudarytų naudojimosi susitarimų.
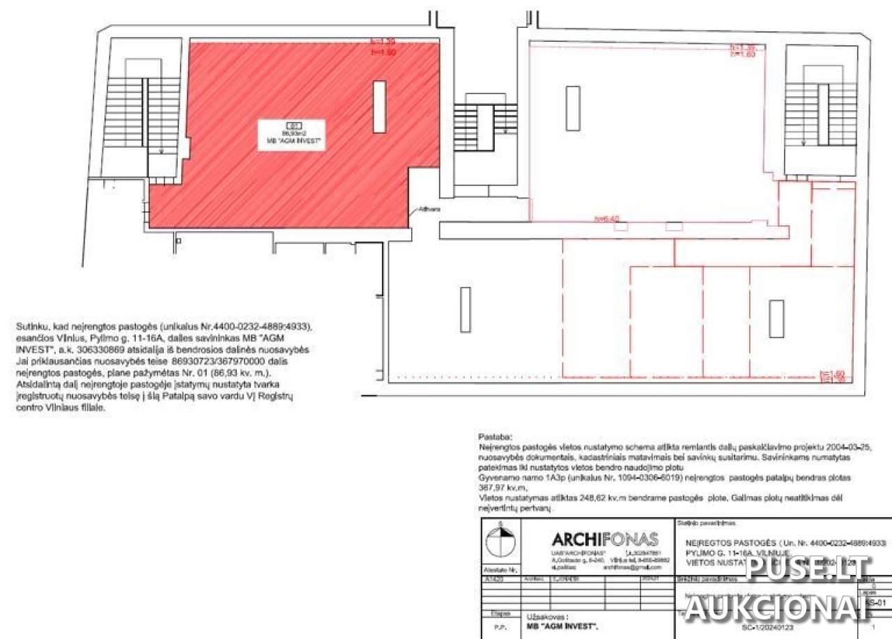
Objektas yra Kultūros paveldo teritorijose: Vilniaus senojo miesto ir priemiesčių archeologinė vietovė (kodas 25504) ir Vilniaus senamiestis (kodas 16073). Taigi, bet kokie statybos, tvarkybos, restauracijos, rekonstrukcijos, remonto darbai yra griežtai reglamentuojami Lietuvos Respublikos statybos ir Nekilnojamojo kultūros paveldo apsaugos įstatymais bei susijusiais aktais. Taip pat minima, kad viena dalis (Nr. 01, 86,93 kv. m) atidalinama iš bendraturčio MB "AGM INVEST".
Aukcionas vyks 2026-05-05 09:00:00 iki 2026-05-06 13:59:59. Registracija vyksta nuo 2026-04-27 iki 2026-04-29 23:59:59.
Objektas parduodamas esamos fizinės ir funkcinės būklės, be jokių komunikacijų. Pirkėjas įgyja teisę naudotis atitinkama žemės sklypo dalimi (kadastro numeris 0101/0041:264, unikalus numeris 4400-5768-2421), priskirta valstybei, tokiomis pat sąlygomis kaip ir pardavėjas, nes pardavėjas teisių į visą žemės sklypą neperleidžia.
Kadastro duomenys nustatyti 2002-02-28 (nurodoma, kad palėpė performuota atidalinant dvi patalpas). Yra apribojimų dėl apžiūros ir bendraturčių susitarimų trūkumo tvarkos klausimais. Pastato aukšto plane (duomenys iš 2022-10-04) patalpos indeksais Nr. 12 ir Nr. 27 yra atidalintos, o patalpos Nr. 16 faktiškai naudojamos trečiųjų asmenų, neturint su jais sudarytų naudojimosi susitarimų.
Objektas yra Kultūros paveldo teritorijose: Vilniaus senojo miesto ir priemiesčių archeologinė vietovė (kodas 25504) ir Vilniaus senamiestis (kodas 16073). Taigi, bet kokie statybos, tvarkybos, restauracijos, rekonstrukcijos, remonto darbai yra griežtai reglamentuojami Lietuvos Respublikos statybos ir Nekilnojamojo kultūros paveldo apsaugos įstatymais bei susijusiais aktais. Taip pat minima, kad viena dalis (Nr. 01, 86,93 kv. m) atidalinama iš bendraturčio MB "AGM INVEST".
Aukcionas vyks 2026-05-05 09:00:00 iki 2026-05-06 13:59:59. Registracija vyksta nuo 2026-04-27 iki 2026-04-29 23:59:59.
📍 Objekto lokacija
📍 Vilniaus m. sav. Vilniaus m. Pylimo g. 11-16A
❓ Dažnai užduodami klausimai
Kokia yra neįrengtos pastogės pradinė kaina ir kokius mokesčius reikia sumokėti?
Pradinė kaina yra 8406 EUR. Taip pat reikia sumokėti 840 EUR garantinį mokestį ir 30 EUR registracijos mokestį.
Kada vyksta turto aukcionas?
Aukcionas prasideda 2026-05-05 09:00:00 ir baigiasi 2026-05-06 13:59:59.
Kas yra parduodama ir kokioje vietoje yra objektas?
Parduodama 1067/36797 dalis bendro ploto 367,97 kv. m neįrengtos pastogės Vilniaus m. sav., Pylimo g. 11-16A.
Kokie pagrindiniai apribojimai taikomi šio nekilnojamojo turto naudojimui?
Objektas yra Kultūros paveldo teritorijose (Vilniaus senamiestis), todėl bet kokie statybos, remonto ar rekonstrukcijos darbai yra griežtai reglamentuojami atitinkamais įstatymais. Objektas neturi jokių komunikacijų.
Kada būtina baigti aukciono dalyvio registraciją?
Registracija baigiasi 2026-04-29 23:59:59.
Kokia yra padėtis su žemės sklypu, ant kurio stovi pastatas?
Pardavėjas teisių į žemės sklypą (kadastro Nr. 0101/0041:264) neperleidžia, tačiau pirkėjas įgyja teisę naudotis atitinkama žemės sklypo dalimi bendraturčių sąlygomis.