📝 Aprašymas
Parduodamas pakartotinis nekilnojamojo turto objektas – sandėlis su priskirtais žemės sklypais Vilniaus rajono savivaldybėje, Nemėžio seniūnijoje, Akmenytės kaime. Pradinė kaina, nuo kurios prasideda aukcionas, yra 150829 EUR.
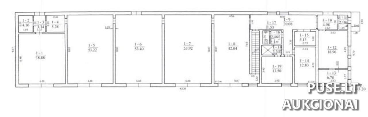
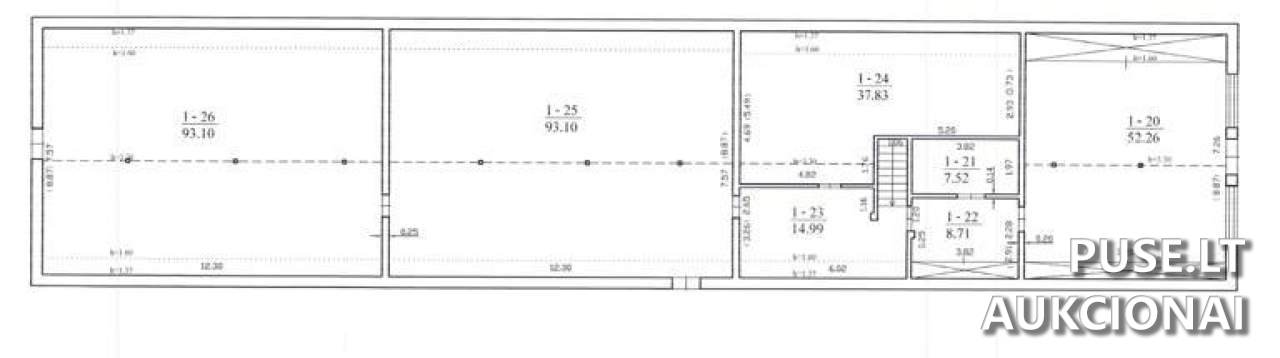
Bendras parduodamo sandėlio plotas yra 790.99 kv. m (Unikalus Nr. 4196-9009-7063). Komplektą sudaro ir keli žemės sklypai: 0.0533 ha žemės sklypas (Unikalus Nr. 4400-5402-8538) adresu Medelyno g. 13, bei 0.1602 ha žemės sklypas (Unikalus Nr. 4400-5041-6561) adresu Medelyno g. 11. Taip pat parduodami du šiltnamiai: vienas 190.00 kv. m (Unikalus Nr. 4196-9009-7130) ir kitas 196.00 kv. m (Unikalus Nr. 4196-9009-7141) užstatyto ploto.
Svarbu žinoti, kad parduodama visa nuosavybės dalis (1/1). Nekilnojamasis turtas parduodamas esamos fizinės ir funkcinės būklės, pagal esamus kadastro duomenis. Pardavėjas, VĮ Turto bankas, neįsipareigoja nustatyti aktualios būklės ar iškraustyti esamų daiktų. Atkreiptinas dėmesys, kad sandėlis yra išnuomotas iki 2026-05-05. Nuosavybės teisei perėjus trečiajam asmeniui, nuomos sutartis gali būti nutraukta vienos šalies iniciatyva, įspėjus nuomininką prieš 30 kalendorinių dienų.
Prieš aukcioną privaloma sumokėti 100 EUR registracijos mokestį ir 15082 EUR garantinį mokestį. Aukcionas prasideda 2026-04-20 09:00:00 ir baigiasi 2026-04-21 13:59:59. Registracija vyksta nuo 2026-04-13 iki 2026-04-15 23:59:59.
Objekto galimybės apima ne tik sandėlio naudojimą, bet ir papildomą žemės plotą bei šiltnamius. Dėl elektros tiekimo – Turto bankas nėra sudaręs elektros sutarties su tiekėju.
Bendras parduodamo sandėlio plotas yra 790.99 kv. m (Unikalus Nr. 4196-9009-7063). Komplektą sudaro ir keli žemės sklypai: 0.0533 ha žemės sklypas (Unikalus Nr. 4400-5402-8538) adresu Medelyno g. 13, bei 0.1602 ha žemės sklypas (Unikalus Nr. 4400-5041-6561) adresu Medelyno g. 11. Taip pat parduodami du šiltnamiai: vienas 190.00 kv. m (Unikalus Nr. 4196-9009-7130) ir kitas 196.00 kv. m (Unikalus Nr. 4196-9009-7141) užstatyto ploto.
Svarbu žinoti, kad parduodama visa nuosavybės dalis (1/1). Nekilnojamasis turtas parduodamas esamos fizinės ir funkcinės būklės, pagal esamus kadastro duomenis. Pardavėjas, VĮ Turto bankas, neįsipareigoja nustatyti aktualios būklės ar iškraustyti esamų daiktų. Atkreiptinas dėmesys, kad sandėlis yra išnuomotas iki 2026-05-05. Nuosavybės teisei perėjus trečiajam asmeniui, nuomos sutartis gali būti nutraukta vienos šalies iniciatyva, įspėjus nuomininką prieš 30 kalendorinių dienų.
Prieš aukcioną privaloma sumokėti 100 EUR registracijos mokestį ir 15082 EUR garantinį mokestį. Aukcionas prasideda 2026-04-20 09:00:00 ir baigiasi 2026-04-21 13:59:59. Registracija vyksta nuo 2026-04-13 iki 2026-04-15 23:59:59.
Objekto galimybės apima ne tik sandėlio naudojimą, bet ir papildomą žemės plotą bei šiltnamius. Dėl elektros tiekimo – Turto bankas nėra sudaręs elektros sutarties su tiekėju.
📍 Objekto lokacija
📍 Vilniaus r. sav. Akmenytės k. Medelyno g. 13
❓ Dažnai užduodami klausimai
Kokia yra sandėlio su sklypais pradinė kaina ir kada prasideda aukcionas?
Pradinė kaina yra 150829 EUR. Aukcionas prasideda 2026-04-20 09:00:00 ir baigiasi 2026-04-21 13:59:59.
Kokie bendri plotai parduodami aukcione Akmenytės kaime?
Parduodamas 790.99 kv. m sandėlis, 0.0533 ha žemės sklypas (Medelyno g. 13), 0.1602 ha žemės sklypas (Medelyno g. 11) ir du šiltnamiai (atitinkamai 190.00 kv. m ir 196.00 kv. m).
Koks yra privalomas garantinis mokestis ir registracijos mokestis dalyvavimui?
Garantinis mokestis yra 15082 EUR, o dalyvio registracijos mokestis yra 100 EUR.
Kada vyksta registracija į aukcioną?
Registracija prasideda 2026-04-13 00:00:00 ir baigiasi 2026-04-15 23:59:59.
Kokia specifinė sąlyga yra taikoma dėl nuomos sutarties perėmus turtą?
Sandėlis išnuomotas iki 2026-05-05. Naujasis savininkas turi teisę vienašališkai nutraukti nuomos sutartį, įspėjęs nuomininką ne mažiau kaip prieš 30 kalendorinių dienų.
Ar pardavėjas garantuoja turto būklę ir iškraustymą?
Parduodama esamos būklės. VĮ Turto bankas neįsipareigoja nustatyti aktualios būklės ar iškraustyti esamų daiktų. Taip pat nėra sudaręs elektros tiekimo sutarties.