📝 Aprašymas
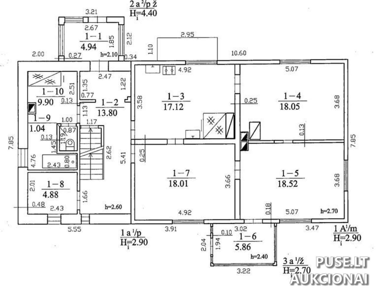
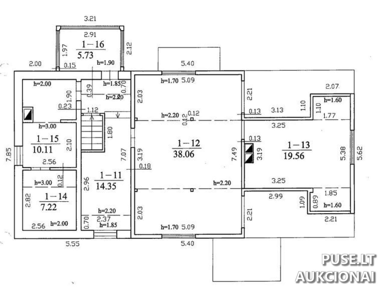
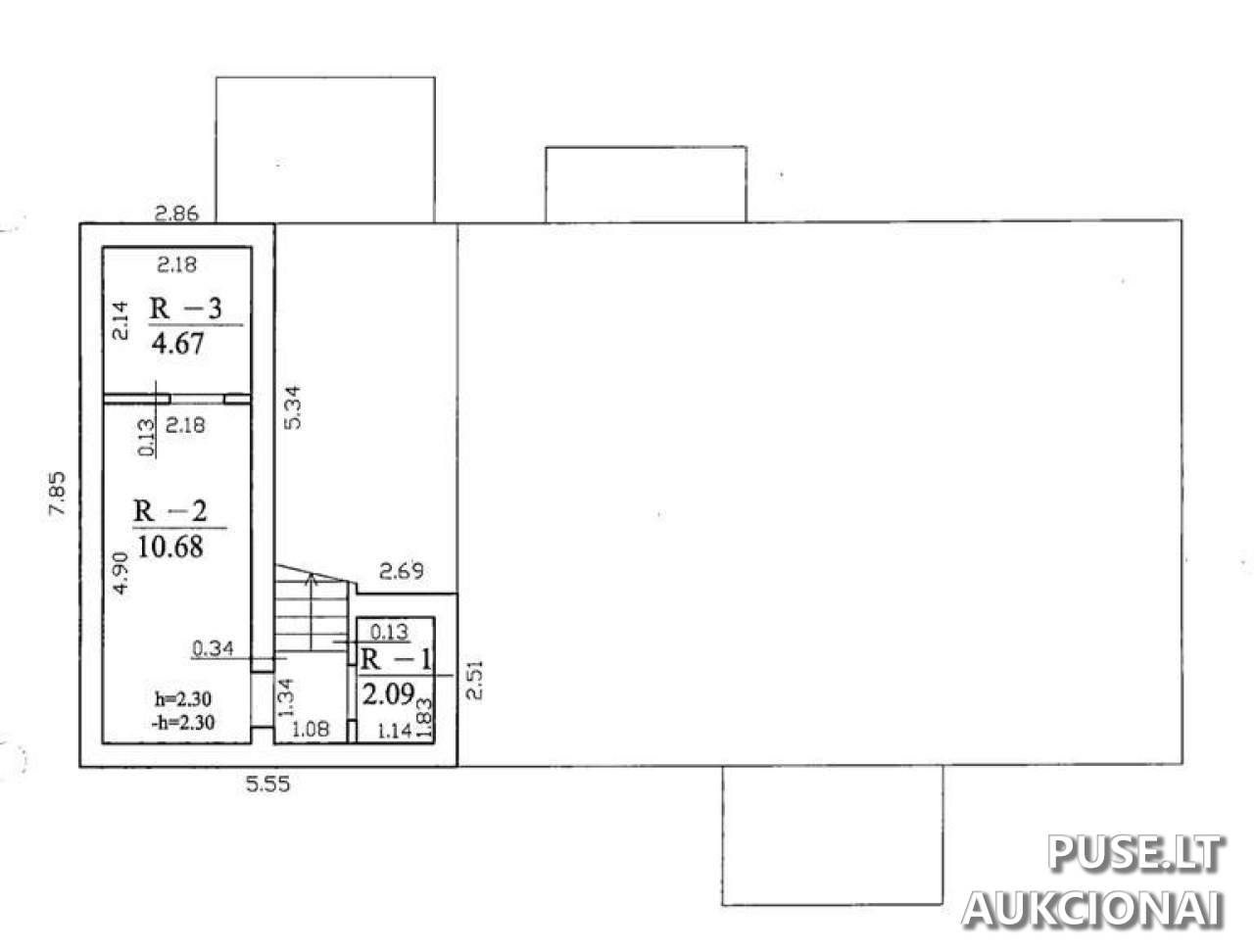
Parduodamas gyvenamasis namas ir kompleksas ūkinių patalpų su didele 0.3766 ha žemės valda Šakių rajono savivaldybėje, Slavikų kaimo teritorijoje, Suvalkiečių g. 3A. Bendras gyvenamojo namo plotas yra 224.59 kv. m, unikalus Nr. 8495-5011-2012. Šis turtas pakartotiniame Turto banko aukcione siūlomas su pradine 19695 EUR kaina. Aukcionas vyks 2026-04-20 09:00:00 iki 2026-04-21 13:59:59. Registracija vyksta nuo 2026-04-13 iki 2026-04-15.
Komplekte su pagrindiniu gyvenamuoju pastatu parduodami Garažas (užstatytas plotas 63.00 kv. m, unikalus Nr. 8495-5011-2023), Tvartas (užstatytas plotas 56.00 kv. m, unikalus Nr. 8495-5011-2034) bei kiemo statiniai (šulinys, lauko tualetas, unikalus Nr. 8495-5011-2045). Prie šių pastatų priklauso 0.3766 ha žemės sklypas, turintis unikalų Nr. 4400-6595-0261.
Nekilnojamasis turtas parduodamas esamos fizinės ir funkcinės būklės, pagal esamus kadastro duomenis. Pirkėjas turi įvertinti visas su tokios būklės statinio įsigijimu susijusias teisines bei ekonomines rizikas. Ypatingas dėmesys turėtų būti skirtas informacijai, kad inžinierinis statinys (lauko tualetas) neatitinka taikomų teisės aktų reikalavimų. Valstybės įmonė Turto bankas neįsipareigoja iškraustyti jame esančių daiktų ar atsakyti už statinio trūkumus, galimus dėl neatitikimo statybos ar aplinkosaugos reikalavimams. Potencialiems dalyviams rekomenduojama apžiūrėti objektą vietoje iki registracijos pradžios.
Būtini mokesčiai dalyviui: Garantinis mokestis yra 1969 EUR, o registracijos mokestis siekia 40 EUR. Parkingas vyksta per Turto banko el. aukcionų sistemą, mokėjimus galima atlikti per NEOPAY arba bankiniu pavedimu į sąskaitą LT85 7044 0901 0022 1537 (AB SEB banke, gavėjas VĮ Turto bankas, įm. k. 112021042), nurodant aukciono numerį.
Komplekte su pagrindiniu gyvenamuoju pastatu parduodami Garažas (užstatytas plotas 63.00 kv. m, unikalus Nr. 8495-5011-2023), Tvartas (užstatytas plotas 56.00 kv. m, unikalus Nr. 8495-5011-2034) bei kiemo statiniai (šulinys, lauko tualetas, unikalus Nr. 8495-5011-2045). Prie šių pastatų priklauso 0.3766 ha žemės sklypas, turintis unikalų Nr. 4400-6595-0261.
Nekilnojamasis turtas parduodamas esamos fizinės ir funkcinės būklės, pagal esamus kadastro duomenis. Pirkėjas turi įvertinti visas su tokios būklės statinio įsigijimu susijusias teisines bei ekonomines rizikas. Ypatingas dėmesys turėtų būti skirtas informacijai, kad inžinierinis statinys (lauko tualetas) neatitinka taikomų teisės aktų reikalavimų. Valstybės įmonė Turto bankas neįsipareigoja iškraustyti jame esančių daiktų ar atsakyti už statinio trūkumus, galimus dėl neatitikimo statybos ar aplinkosaugos reikalavimams. Potencialiems dalyviams rekomenduojama apžiūrėti objektą vietoje iki registracijos pradžios.
Būtini mokesčiai dalyviui: Garantinis mokestis yra 1969 EUR, o registracijos mokestis siekia 40 EUR. Parkingas vyksta per Turto banko el. aukcionų sistemą, mokėjimus galima atlikti per NEOPAY arba bankiniu pavedimu į sąskaitą LT85 7044 0901 0022 1537 (AB SEB banke, gavėjas VĮ Turto bankas, įm. k. 112021042), nurodant aukciono numerį.
📍 Objekto lokacija
📍 Šakių r. sav. Slavikų k. Suvalkiečių g. 3A
❓ Dažnai užduodami klausimai
Kokia yra nekilnojamojo turto pardavimo pradinė kaina ir kada vyksta aukcionas?
Pradinė kaina yra 19695 EUR. Aukcionas prasideda 2026-04-20 09:00:00 ir baigiasi 2026-04-21 13:59:59.
Kokie papildomi mokesčiai yra taikomi dalyviui?
Reikalingas Garantinis mokestis - 1969 EUR ir Registracijos mokestis - 40 EUR.
Kokie objektai parduodami Slavikuose, Suvalkiečių g. 3A?
Parduodamas gyvenamasis namas (224.59 kv. m), garažas (63.00 kv. m), tvartas (56.00 kv. m), kiemo statiniai (šulinys, lauko tualetas) ir 0.3766 ha žemės sklypas.
Iki kada galima registruotis dalyvauti aukcione?
Registracija vyksta nuo 2026-04-13 00:00:00 iki 2026-04-15 23:59:59.
Ar pardavėjas garantuoja turto būklę ir tvarkingumą?
Ne, turtas parduodamas esamos fizinės būklės. Turto bankas neįsipareigoja iškraustyti esamų daiktų ar atsakyti už trūkumus, įskaitant tai, kad lauko tualetas neatitinka teisės aktų reikalavimų.
Kur galima rasti pirkimo-pardavimo sutarties projektus prieš aukcioną?
Sutarties projektai skelbiami paspaudus nurodytoje nuorodoje, be to, galima kreiptis ir į sandorių koordinatorę Ligitą Petravičienę dėl detalesnės informacijos.