📝 Aprašymas
Nuomojamos didelės administracinės bei maitinimo paskirties patalpos Vilniaus miesto savivaldybėje, adresu A. Juozapavičiaus g. 9-2. Tai yra pakartotinis nuomos konkursas. Patalpos nuomojamos esamos būklės, suteikiant nuomininkui galimybę jas įsirengti pagal savo veiklai reikalingus poreikius (savo lėšomis).
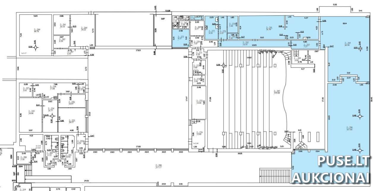
Bendras nuomojamas plotas siekia 439,89 kvadratinius metrus. Nuomojamos patalpos apima specifinius indeksus: 2-268, 2-272, nuo 2-277 iki 2-283, 2-285, 2-286 (bendras plotas 367,67 kv. m) bei dalį bendro naudojimo patalpų. Šios nuomojamos patalpos idealiai tinka administracinei veiklai, restoranams ar pagaminto valgio tiekimo įmonėms, ieškančioms didelio ploto Vilniaus centre.
Šio turto unikalus Nr. - 1097-3000-1019:0005. Pradinė nuomos kaina nustatyta 0 EUR. Dalyvaujant konkurse, privaloma sumokėti 50 EUR registracijos mokestį. Patalpos priklauso Lietuvos Respublikai, o nuomos organizatorius yra Valstybės įmonė Turto bankas (įm. k. 112021042).
Konkurso registracija vyksta nuo 2026-03-30 iki 2026-04-01 23:59:59. Pats nuomos e. konkursas vyks nuo 2026-04-09 09:00:00 iki 2026-04-10 13:59:59.
Turto apžiūra organizuojama nuo 2026-03-23 iki 2026-03-27, darbo dienomis nuo 10:00 iki 15:00 val. Atvykimas turi būti iš anksto suderintas su kontaktiniu asmeniu, informuojant ne vėliau kaip prieš 1 darbo dieną.
Bendras nuomojamas plotas siekia 439,89 kvadratinius metrus. Nuomojamos patalpos apima specifinius indeksus: 2-268, 2-272, nuo 2-277 iki 2-283, 2-285, 2-286 (bendras plotas 367,67 kv. m) bei dalį bendro naudojimo patalpų. Šios nuomojamos patalpos idealiai tinka administracinei veiklai, restoranams ar pagaminto valgio tiekimo įmonėms, ieškančioms didelio ploto Vilniaus centre.
Šio turto unikalus Nr. - 1097-3000-1019:0005. Pradinė nuomos kaina nustatyta 0 EUR. Dalyvaujant konkurse, privaloma sumokėti 50 EUR registracijos mokestį. Patalpos priklauso Lietuvos Respublikai, o nuomos organizatorius yra Valstybės įmonė Turto bankas (įm. k. 112021042).
Konkurso registracija vyksta nuo 2026-03-30 iki 2026-04-01 23:59:59. Pats nuomos e. konkursas vyks nuo 2026-04-09 09:00:00 iki 2026-04-10 13:59:59.
Turto apžiūra organizuojama nuo 2026-03-23 iki 2026-03-27, darbo dienomis nuo 10:00 iki 15:00 val. Atvykimas turi būti iš anksto suderintas su kontaktiniu asmeniu, informuojant ne vėliau kaip prieš 1 darbo dieną.
📍 Objekto lokacija
📍 Vilniaus m. sav. Vilniaus m. A. Juozapavičiaus g. 9-2
❓ Dažnai užduodami klausimai
Kokia yra bendra nuomojama patalpų ploto apimtis A. Juozapavičiaus g. 9?
Bendras nuomojamas plotas, įskaitant bendro naudojimo patalpas, yra 439,89 kv. m. Dalis nuomojamų patalpų yra pažymėtos indeksais: 2-268, 2-272, 2-277 iki 2-283, 2-285, 2-286.
Kada vyks nuomos e. konkursas ir kada priimamos paraiškos?
E. konkursas vyks nuo 2026-04-09 09:00:00 iki 2026-04-10 13:59:59. Registracija vyksta nuo 2026-03-30 00:00:00 iki 2026-04-01 23:59:59.
Kokia yra pradinė nuomos kaina ir kokie yra papildomi mokesčiai?
Pradinė nuomos kaina nurodoma 0 EUR. Taip pat taikomas 50 EUR registracijos mokestis.
Kokia numatyta patalpų paskirtis ir jų būklė?
Patalpos skirtos administravimo, restoranų ir pagaminto valgio tiekimo veiklai. Jos nuomojamos esamos būklės, su galimybe nuomininkui jas įsirengti savo lėšomis.
Kaip galima apžiūrėti nuomojamas patalpas A. Juozapavičiaus g. 9?
Apžiūros vyksta 2026-03-23 - 2026-03-27, nuo 10:00 iki 15:00 val. Būtina iš anksto informuoti kontaktinį asmenį ne vėliau kaip prieš 1 darbo dieną.
Kas organizuoja šį nuomos konkursą?
Nuomos konkursą organizuoja Valstybės įmonė Turto bankas, įmonės kodas 112021042.