📝 Aprašymas
Parduodamas (nuomojamas) administracinės paskirties turtas Vilniaus mieste, kurio bendras nuomojamas plotas siekia 139,31 kv. m. Šis objektas yra A. Juozapavičiaus g. 9, patalpų unikalus numeris 1097-3000-1019:0005. Patalpos yra įsikūrusios 7-ajame aukšte.
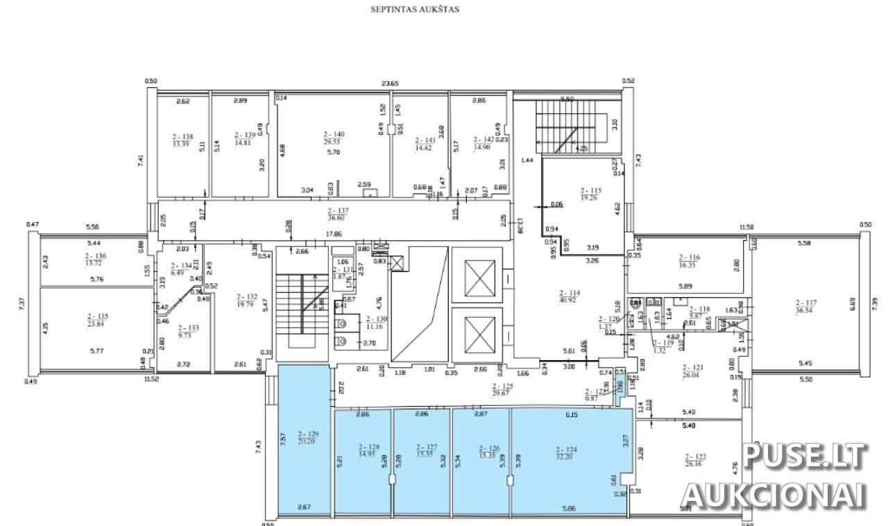
Nuomojamas plotas apima administracines patalpas, pažymėtas indeksais 2-123, 2-124, 2-126, 2-127, 2-128, 2-129, kurių bendras vidaus plotas sudaro 98,92 kv. m, kartu su bendro naudojimo patalpomis. Patalpos nuomojamos esamos būklės, suteikiant būsimam nuomininkui galimybę jas įsirengti ir pritaikyti savo poreikiams nuosavomis lėšomis. Pradinė nuomos kaina nustatyta 0 EUR.
Administracinių patalpų nuomos elektroninis konkursas prasidės 2026 m. balandžio 9 d. 09:00:00 ir baigsis 2026 m. balandžio 10 d. 13:59:59. Dalyvio registracija yra privaloma ir vyks nuo 2026 m. kovo 30 d. iki 2026 m. balandžio 1 d. 23:59:59. Už dalyvavimą konkurse taikomas 50 EUR registracijos mokestis.
Turto apžiūra organizuojama 2026 m. kovo 23 d. iki 2026 m. kovo 27 d., nuo 10:00 val. iki 15:00 val. Būtina išankstinė registracija ir atvykimo informavimas likus ne mažiau nei 1 darbo dienai iki numatytos apžiūros.
Nuomos organizavimo klausimais atsakinga Valstybės įmonė Turto bankas (įm. k. 112021042). Atsiskaitymo sąskaita registracijos mokesčiui ir pradiniam įnašui yra AB SEB banke (sąsk. Nr. LT51 7044 0600 0044 3925). Valdantysis subjektas – Lietuvos Respublika.
Nuomojamas plotas apima administracines patalpas, pažymėtas indeksais 2-123, 2-124, 2-126, 2-127, 2-128, 2-129, kurių bendras vidaus plotas sudaro 98,92 kv. m, kartu su bendro naudojimo patalpomis. Patalpos nuomojamos esamos būklės, suteikiant būsimam nuomininkui galimybę jas įsirengti ir pritaikyti savo poreikiams nuosavomis lėšomis. Pradinė nuomos kaina nustatyta 0 EUR.
Administracinių patalpų nuomos elektroninis konkursas prasidės 2026 m. balandžio 9 d. 09:00:00 ir baigsis 2026 m. balandžio 10 d. 13:59:59. Dalyvio registracija yra privaloma ir vyks nuo 2026 m. kovo 30 d. iki 2026 m. balandžio 1 d. 23:59:59. Už dalyvavimą konkurse taikomas 50 EUR registracijos mokestis.
Turto apžiūra organizuojama 2026 m. kovo 23 d. iki 2026 m. kovo 27 d., nuo 10:00 val. iki 15:00 val. Būtina išankstinė registracija ir atvykimo informavimas likus ne mažiau nei 1 darbo dienai iki numatytos apžiūros.
Nuomos organizavimo klausimais atsakinga Valstybės įmonė Turto bankas (įm. k. 112021042). Atsiskaitymo sąskaita registracijos mokesčiui ir pradiniam įnašui yra AB SEB banke (sąsk. Nr. LT51 7044 0600 0044 3925). Valdantysis subjektas – Lietuvos Respublika.
📍 Objekto lokacija
📍 Vilniaus m. sav. Vilniaus m. A. Juozapavičiaus g. 9-2
❓ Dažnai užduodami klausimai
Kokia yra bendra nuomojamo turto A. Juozapavičiaus g. 9 patalpų ploto bus kuriuo metu?
Bendras nuomojamas patalpų plotas yra 139,31 kv. m, įskaitant administracines patalpas (98,92 kv. m) ir bendro naudojimo erdves.
Kada prasidės ir baigsis administracinių patalpų nuomos konkursas?
Nuomos konkursas prasidės 2026 m. balandžio 9 d. 09:00:00 ir baigsis 2026 m. balandžio 10 d. 13:59:59.
Kokia yra pradinė šių patalpų nuomos kaina ir koks registracijos mokestis?
Pradinė nuomos kaina yra 0 EUR. Dalyvio registracijos mokestis sudaro 50 EUR.
Kada potencialūs nuomininkai gali apžiūrėti patalpas A. Juozapavičiaus g. 9?
Patalpas apžiūrėti galima nuo 2026 m. kovo 23 d. iki 2026 m. kovo 27 d. tarp 10:00 val. ir 15:00 val., iš anksto informavus kontaktinį asmenį.
Ką reikia žinoti apie patalpų būklę ir įrengimą nuomojantis šias patalpas?
Patalpos nuomojamos esamos būklės, todėl nuomininkas turės galimybę (savo lėšomis) jas įsirengti pagal savo verslo poreikius.
Kieno kodo ir koks juridinio asmens kodas organizuoja šį nuomos konkursą?
Konkursą organizuoja Valstybės įmonė Turto bankas, įmonės kodas yra 112021042.