📝 Aprašymas
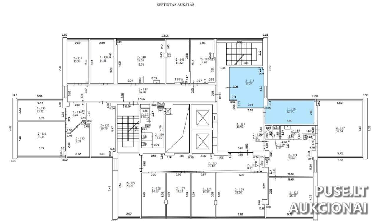
Parduodamas nuomos teisės konkursas, siūlantis patrauklias administracines patalpas Vilniaus mieste. Nuomojamos 7-ajame aukšte esančios patalpos, pažymėtos indeksais 2-115 ir 2-116, bendras nuomojamas plotas yra 50,16 kvadratinių metrų, įskaitant bendro naudojimo erdves. Šiuo metu patalpos nuomojamos esamos būklės, suteikiant būsimam nuomininkui galimybę jas įsirengti pagal savo verslo poreikius (įrengimas vykdomas nuomininko lėšomis).
Aukciono pobūdis yra Pakartotinis - Patalpos/Butai, o pradinė kaina nuomai nustatyta 0 EUR. Konkurso metu taikomas 50 EUR registracijos mokestis, kuris sumokamas per elektroninę sistemą. Tai puiki investavimo galimybė į strategiškai patogioje vietoje esančias komercines patalpas Vilniaus savivaldybėje - Unikalus numeris 1097-3000-1019:0005.
Registracija į nuomos konkursą vyksta nuo 2026-03-30, o pats konkursas bus aktyvus nuo 2026-04-09 09:00:00 iki 2026-04-10 13:59:59. Detalią informaciją apie nuomos sąlygas galima rasti per valstybės ilgalaikio materialiojo turto nuomos elektroninio konkurso bendrąsias sąlygas ir nuomos sutarties projektus.
Objekto apžiūra numatyta nuo 2026-03-23 iki 2026-03-27, nuo 10:00 iki 15:00 valandos. Būtina išankstinė registracija - apie vizitą reikia informuoti kontaktinį asmenį ne vėliau kaip prieš 1 darbo dieną. Konkursą organizuoja Valstybės įmonė Turto bankas (įmonės kodas 112021042).
Aukciono pobūdis yra Pakartotinis - Patalpos/Butai, o pradinė kaina nuomai nustatyta 0 EUR. Konkurso metu taikomas 50 EUR registracijos mokestis, kuris sumokamas per elektroninę sistemą. Tai puiki investavimo galimybė į strategiškai patogioje vietoje esančias komercines patalpas Vilniaus savivaldybėje - Unikalus numeris 1097-3000-1019:0005.
Registracija į nuomos konkursą vyksta nuo 2026-03-30, o pats konkursas bus aktyvus nuo 2026-04-09 09:00:00 iki 2026-04-10 13:59:59. Detalią informaciją apie nuomos sąlygas galima rasti per valstybės ilgalaikio materialiojo turto nuomos elektroninio konkurso bendrąsias sąlygas ir nuomos sutarties projektus.
Objekto apžiūra numatyta nuo 2026-03-23 iki 2026-03-27, nuo 10:00 iki 15:00 valandos. Būtina išankstinė registracija - apie vizitą reikia informuoti kontaktinį asmenį ne vėliau kaip prieš 1 darbo dieną. Konkursą organizuoja Valstybės įmonė Turto bankas (įmonės kodas 112021042).
📍 Objekto lokacija
📍 Vilniaus m. sav. Vilniaus m. A. Juozapavičiaus g. 9-2
❓ Dažnai užduodami klausimai
Kokia yra siūlomo nuomotis turto vieta ir bendras plotas?
Nuomojamos administracinės patalpos su dalimi bendro naudojimo erdvių Vilniaus mieste, A. Juozapavičiaus g. 9, bendras nuomojamas plotas yra 50,16 kv. m.
Kada baigiasi nuomos konkurso registracija ir pats aukcionas?
Registracija baigiasi 2026-04-01 23:59:59. Aukcionas prasidės 2026-04-09 09:00:00 ir baigsis 2026-04-10 13:59:59.
Kokia yra pradinė kaina ir kokie yra papildomi mokesčiai dalyvaujant?
Pradinė kaina nuomai yra 0 EUR. Taikomas 50 EUR registracijos mokestis, skaičiuojamas už dalyvio registravimąsi e-konkurse.
Kokia nuomojamų patalpų būklė ir ar galima jas rekonstruoti?
Patalpos nuomojamos esamos būklės. Nuomininkas turės teisę patalpas įsirengti pagal savo poreikius, naudojant nuomininko lėšas.
Kaip galima apžiūrėti šias A. Juozapavičiaus g. 9 patalpas prieš konkursą?
Apžiūra vykdoma nuo 2026-03-23 iki 2026-03-27, 10:00-15:00 val. Apie apžiūrą būtina informuoti kontaktinį asmenį ne vėliau kaip prieš 1 darbo dieną.
Kuris juridinis asmuo organizuoja šį nuomos konkursą?
Nuomos konkursą organizuoja Valstybės įmonė Turto bankas, įmonės kodas 112021042.