📝 Aprašymas
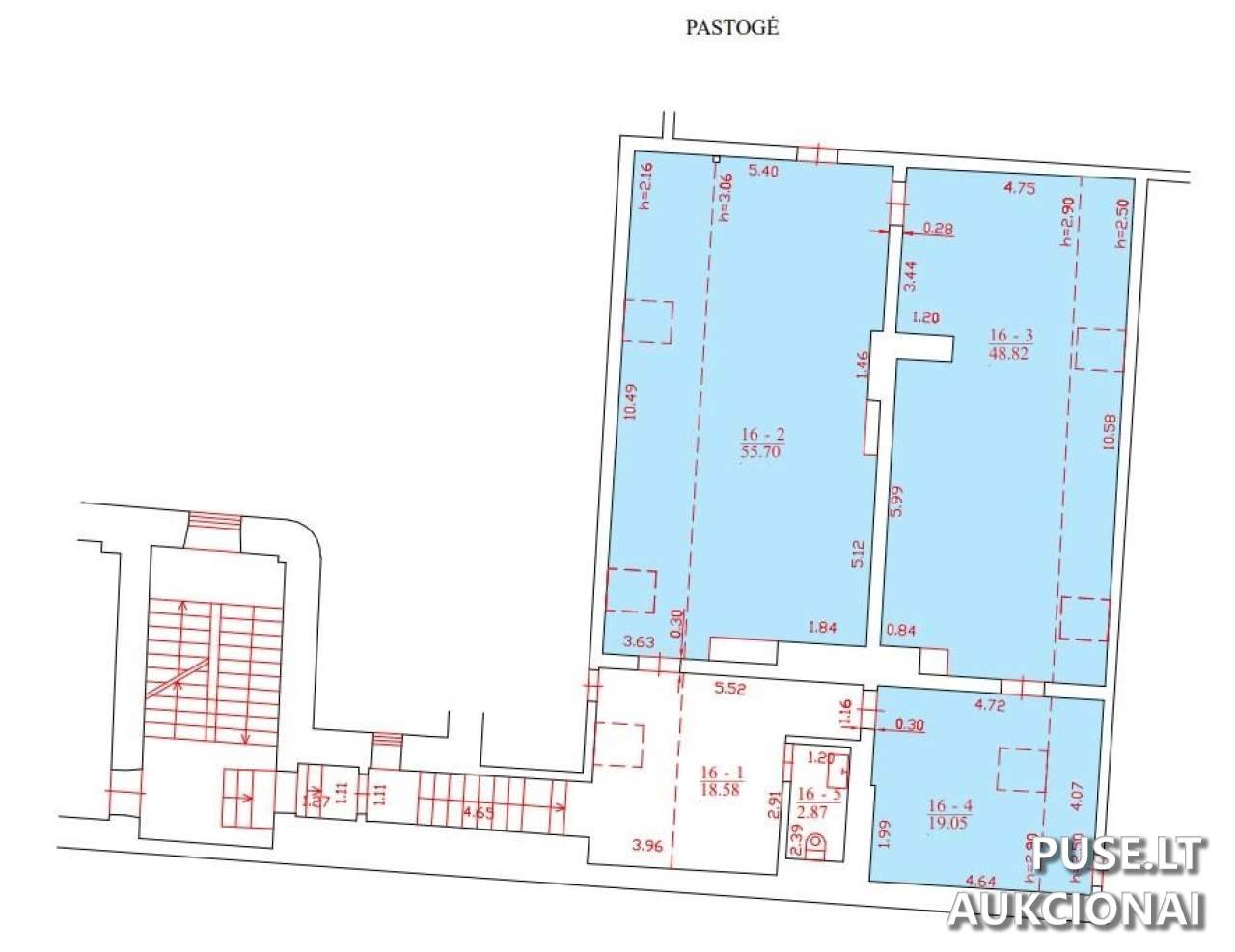
Skelbiamas valstybės ilgalaikio materialiojo turto nuomos konkursas dėl administracinės paskirties patalpų Vilniaus miesto savivaldybėje, adresu Vilniaus g. 27-401. Bendras nuomojamas plotas yra 145,02 kv. m, įskaitant 123,57 kv. m administracines patalpas (indeksai 16-2, 16-3, 16-4) ir bendro naudojimo erdves. Pradinė nuomos kaina konkursui yra 0 EUR. Patalpos nuomojamos esamos būklės, o tai suteikia nuomininkui galimybę patalpas įsirengti pagal savo specifinius verslo poreikius savo lėšomis. Šis objektas turi potencialą, jeigu ieškoma centrinėje vietoje Vilniuje esančių nuomojamų biuro ar administracinių patalpų su galimybe pritaikyti pagal savo dizainą.
Konkurso pradžia numatyta 2026-04-23 09:00:00, o pabaiga – 2026-04-24 13:59:59. Registracija dalyvauti konkurse vyksta nuo 2026-04-13 00:00:00 iki 2026-04-15 23:59:59. Dalyvio registracijos mokestis siekia 50 EUR, kuris turi būti sumokėtas į VĮ Turto bankas sąskaitą AB SEB banke, nurodant konkurso numerį.
Turto unikalaus numeris - 4400-6572-5779:4816. Patalpos priklauso Lietuvos Respublikai. Visos detalės, įskaitant valstybės ilgalaikio materialiojo turto nuomos elektroninio konkurso bendrosios sąlygos ir nuomos sutarties projektas, yra skelbiami oficialiuose šaltiniuose.
Numatytas apžiūros laikotarpis - nuo 2026-03-23 iki 2026-04-10, kasdien nuo 10:00 val. iki 15:00 val. Būtina registruotis ir informuoti kontaktinį asmenį ne vėliau kaip prieš 1 darbo dieną iki planuojamos apžiūros.
Konkurso pradžia numatyta 2026-04-23 09:00:00, o pabaiga – 2026-04-24 13:59:59. Registracija dalyvauti konkurse vyksta nuo 2026-04-13 00:00:00 iki 2026-04-15 23:59:59. Dalyvio registracijos mokestis siekia 50 EUR, kuris turi būti sumokėtas į VĮ Turto bankas sąskaitą AB SEB banke, nurodant konkurso numerį.
Turto unikalaus numeris - 4400-6572-5779:4816. Patalpos priklauso Lietuvos Respublikai. Visos detalės, įskaitant valstybės ilgalaikio materialiojo turto nuomos elektroninio konkurso bendrosios sąlygos ir nuomos sutarties projektas, yra skelbiami oficialiuose šaltiniuose.
Numatytas apžiūros laikotarpis - nuo 2026-03-23 iki 2026-04-10, kasdien nuo 10:00 val. iki 15:00 val. Būtina registruotis ir informuoti kontaktinį asmenį ne vėliau kaip prieš 1 darbo dieną iki planuojamos apžiūros.
📍 Objekto lokacija
📍 Vilniaus m. sav. Vilniaus m. Vilniaus g. 27-401
❓ Dažnai užduodami klausimai
Kokia administracinių patalpų Vilniaus g. 27 bendra nuomojama kvadratūra?
Bendras nuomojamas plotas sudaro 145,02 kv. m, iš kurių 123,57 kv. m yra administracinės patalpos su indeksais 16-2, 16-3, 16-4.
Kada baigiasi nuomos konkurso registracija?
Dalyvio registracija vyksta iki 2026-04-15 23:59:59.
Kokia pradinė administracinių patalpų nuomos kaina eurais?
Pradinė kaina nuomos konkursui yra 0 EUR.
Kokia yra objekto apžiūros trukmė ir kada ji vyksta?
Apžiūra vyksta nuo 2026-03-23 iki 2026-04-10, kasdien nuo 10:00 val. iki 15:00 val. Privaloma išankstinė registracija prieš 1 darbo dieną.
Koks yra dalyvio registracijos mokestis ir kam jis mokamas?
Registracijos mokestis yra 50 EUR. Mokėjimas atliekamas Gavėjui VĮ Turto bankas, įm. k. 112021042, nurodant konkretaus e. konkurso numerį.
Koks yra objekto adresas ir koks jo juridinė būklė?
Objektas yra Vilniaus m. savivaldybėje, Vilniaus g. 27-401, ir yra nuomojamas per pakartotinį nuomos konkursą.