📝 Aprašymas
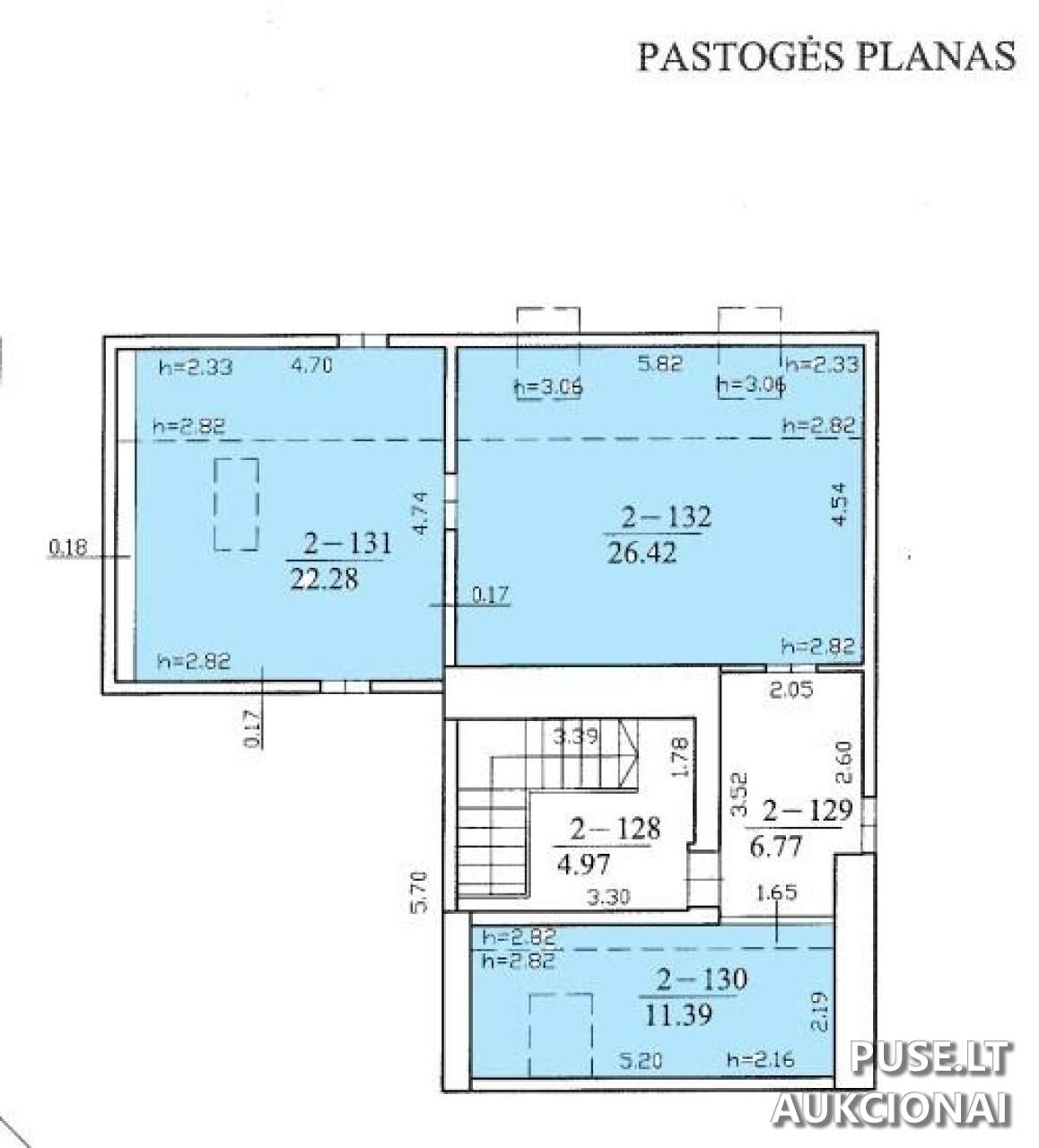
Ieškote plačių administracinių patalpų nuomai Vilniaus centre? Nuomojami ypač dideli administracinės paskirties patalpos Vilniaus miesto savivaldybėje, adresu Vilniaus g. 27. Šis objektas – tai pakartotinis nuomos konkursas, kurio pradinė nuomos kaina yra 0 EUR. Bendras nuomojamas plotas sudaro 423,89 kv. m., įskaitant bendro naudojimo patalpas. Patalpos yra išsidėsčiusios pastato 3 aukšte ir pastogėje. Nuomojami patalpų fragmentai, pažymėti indeksais: nuo 2-130 iki 2-132, 2-42, 2-44, 2-46, nuo 2-55 iki 2-57, 2-59, nuo 2-61 iki 2-63, 2-65, 2-66, nuo 2-68 iki 2-71, ir 2-78, kurių bendras plotas 333,15 kv. m., su bendro naudojimo patalpomis.
Nuomos objektas yra suteikiamas esamos būklės. Tai suteikia galimybę būsimam nuomininkui atlikti pilną patalpų įsirengimą pagal savo specifinius verslo poreikius ir viziją, naudojant nuosavas lėšas.
Aukciono registracija prasideda 2026-04-13 00:00:00 ir baigiasi 2026-04-15 23:59:59. Pats nuomos konkursas vyks nuo 2026-04-23 09:00:00 iki 2026-04-24 13:59:59. Dalyvavimo e. konkurse registracijos mokestis yra 50 EUR. Dėl ilgalaikio materialiojo turto nuomos taikomos Valstybės ilgalaikio materialiojo turto nuomos elektroninio konkurso bendrosios sąlygos bei nuomos sutarties projektai.
Prieš konkursą, patalpų apžiūra vyksta nuo 2026-03-23 iki 2026-04-10, nuo 10:00 val. iki 15:00 val. Dėl apžiūros būtina informuoti kontaktinį asmenį ne vėliau kaip prieš 1 darbo dieną. Patalpų unikalus numeris yra 1094-0442-0015:0009.
Nuomos objektas yra suteikiamas esamos būklės. Tai suteikia galimybę būsimam nuomininkui atlikti pilną patalpų įsirengimą pagal savo specifinius verslo poreikius ir viziją, naudojant nuosavas lėšas.
Aukciono registracija prasideda 2026-04-13 00:00:00 ir baigiasi 2026-04-15 23:59:59. Pats nuomos konkursas vyks nuo 2026-04-23 09:00:00 iki 2026-04-24 13:59:59. Dalyvavimo e. konkurse registracijos mokestis yra 50 EUR. Dėl ilgalaikio materialiojo turto nuomos taikomos Valstybės ilgalaikio materialiojo turto nuomos elektroninio konkurso bendrosios sąlygos bei nuomos sutarties projektai.
Prieš konkursą, patalpų apžiūra vyksta nuo 2026-03-23 iki 2026-04-10, nuo 10:00 val. iki 15:00 val. Dėl apžiūros būtina informuoti kontaktinį asmenį ne vėliau kaip prieš 1 darbo dieną. Patalpų unikalus numeris yra 1094-0442-0015:0009.
📍 Objekto lokacija
📍 Vilniaus m. sav. Vilniaus m. Vilniaus g. 27
❓ Dažnai užduodami klausimai
Kada baigiasi administracinių patalpų nuomos konkursas Vilniaus g. 27?
Nuomos konkursas baigiasi 2026-04-24 13:59:59.
Kokia yra pradinė administracinių patalpų nuomos kaina Vilniaus g. 27?
Pradinė nuomos kaina yra 0 EUR.
Koks bendras nuomojamas patalpų plotas Vilniaus g. 27?
Bendras nuomojamas plotas yra 423,89 kv. m., įskaitant dalį pastato 3 aukšte ir pastogėje.
Koks yra registracijos mokestis norint pateikti pasiūlymą nuomos konkursui?
Registracijos mokestis dalyviui yra 50 EUR, mokamas į AB SEB banko sąskaitą.
Kada vyrauja patalpų apžiūros laikas Vilniaus g. 27?
Apžiūros vyksta nuo 2026-03-23 iki 2026-04-10, kasdien nuo 10:00 val. iki 15:00 val., išankstinis informavimas privalomas.
Koks yra patalpų unikalus numeris, susijęs su šiuo konkursu?
Patalpų unikalus numeris yra 1094-0442-0015:0009.