📝 Aprašymas
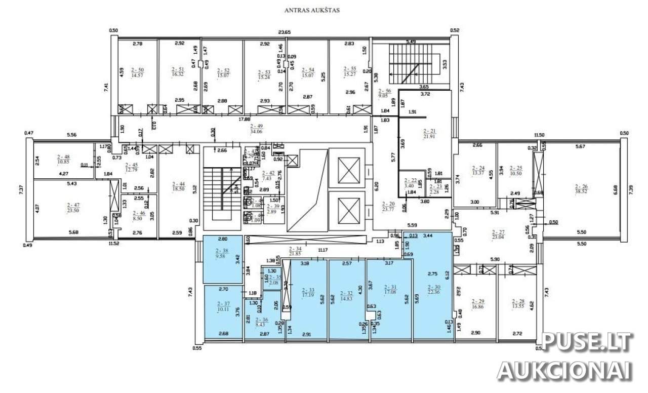
Parduodamos (nuomojamos) administracinės paskirties patalpos Vilniaus miesto savivaldybėje, esančios A. Juozapavičiaus g. 9, 2 aukšte. Tai pakartotinis nuomos konkursas, kurio pradinė kaina yra 0 EUR. Bendras nuomojamas plotas sudaro 143,11 kv. m. Šis plotas apima patalpas, pažymėtas indeksais: 2-30, 2-31, 2-32, 2-33, 2-35, 2-36, 2-37, 2-38 (101,66 kv. m) kartu su bendro naudojimo patalpomis. Patalpos nuomojamos esamos būklės, suteikiant nuomininkui galimybę jas įsirengti pagal savo poreikius, naudojant nuomininko lėšas. Nuomotojas yra Lietuvos Respublika.
Elektroninis nuomos konkursas prasideda 2026-04-09 09:00:00 ir baigiasi 2026-04-10 13:59:59. Dalyvio registracija vyksta nuo 2026-03-30 00:00:00 iki 2026-04-01 23:59:59. Privalomas registracijos mokestis - 50 EUR. Įnašas ir registracijos mokestis mokami į VĮ Turto bankas sąskaitą AB SEB banke (Sąsk. Nr. LT51 7044 0600 0044 3925), nurodant konkretaus e. konkurso numerį.
Administracinių patalpų apžiūra galima 2026-03-23 - 2026-03-27, laiku nuo 10:00 val. iki 15:00 val. Būtina išankstinė registracija, informuojant kontaktinį asmenį ne vėliau kaip prieš 1 darbo dieną iki planuojamos apžiūros. Nuomos organizatorius yra Valstybės įmonė Turto bankas (įm. k. 112021042). Visa detali informacija apie nuomos sutarties projektą ir bendrosios sąlygos skelbiamos nurodytoje nuorodoje.
Elektroninis nuomos konkursas prasideda 2026-04-09 09:00:00 ir baigiasi 2026-04-10 13:59:59. Dalyvio registracija vyksta nuo 2026-03-30 00:00:00 iki 2026-04-01 23:59:59. Privalomas registracijos mokestis - 50 EUR. Įnašas ir registracijos mokestis mokami į VĮ Turto bankas sąskaitą AB SEB banke (Sąsk. Nr. LT51 7044 0600 0044 3925), nurodant konkretaus e. konkurso numerį.
Administracinių patalpų apžiūra galima 2026-03-23 - 2026-03-27, laiku nuo 10:00 val. iki 15:00 val. Būtina išankstinė registracija, informuojant kontaktinį asmenį ne vėliau kaip prieš 1 darbo dieną iki planuojamos apžiūros. Nuomos organizatorius yra Valstybės įmonė Turto bankas (įm. k. 112021042). Visa detali informacija apie nuomos sutarties projektą ir bendrosios sąlygos skelbiamos nurodytoje nuorodoje.
📍 Objekto lokacija
📍 Vilniaus m. sav. Vilniaus m. A. Juozapavičiaus g. 9-2
❓ Dažnai užduodami klausimai
Kokia administracinių patalpų bendras nuomojamas plotas ir adresas?
Bendras nuomojamas plotas yra 143,11 kv. m. Patalpos yra Vilniaus m. sav., A. Juozapavičiaus g. 9, 2 aukšte.
Kada vyks nuomos konkursas ir kokia pradinė kaina?
Aukcionas prasideda 2026-04-09 09:00:00 ir baigiasi 2026-04-10 13:59:59. Pradinė kaina nurodyta 0 EUR.
Kada galima apžiūrėti administracines patalpas adresu A. Juozapavičiaus g. 9?
Apžiūrą galima organizuoti nuo 2026-03-23 iki 2026-03-27, nuo 10:00 val. iki 15:00 val., iš anksto informavus kontaktinį asmenį.
Kokia yra registracijos data ir mokestis dalyvavimui aukcione?
Registracija vyksta nuo 2026-03-30 iki 2026-04-01 23:59:59. Registracijos mokestis yra 50 EUR.
Kokia yra nuomojamų patalpų būklė ir ar yra įrengimo galimybių?
Patalpos nuomojamos esamos būklės, nuomininkas turi galimybę, savo lėšomis, jas įsirengti pagal savo poreikius.
Kas yra nuomos organizatorius ir koks jo įmonės kodas?
Nuomos organizatorius yra Valstybės įmonė Turto bankas, įmonės kodas 112021042.