📝 Aprašymas
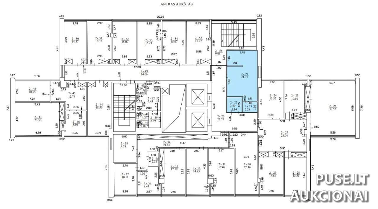
Nuomojamos administracinės paskirties patalpos, esančios Vilniaus mieste, A. Juozapavičiaus gatvėje 9-2. Tai yra pakartotinis nuomos konkursas, kuriame pradinė kaina sudaro 0 EUR. Nuomojamas bendras plotas yra 39,10 kv. m, įskaitant bendro naudojimo patalpas. Konkrečios, nuomojamos vidaus patalpų indeksais 2-21, 2-22, 2-23, kurias sudaro 27,59 kv. m.
Patalpos nuomojamos esamos būklės. Tai suteikia nuomininkui galimybę savo lėšomis įsirengti patalpas visiškai pagal asmeninius poreikius ir specifikacijas, taip optimizuojant erdvę savo veiklai.
Aukcioną organizuoja Valstybės įmonė Turto bankas (įmonės kodas 112021042). Konkurso dalyviams taikomas 50 EUR registracijos mokestis. Dalyvių registracija vyksta nuo 2026-03-30 iki 2026-04-01 23:59:59. Pats nuomos konkursas prasideda 2026-04-09 09:00:00 ir baigiasi 2026-04-10 13:59:59.
Atsiskaitymas už registracijos mokestį ir pradinį įnašą vykdomas į VĮ Turto bankas sąskaitą AB SEB banke (LT51 7044 0600 0044 3925). Būtina nurodyti konkretaus e. konkurso numerį mokėjimo paskirties laukelyje. Sutarties projektai ir bendrosios sąlygos skelbiami atskirai.
Dėl nuomojamo turto apžiūros, kuri vyksta 2026-03-23 - 2026-03-27, 10:00 val. - 15.00 val., būtina išankstinė registracija – informuoti kontaktinį asmenį ne vėliau kaip prieš 1 darbo dieną iki planuojamos apžiūros.
Patalpos nuomojamos esamos būklės. Tai suteikia nuomininkui galimybę savo lėšomis įsirengti patalpas visiškai pagal asmeninius poreikius ir specifikacijas, taip optimizuojant erdvę savo veiklai.
Aukcioną organizuoja Valstybės įmonė Turto bankas (įmonės kodas 112021042). Konkurso dalyviams taikomas 50 EUR registracijos mokestis. Dalyvių registracija vyksta nuo 2026-03-30 iki 2026-04-01 23:59:59. Pats nuomos konkursas prasideda 2026-04-09 09:00:00 ir baigiasi 2026-04-10 13:59:59.
Atsiskaitymas už registracijos mokestį ir pradinį įnašą vykdomas į VĮ Turto bankas sąskaitą AB SEB banke (LT51 7044 0600 0044 3925). Būtina nurodyti konkretaus e. konkurso numerį mokėjimo paskirties laukelyje. Sutarties projektai ir bendrosios sąlygos skelbiami atskirai.
Dėl nuomojamo turto apžiūros, kuri vyksta 2026-03-23 - 2026-03-27, 10:00 val. - 15.00 val., būtina išankstinė registracija – informuoti kontaktinį asmenį ne vėliau kaip prieš 1 darbo dieną iki planuojamos apžiūros.
📍 Objekto lokacija
📍 Vilniaus m. sav. Vilniaus m. A. Juozapavičiaus g. 9-2
❓ Dažnai užduodami klausimai
Kokia administracinių patalpų bendra nuomojama kvadratūra A. Juozapavičiaus g. 9?
Bendras nuomojamas plotas yra 39,10 kv. m, įskaitant bendro naudojimo patalpas. Konkretus patalpų indeksas yra 2-21, 2-22, 2-23.
Kada baigiasi nuomos konkursas A. Juozapavičiaus g. 9 patalpoms?
Nuomos konkursas baigiasi 2026-04-10 13:59:59.
Kokia pradinė administracinių patalpų nuomos kaina?
Pradinė kaina aukcione yra 0 EUR.
Kada galima apžiūrėti nuomojamas patalpas Vilniuje, A. Juozapavičiaus g. 9?
Apžiūros vyksta 2026-03-23 - 2026-03-27, nuo 10:00 val. iki 15.00 val., išanksto informavus kontaktinį asmenį.
Koks yra registracijos mokestis dalyvauti nuomos konkurse?
Dalyvio registracijos mokestis, kurį sumoka ketinantis dalyvauti asmuo, yra 50 EUR.
Koks yra Unikalus NR. ir koks organizatorius?
Unikalus turto NR. yra 1097-3000-1019:0005. Organizatorius yra Valstybės įmonė Turto bankas (Į. K. 112021042).