📝 Aprašymas
Parduodamos (nuomojamos) administracinės paskirties patalpos Vilniaus mieste, esančios A. Juozapavičiaus gatvėje 9-2. Šis pakartotinis nuomos konkursas apima administracines patalpas 2-ame aukšte su bendro naudojimo patalpomis. Bendra nuomojama naudinga patalpų ploto apimtis siekia 128,90 kv. m. Patalpos yra nuomojamos esamos būklės, o tai suteikia potencialiam nuomininkui galimybę įrengti jas pagal savo specifinius verslo poreikius, investuojant nuosavas lėšas.
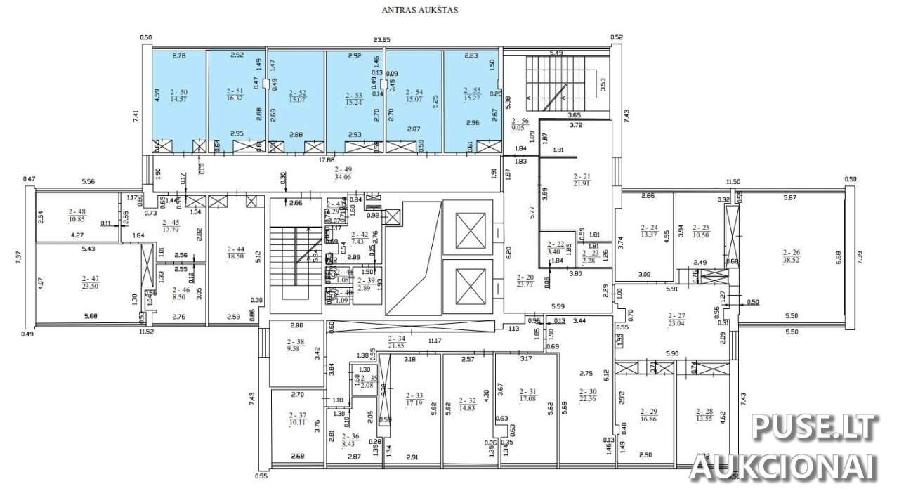
Konkrečiai nuomojamos patalpos pažymėtos indeksais 2-50, 2-51, 2-52, 2-53, 2-54, 2-55, kurių bendras plotas yra 91,54 kv. m, papildomai priskiriant bendro naudojimo erdves. Tai puiki galimybė įmonėms, ieškančioms patalpų Vilniaus mieste, pritaikyti erdvę savo reprezentaciniams ar administraciniams tikslams.
Pradinė nuomos kaina (aukcione) nustatyta 0 EUR. Konkurso dalyvio registracijos mokestis yra 50 EUR. Dalyviai turi atlikti registraciją nuo 2026-03-30 iki 2026-04-01 pilnos dienos. Pats nuomos konkursas vyraus nuo 2026-04-09 09:00:00 iki 2026-04-10 13:59:59.
Atsiskaitymas už registracijos mokestį ir pradinį įnašą atliekamas į VĮ Turto bankas sąskaitą AB SEB banke. Nuomos sąlygos ir sutarties projektai, taip pat ir valstybės ilgalaikio materialiojo turto nuomos elektroninio konkurso bendrosios sąlygos, yra skelbiami viešai.
Valstybės įmonė Turto bankas (įm. k. 112021042) yra nuomos organizatorius. Unikalus objekto numeris – 1097-3000-1019:0005. Šis turtas priklauso Lietuvos Respublikai.
Konkrečiai nuomojamos patalpos pažymėtos indeksais 2-50, 2-51, 2-52, 2-53, 2-54, 2-55, kurių bendras plotas yra 91,54 kv. m, papildomai priskiriant bendro naudojimo erdves. Tai puiki galimybė įmonėms, ieškančioms patalpų Vilniaus mieste, pritaikyti erdvę savo reprezentaciniams ar administraciniams tikslams.
Pradinė nuomos kaina (aukcione) nustatyta 0 EUR. Konkurso dalyvio registracijos mokestis yra 50 EUR. Dalyviai turi atlikti registraciją nuo 2026-03-30 iki 2026-04-01 pilnos dienos. Pats nuomos konkursas vyraus nuo 2026-04-09 09:00:00 iki 2026-04-10 13:59:59.
Atsiskaitymas už registracijos mokestį ir pradinį įnašą atliekamas į VĮ Turto bankas sąskaitą AB SEB banke. Nuomos sąlygos ir sutarties projektai, taip pat ir valstybės ilgalaikio materialiojo turto nuomos elektroninio konkurso bendrosios sąlygos, yra skelbiami viešai.
Valstybės įmonė Turto bankas (įm. k. 112021042) yra nuomos organizatorius. Unikalus objekto numeris – 1097-3000-1019:0005. Šis turtas priklauso Lietuvos Respublikai.
📍 Objekto lokacija
📍 Vilniaus m. sav. Vilniaus m. A. Juozapavičiaus g. 9-2
❓ Dažnai užduodami klausimai
Kokia bendra administracinių patalpų nuomojama teritorija A. Juozapavičiaus g. 9?
Bendra nuomojama naudinga plotas, įskaitant bendro naudojimo patalpas, siekia 128,90 kv. m. Konkrečios patalpos užima 91,54 kv. m (indeksai 2-50, 2-51, 2-52, 2-53, 2-54, 2-55).
Kada vyks nuomos elektroninis konkursas dėl šių patalpų Vilniuje?
Aukcionas prasideda 2026-04-09 09:00:00 ir baigiasi 2026-04-10 13:59:59.
Kokia yra pradinė šių administracinių patalpų nuomos kaina?
Pradinė nurodyta kaina aukcione siekia 0 EUR.
Ar yra numatytas registracijos mokestis dalyvaujant konkurse?
Taip, registracijos mokestis dalyviui yra 50 EUR. Registracija vyksta nuo 2026-03-30 iki 2026-04-01.
Kada galima apžiūrėti administracines patalpas A. Juozapavičiaus g. 9?
Patalpas galima apžiūrėti nuo 2026-03-23 iki 2026-03-27, kasdien nuo 10:00 val. iki 15.00 val., iš anksto informuojant kontaktinį asmenį.
Kokia yra patalpų būklė ir ar galima jas įsirengti pagal savo poreikius?
Patalpos nuomojamos esamos būklės. Nuomininkas turi galimybę savo lėšomis jas įsirengti pagal savo poreikius.
Kas organizuoja šį nuomos konkursą ir koks yra turto unikalus numeris?
Nuomos konkursą organizuoja Valstybės įmonė Turto bankas. Objekto unikalus numeris yra 1097-3000-1019:0005.