📝 Aprašymas
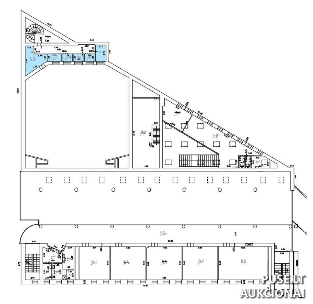
Vilniaus miesto savivaldybėje, Laisvės prospekte 28, nuomojamos didelės administracinės patalpos, skirtos kūrybinei, meninei ir pramogų organizavimo veiklai. Šis pakartotinis nuomos konkursas siūlo nuomotis bendrą 739,44 kv. m plotą, įskaitant specialiai pažymėtas patalpas indeksais nuo 1-24 iki 1-29 bei nuo 2-19 iki 2-24, kurių bendras plotas yra 453,18 kv. m, taip pat bendro naudojimo patalpas.
Nuomojamos patalpos perduodamos esamos būklės, suteikiant nuomininkui galimybę (savo lėšomis) įrengti erdves pagal specifinius savo veiklos poreikius. Pradinė nuomos kaina nustatyta 0 EUR, o registracijos mokestis dalyviams yra 50 EUR.
E. konkursas vyks nuo 2026-05-07 09:00:00 iki 2026-05-08 13:59:59. Registracija dalyvavimui vyksta nuo 2026-04-27 00:00:00 iki 2026-04-29 23:59:59.
Turto unikalus numeris yra 1099-7015-4024. Patalpos priklauso Lietuvos Respublikai. Detalios ilgalaikio turto nuomos sąlygos ir sutarties projektai skelbiami organizatoriaus pateiktuose dokumentuose. Atsiskaitomoji sąskaita nuomos registracijos mokesčiui ir pradiniam įnašui sumokėti yra AB SEB banke, sąskaita Nr. LT51 7044 0600 0044 3925, gavėjas VĮ Turto bankas, įm. k. 112021042.
Nuomojamos patalpos perduodamos esamos būklės, suteikiant nuomininkui galimybę (savo lėšomis) įrengti erdves pagal specifinius savo veiklos poreikius. Pradinė nuomos kaina nustatyta 0 EUR, o registracijos mokestis dalyviams yra 50 EUR.
E. konkursas vyks nuo 2026-05-07 09:00:00 iki 2026-05-08 13:59:59. Registracija dalyvavimui vyksta nuo 2026-04-27 00:00:00 iki 2026-04-29 23:59:59.
Turto unikalus numeris yra 1099-7015-4024. Patalpos priklauso Lietuvos Respublikai. Detalios ilgalaikio turto nuomos sąlygos ir sutarties projektai skelbiami organizatoriaus pateiktuose dokumentuose. Atsiskaitomoji sąskaita nuomos registracijos mokesčiui ir pradiniam įnašui sumokėti yra AB SEB banke, sąskaita Nr. LT51 7044 0600 0044 3925, gavėjas VĮ Turto bankas, įm. k. 112021042.
📍 Objekto lokacija
📍 Vilniaus m. sav. Vilniaus m. Laisvės pr. 28
❓ Dažnai užduodami klausimai
Kokia administracinių patalpų bendra nuomojama kvadratūra Laisvės pr. 28?
Bendra nuomojama patalpų, pažymėtų indeksais 1-24 iki 1-29 ir 2-19 iki 2-24 bei bendro naudojimo patalpų, plotas sudaro 739,44 kv. m.
Kada baigiasi nuomos e. konkursas Laisvės pr. 28 patalpoms?
Nuomos e. konkursas baigiasi 2026-05-08 13:59:59.
Kokia pradinė nuomos kaina ir kokio pobūdžio veiklai skirtos patalpos?
Pradinė nuomos kaina yra 0 EUR. Patalpos nuomojamos kūrybinei, meninei ir pramogų organizavimo veiklai.
Kada vyksta registracija dalyvauti nuomos konkurse?
Registracija vyksta nuo 2026-04-27 00:00:00 iki 2026-04-29 23:59:59.
Kokia yra registracijos mokesčio suma ir į kokią sąskaitą ji mokama?
Registracijos mokestis yra 50 EUR. Mokėjimas atliekamas į AB SEB banko sąskaitą Nr. LT51 7044 0600 0044 3925, gavėjas VĮ Turto bankas.
Kada galima apžiūrėti administracines patalpas Vilniuje, Laisvės pr. 28?
Apžiūros laikas numatytas nuo 2026-03-30 iki 2026-04-24, nuo 10:00 val. iki 15.00 val., išankstinio informavimo apie atvykimą reikalavimu.