📝 Aprašymas
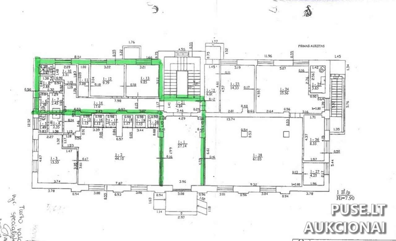
Vilniaus miesto savivaldybės administracija nuomoja pakartotinio aukciono būdu 47,92 kv. m negyvenamąsias patalpas, esančias administraciniame pastate Vilniaus g. 6, Grigiškėse, Vilniuje. Šis objektas yra pirmame aukšte, pažymėtas indeksais 1-(6-13), ir jį nuomojantis asmuo dalinai naudosis bendrojo naudojimo patalpomis, pažymėtomis indeksais 1-(1, 14, 21).
Nuomos laikotarpis yra nustatytas 5 metams ir yra skirtas administracinei ar paslaugų veiklai vykdyti. Pradinė nuomos kaina nustatyta 239 Eur per mėnesį. PVM nuomai netaikomas. Jeigu turtas išnuomojamas ilgesniam nei 10 metų laikotarpiui, nuompinigiai perskaičiuojami po 5 metų.
Pradinis įnašas, lygus trims mėnesiams nuomos kainos, sudaro 717 Eur. Šis pradinis įnašas lieka nuomotojui kaip sutarties sąlygų įvykdymo užtikrinimas ir grąžinamas pasibaigus sutarčiai, jei nuomininkas tinkamai vykdė visas sąlygas. Nelaimėjusiems konkurso dalyviams, pateikus raštišką prašymą, pradinis įnašas bus grąžintas. Svarbu žinoti, kad sutarties atsisakius arba neatvykus pasirašyti sutarties nustatytu laiku, pradinis įnašas negrąžinamas.
Administracinio pastato unikalus numeris yra 7995-9003-7011. Patalpų apžiūra buvo galima darbo dienomis nuo 2026 m. kovo 31 d. iki 2026 m. balandžio 13 d. Registracijos mokestis dalyvavimui konkurse yra 20 EUR.
Konkursas prasideda 2026-04-16 09:00:00 ir baigiasi 2026-04-17 13:59:59. Registracija vyksta nuo 2026-04-13 00:00:00 iki 2026-04-14 23:59:59.
Nuomos laikotarpis yra nustatytas 5 metams ir yra skirtas administracinei ar paslaugų veiklai vykdyti. Pradinė nuomos kaina nustatyta 239 Eur per mėnesį. PVM nuomai netaikomas. Jeigu turtas išnuomojamas ilgesniam nei 10 metų laikotarpiui, nuompinigiai perskaičiuojami po 5 metų.
Pradinis įnašas, lygus trims mėnesiams nuomos kainos, sudaro 717 Eur. Šis pradinis įnašas lieka nuomotojui kaip sutarties sąlygų įvykdymo užtikrinimas ir grąžinamas pasibaigus sutarčiai, jei nuomininkas tinkamai vykdė visas sąlygas. Nelaimėjusiems konkurso dalyviams, pateikus raštišką prašymą, pradinis įnašas bus grąžintas. Svarbu žinoti, kad sutarties atsisakius arba neatvykus pasirašyti sutarties nustatytu laiku, pradinis įnašas negrąžinamas.
Administracinio pastato unikalus numeris yra 7995-9003-7011. Patalpų apžiūra buvo galima darbo dienomis nuo 2026 m. kovo 31 d. iki 2026 m. balandžio 13 d. Registracijos mokestis dalyvavimui konkurse yra 20 EUR.
Konkursas prasideda 2026-04-16 09:00:00 ir baigiasi 2026-04-17 13:59:59. Registracija vyksta nuo 2026-04-13 00:00:00 iki 2026-04-14 23:59:59.
📍 Objekto lokacija
📍 Vilniaus m. sav. Grigiškių m. Vilniaus g. 6
❓ Dažnai užduodami klausimai
Kokia negyvenamųjų patalpų Vilniaus g. 6, Grigiškėse, pradinė nuomos kaina?
Pradinė nuomos kaina yra 239 Eur per mėnesį, PVM netaikomas.
Kada vyksta nuomos konkursas ir iki kada reikia registruotis?
Aukcionas prasideda 2026-04-16 09:00:00 ir baigiasi 2026-04-17 13:59:59. Registracija baigiasi 2026-04-14 23:59:59.
Koks yra pradinio įnašo dydis ir kokiam laikotarpiui nuomojamos patalpos?
Pradinis įnašas lygus 3 mėnesių nuomos kainai, t.y. 717 Eur. Patalpos nuomojamos 5 metų laikotarpiui.
Kokia yra parduodamų/nuomojamų patalpų bendra kvadratūra ir unikalus numeris?
Nuomojamų patalpų plotas yra 47,92 kv. m. Administracinio pastato unikalus numeris yra 7995-9003-7011.
Kiek kainuoja registracija dalyvaujant nuomos konkurse?
Registracijos mokestis dalyvavimui konkurse yra 20 EUR.
Kada galima apžiūrėti nuomojamas patalpas Grigiškėse?
Patalpų apžiūra galima darbo dienomis nuo 2026 m. kovo 31 d. iki 2026 m. balandžio 13 d., nuo 9 iki 15 val.
Kokia organizacija vykdo nuomos konkursą?
Nuomos konkursą organizuoja Vilniaus miesto savivaldybės administracija, įmonės kodas 188710061.