📝 Aprašymas
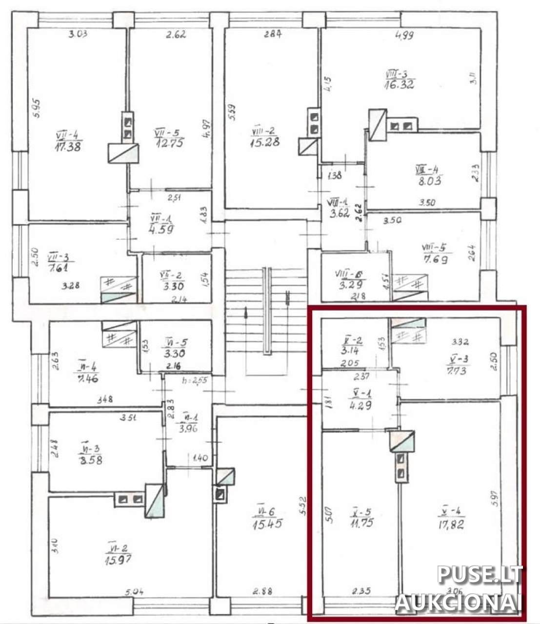
Parduodama dalinė nuosavybė – 1/2 dalis buto, esančio Panevėžio rajono savivaldybėje, Bobiniškių kaime, 16-ajame name, 5 bute. Šis parduodamas objektas taip pat apima 1/16 dalį ūkinio pastato, kurio bendras užstatytas plotas siekia 200.00 kv. m., unikalus Nr. 6696-9012-8027. Buto bendras plotas, kurio dalis parduodama, yra 44.73 kv. m., unikalus Nr. 6696-9012-8016:0002.
Nekilnojamasis turtas parduodamas esamos faktinės būklės, remiantis neaktualiais nekilnojamojo turto kadastro duomenimis. Valstybės įmonė Turto bankas neprisiima įsipareigojimų nustatyti tikslų ir atnaujintą nekilnojamojo turto kadastro būklę, taip pat Turto bankas neįsipareigoja iškraustyti jame esančių daiktų. Svarbu žinoti, kad bendraturčiai nėra sudarę jokių susitarimų dėl bendros dalinės nuosavybės naudojimosi tvarkos.
Be to, parduodami statiniai yra valstybinėje žemėje, kurios sklypas nėra suformuotas. VĮ Turto bankas neturi teisių į šį žemės sklypą ar jo dalį ir tokių teisių potencialiam pirkėjui neperleidžia.
Aukcionas skelbiamas per Turto banko sistemą. Pradinė kaina siekia 207 EUR. Galioja 20 EUR garantinis mokestis ir 1 EUR registracijos mokestis. Pirkėjai registruojami nuo 2026-05-18 00:00:00 iki 2026-05-20 23:59:59. Aukcionas vyks nuo 2026-05-25 09:00:00 iki 2026-05-26 13:59:59. Svarbu laiku sumokėti mokesčius, naudojantis Neopay sistema arba bankiniu pavedimu nurodyta sąskaita, įrašant konkretų aukciono numerį paskirtyje.
Nekilnojamasis turtas parduodamas esamos faktinės būklės, remiantis neaktualiais nekilnojamojo turto kadastro duomenimis. Valstybės įmonė Turto bankas neprisiima įsipareigojimų nustatyti tikslų ir atnaujintą nekilnojamojo turto kadastro būklę, taip pat Turto bankas neįsipareigoja iškraustyti jame esančių daiktų. Svarbu žinoti, kad bendraturčiai nėra sudarę jokių susitarimų dėl bendros dalinės nuosavybės naudojimosi tvarkos.
Be to, parduodami statiniai yra valstybinėje žemėje, kurios sklypas nėra suformuotas. VĮ Turto bankas neturi teisių į šį žemės sklypą ar jo dalį ir tokių teisių potencialiam pirkėjui neperleidžia.
Aukcionas skelbiamas per Turto banko sistemą. Pradinė kaina siekia 207 EUR. Galioja 20 EUR garantinis mokestis ir 1 EUR registracijos mokestis. Pirkėjai registruojami nuo 2026-05-18 00:00:00 iki 2026-05-20 23:59:59. Aukcionas vyks nuo 2026-05-25 09:00:00 iki 2026-05-26 13:59:59. Svarbu laiku sumokėti mokesčius, naudojantis Neopay sistema arba bankiniu pavedimu nurodyta sąskaita, įrašant konkretų aukciono numerį paskirtyje.
📍 Objekto lokacija
📍 Panevėžio r. sav. Bobiniškių k. 16-5
❓ Dažnai užduodami klausimai
Kokia nekilnojamojo turto pradinė kaina ir kokie papildomi mokesčiai taikomi?
Pradinė kaina yra 207 EUR. Taip pat reikia sumokėti 20 EUR garantinį mokestį ir 1 EUR registracijos mokestį.
Kada vyks šis dalinės nuosavybės aukcionas?
Aukcionas prasidės 2026-05-25 09:00:00 ir baigsis 2026-05-26 13:59:59.
Kokia tiksliai dalis parduodama ir kokio ploto objektai yra parduodami?
Parduodama 1/2 dalis buto, kurio bendras plotas yra 44.73 kv. m. Taip pat parduodama 1/16 dalis ūkinio pastato (200.00 kv. m. užstatytas plotas).
Koks yra parduodamo objekto adresas ir unikalūs numeriai?
Adresas: Panevėžio r. sav., Bobiniškių k. 16-5. Buto unikalus Nr.: 6696-9012-8016:0002. Ūkinio pastato unikalus Nr.: 6696-9012-8027.
Ar Turto bankas garantuoja turto būklę ir ar iškraustys esamus daiktus?
Nekilnojamasis turtas parduodamas esamos faktinės būklės pagal neatnaujintus kadastro duomenis. VĮ Turto bankas neįsipareigoja nustatyti aktualios būklės ir neįsipareigoja iškraustyti jose esančių daiktų.
Ar žemės sklypas priklauso parduodamai nuosavybės daliai?
Parduodami statiniai yra valstybinėje žemėje, kurioje žemės sklypas nesuformuotas, todėl pardavėjas neturi teisių į sklypą ir jų neperleidžia.
Kada privaloma registruotis į aukcioną?
Registracija vyksta nuo 2026-05-18 00:00:00 iki 2026-05-20 23:59:59.