📝 Aprašymas
Parduodama negyvenamoji patalpa - valgykla (Pastatai, Pirminis aukcionas) su priklausančiu žemės sklypu Biržų rajono savivaldybėje, Vabalninko mieste, Panevėžio g. 11. Šis objektas, kurio unikalus numeris 3697-0006-7012, parduodamas 1/1 dalimis. Bendra pastato valgyklos ploto kaina prasideda nuo 26959 EUR.
Nekilnojamasis turtas parduodamas esamos fizinės ir funkcinės būklės, pagal galiojančius nekilnojamojo turto kadastro duomenis. Pardavėjas - Valstybės įmonė Turto bankas - neįsipareigoja nustatyti tikrosios nekilnojamojo turto kadastro duomenų būklės ar iškraustyti jame esančių daiktų.
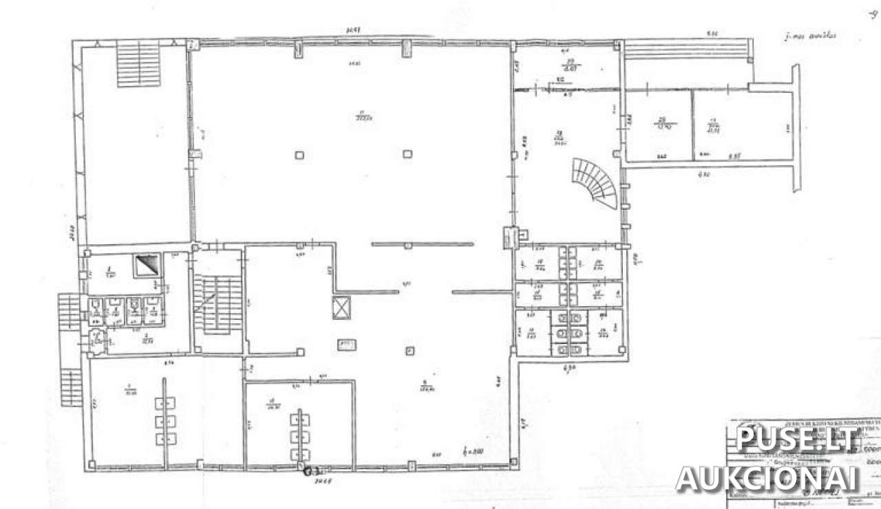
Į parduodamą objektą įeina 1384.67 kv. m valgyklos pastatas ir 0.2495 ha dalis bendro 0.4931 ha žemės sklypo (Unikalus Nr. 4400-6391-5030). Taip pat yra nustatyti įvairūs servitutai, įskaitant teisę tiesti, aptarnauti ir naudoti požemines bei antžemines komunikacijas (bendras plotas 1069 kv. m, įskaitant 228.00 kv. m kelio servitutą su teise važiuoti transporto priemonėmis ir naudotis pėsčiųjų taku). Žemės sklypo patikėtiniai nėra sudarę susitarimų dėl kaimyninių dalių naudojimosi tvarkos.
Pradinis aukciono kaina yra 26959 EUR. Būtina sumokėti 2695 EUR garantinį mokestį ir 40 EUR registracijos mokestį. Aukcionas vyks 2026-05-25 09:00:00 iki 2026-05-26 13:59:59. Registracija vyksta nuo 2026-05-18 00:00:00 iki 2026-05-20 23:59:59. Mokėjimai užsiregistruoti galima per NEOPAY arba bankiniu pavedimu į SEB banko sąskaitą (LT14 7044 0600 0044 3912), nurodant el. aukciono numerį.
Objekto apžiūros organizuojamos individualiai suderinus laiką iki registracijos pradžios.
Nekilnojamasis turtas parduodamas esamos fizinės ir funkcinės būklės, pagal galiojančius nekilnojamojo turto kadastro duomenis. Pardavėjas - Valstybės įmonė Turto bankas - neįsipareigoja nustatyti tikrosios nekilnojamojo turto kadastro duomenų būklės ar iškraustyti jame esančių daiktų.
Į parduodamą objektą įeina 1384.67 kv. m valgyklos pastatas ir 0.2495 ha dalis bendro 0.4931 ha žemės sklypo (Unikalus Nr. 4400-6391-5030). Taip pat yra nustatyti įvairūs servitutai, įskaitant teisę tiesti, aptarnauti ir naudoti požemines bei antžemines komunikacijas (bendras plotas 1069 kv. m, įskaitant 228.00 kv. m kelio servitutą su teise važiuoti transporto priemonėmis ir naudotis pėsčiųjų taku). Žemės sklypo patikėtiniai nėra sudarę susitarimų dėl kaimyninių dalių naudojimosi tvarkos.
Pradinis aukciono kaina yra 26959 EUR. Būtina sumokėti 2695 EUR garantinį mokestį ir 40 EUR registracijos mokestį. Aukcionas vyks 2026-05-25 09:00:00 iki 2026-05-26 13:59:59. Registracija vyksta nuo 2026-05-18 00:00:00 iki 2026-05-20 23:59:59. Mokėjimai užsiregistruoti galima per NEOPAY arba bankiniu pavedimu į SEB banko sąskaitą (LT14 7044 0600 0044 3912), nurodant el. aukciono numerį.
Objekto apžiūros organizuojamos individualiai suderinus laiką iki registracijos pradžios.
📍 Objekto lokacija
📍 Biržų r. sav. Vabalninko m. Panevėžio g. 11
❓ Dažnai užduodami klausimai
Kokia yra pradinė nekilnojamojo turto (valgyklos) kaina aukcione?
Pradinė nekilnojamojo turto kaina yra 26959 EUR.
Kada vyks šio turto aukcionas?
Aukcionas prasideda 2026-05-25 09:00:00 ir baigiasi 2026-05-26 13:59:59.
Kokia yra objekto adresas ir pagrindiniai išmatavimai?
Objektas yra Biržų r. sav., Vabalninko m., Panevėžio g. 11. Parduodamo valgyklos pastato bendras plotas yra 1384.67 kv. m, taip pat parduodama dalis - 0.2495 ha žemės sklypo (Unikalus Nr. 4400-6391-5030).
Kokie papildomi mokesčiai reikalingi dalyvavimui aukcione?
Reikalingas 2695 EUR dydžio garantinis mokestis ir 40 EUR registracijos mokestis.
Kada baigiasi registracija į aukcioną?
Registracija į aukcioną baigiasi 2026-05-20 23:59:59.
Kokia yra objekto būklė ir kokie apribojimai taikomi?
Nekilnojamasis turtas parduodamas esamos fizinės ir funkcinės būklės. Žemės sklypo patikėtiniai nėra sudarę naudojimosi tvarkos, nustatyti kelių ir ryšių servitutai.