📝 Aprašymas
Parduodamos 1/1 dalies buitinės patalpos Mažeikių rajone, Mažeikių apylinkės seniūnijoje, Pumpurų kaime, Pumpurinės gatvės 11-5 adresas. Bendras patalpų plotas yra 49.92 kvadratinių metrų. Unikalus šio turto registracijos numeris yra 6189-8000-8011:0005, ir šios patalpos parduodamos kaip pakartotinis turto aukcionas.
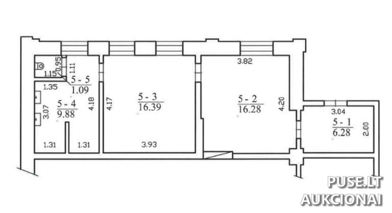
Patalpoje 5-1 yra iškirstos dvi angos ir įstatyti langai. Svarbu pažymėti, kad VĮ Turto bankas neturi informacijos apie pastato rekonstrukcijos datą ar tai, ar rekonstrukcija vyko vadovaujantis galiojusiais teisės aktais. VĮ Turto bankas neįsipareigoja nustatyti aktualios nekilnojamojo turto kadastro duomenų būklės ar ją registruoti. Būsimam pirkėjui rekomenduojama išnagrinėti visas su tokios būklės turto pirkimu susijusias teisines ir ekonomines rizikas, atlikti apžiūrą vietoje, įvertinti įrengimo kaštus ir galimus neatitikimus teisės aktų reikalavimams.
VĮ Turto bankas neatsako už jokius turto trūkumus, įskaitant neatitikimus statybos, aplinkos apsaugos ar kitų teisės aktų reikalavimams, tinkamumą naudoti tam tikrai paskirčiai ar kadastrinių matavimų neatitikimus. Taip pat VĮ Turto bankas neįsipareigoja iškraustyti pastate esančių daiktų.
Parduodami statiniai yra valstybinėje žemėje, kurios sklypas nėra suformuotas. VĮ Turto bankas neturi teisių į žemės sklypą ir jų neperleidžia.
Pradinė šių buitinių patalpų kaina aukcione siekia 3347 EUR. Registracijos mokestis yra 10 EUR, o garantinis mokestis – 334 EUR. Aukcionas vyks 2026-05-11 nuo 09:00:00 iki 2026-05-12 13:59:59. Registracija į aukcioną vyksta nuo 2026-05-04 00:00:00 iki 2026-05-06 23:59:59.
Patalpoje 5-1 yra iškirstos dvi angos ir įstatyti langai. Svarbu pažymėti, kad VĮ Turto bankas neturi informacijos apie pastato rekonstrukcijos datą ar tai, ar rekonstrukcija vyko vadovaujantis galiojusiais teisės aktais. VĮ Turto bankas neįsipareigoja nustatyti aktualios nekilnojamojo turto kadastro duomenų būklės ar ją registruoti. Būsimam pirkėjui rekomenduojama išnagrinėti visas su tokios būklės turto pirkimu susijusias teisines ir ekonomines rizikas, atlikti apžiūrą vietoje, įvertinti įrengimo kaštus ir galimus neatitikimus teisės aktų reikalavimams.
VĮ Turto bankas neatsako už jokius turto trūkumus, įskaitant neatitikimus statybos, aplinkos apsaugos ar kitų teisės aktų reikalavimams, tinkamumą naudoti tam tikrai paskirčiai ar kadastrinių matavimų neatitikimus. Taip pat VĮ Turto bankas neįsipareigoja iškraustyti pastate esančių daiktų.
Parduodami statiniai yra valstybinėje žemėje, kurios sklypas nėra suformuotas. VĮ Turto bankas neturi teisių į žemės sklypą ir jų neperleidžia.
Pradinė šių buitinių patalpų kaina aukcione siekia 3347 EUR. Registracijos mokestis yra 10 EUR, o garantinis mokestis – 334 EUR. Aukcionas vyks 2026-05-11 nuo 09:00:00 iki 2026-05-12 13:59:59. Registracija į aukcioną vyksta nuo 2026-05-04 00:00:00 iki 2026-05-06 23:59:59.
📍 Objekto lokacija
📍 Mažeikių r. sav. Pumpurų k. Pumpurinės g. 11-5
❓ Dažnai užduodami klausimai
Kokia pradinė kaina ir kokie papildomi mokesčiai taikomi perkant turtą Mažeikių rajone?
Pradinė buitinių patalpų kaina yra 3347 EUR. Taip pat reikės sumokėti 10 EUR registracijos mokestį ir 334 EUR garantinį mokestį.
Kada vyks turto aukcionas Mažeikių r. sav., Pumpurų k.?
Aukcionas prasideda 2026-05-11 09:00:00 ir baigiasi 2026-05-12 13:59:59.
Kada reikia spėti užsiregistruoti dalyvauti aukcione?
Registracija į aukcioną vyksta nuo 2026-05-04 00:00:00 iki 2026-05-06 23:59:59.
Koks parduodamo turto adresas ir plotas?
Adresas: Mažeikių r. sav., Pumpurų k., Pumpurinės g. 11-5. Buitinių patalpų bendras plotas yra 49.92 kv. m.
Ar VĮ Turto bankas garantuoja turto atitikimą statybos normoms?
Ne, VĮ Turto bankas neįsipareigoja nustatyti aktualios kadastro būklės ir neatsako už jokius turto trūkumus, įskaitant neatitikimus statybos ar aplinkosaugos teisės aktams.
Ar parduodamas objektas turi priskirtą žemės sklypą?
Ne, parduodami statiniai yra valstybinėje žemėje, kurioje žemės sklypas nėra suformuotas, ir VĮ Turto bankas teisių į sklypą neperleidžia.