📝 Aprašymas
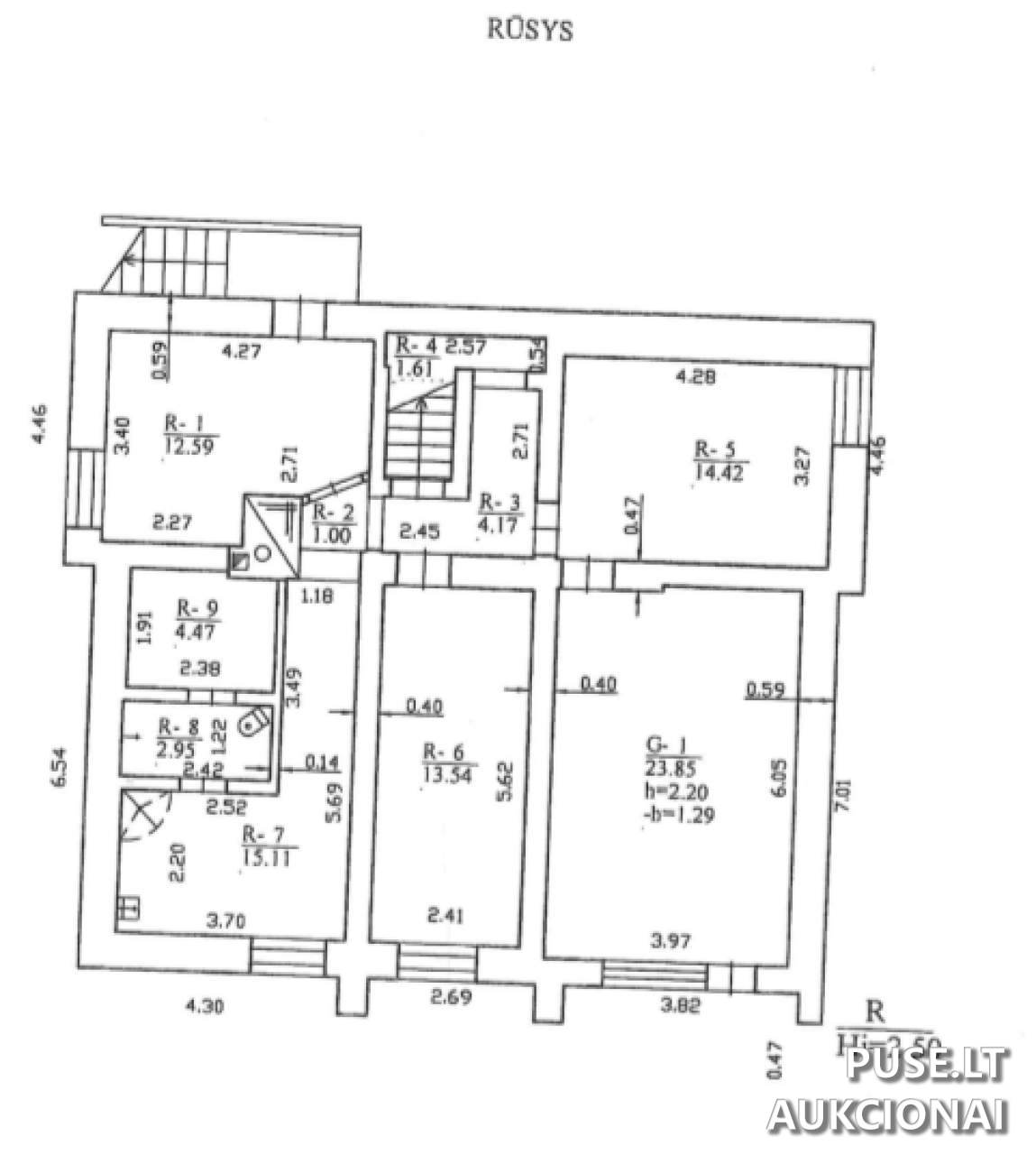
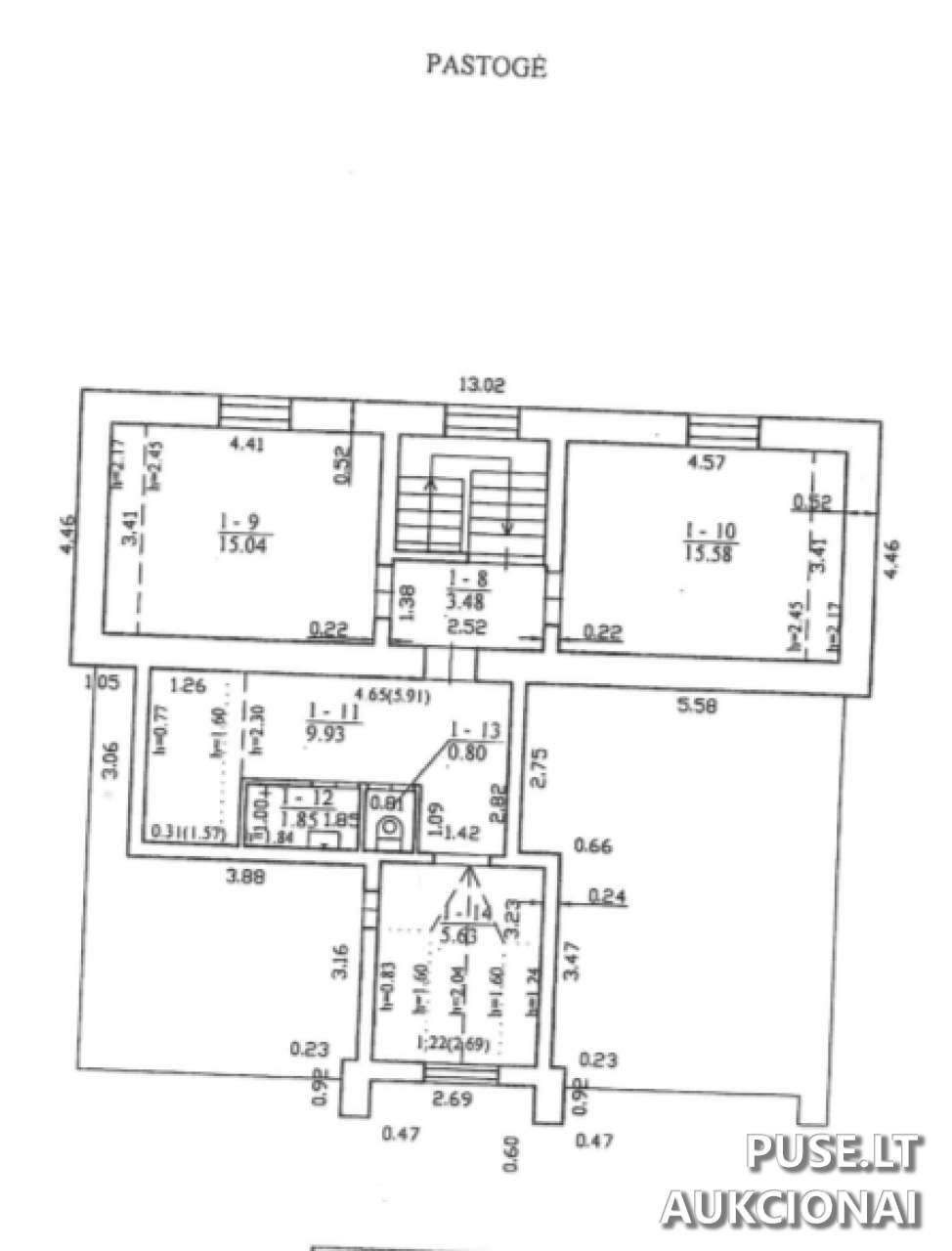
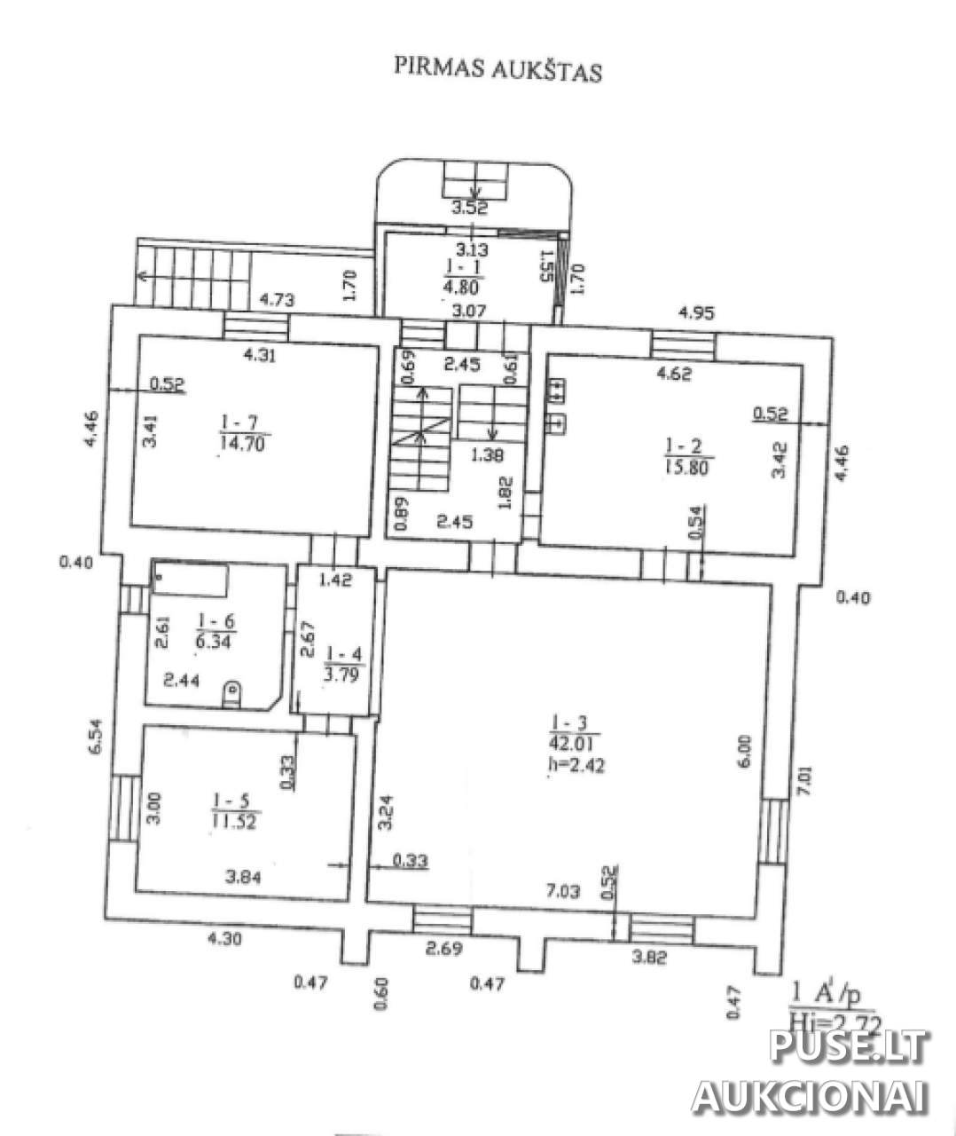
Parduodamas 1/1 dalis gyvenamojo namo Mažeikių rajono savivaldybėje, Mažeikių mieste, Melioratorių gatvėje 4, skelbiamas kaip Pakartotinis pastatų aukcionas. Šis 2012 metais statytas mūrinis namas turi vieną aukštą su mansarda ir yra puiki investicinė galimybė Mažeikių miesto teritorijoje.
Komunalinės paslaugos užtikrinamos - yra komunalinis vandentiekis ir nuotekų šalinimas. Namo šildymo sistema yra vietinė. Svarbu atkreipti dėmesį, kad turtas parduodamas esamos fizinės ir funkcinės būklės ir pagal neatnaujintus kadastro duomenis. Aukciono organizatorius neprisiima atsakomybės ir neįsipareigoja iškraustyti patalpose esančių daiktų.
Aukcionas prasideda 2026-05-04 09:00:00 ir baigiasi 2026-05-05 13:59:59. Registracija dalyviams vyksta nuo 2026-04-27 00:00:00 iki 2026-04-28 23:59:59. Pradinė pardavimo kaina yra 90148 EUR. Būtina sumokėti 9015 EUR dydžio garantinį mokestį ir 50 EUR registracijos mokestį.
Turto apžiūra numatyta 2026 m. balandžio 24 d. 10.00 val. Norintys dalyvauti apžiūroje, privalo iš anksto registruotis iki 2026 m. balandžio 23 d. 12.00 val.
Aukciono laimėtojas turi pasirašyti aukciono protokolą tą pačią dieną arba ne vėliau kaip kitą darbo dieną ir pateikti pasirašytą dokumentą organizatoriui. Pirkimo-pardavimo sutartis turi būti sudaroma ne vėliau kaip per 30 dienų nuo aukciono dienos. Atsiskaitymas turi būti atliktas per 10 kalendorinių dienų po sutarties pasirašymo. Pirkėjas apmoka visas sutarčių sudarymo išlaidas, įskaitant atlyginimą notarui.
Komunalinės paslaugos užtikrinamos - yra komunalinis vandentiekis ir nuotekų šalinimas. Namo šildymo sistema yra vietinė. Svarbu atkreipti dėmesį, kad turtas parduodamas esamos fizinės ir funkcinės būklės ir pagal neatnaujintus kadastro duomenis. Aukciono organizatorius neprisiima atsakomybės ir neįsipareigoja iškraustyti patalpose esančių daiktų.
Aukcionas prasideda 2026-05-04 09:00:00 ir baigiasi 2026-05-05 13:59:59. Registracija dalyviams vyksta nuo 2026-04-27 00:00:00 iki 2026-04-28 23:59:59. Pradinė pardavimo kaina yra 90148 EUR. Būtina sumokėti 9015 EUR dydžio garantinį mokestį ir 50 EUR registracijos mokestį.
Turto apžiūra numatyta 2026 m. balandžio 24 d. 10.00 val. Norintys dalyvauti apžiūroje, privalo iš anksto registruotis iki 2026 m. balandžio 23 d. 12.00 val.
Aukciono laimėtojas turi pasirašyti aukciono protokolą tą pačią dieną arba ne vėliau kaip kitą darbo dieną ir pateikti pasirašytą dokumentą organizatoriui. Pirkimo-pardavimo sutartis turi būti sudaroma ne vėliau kaip per 30 dienų nuo aukciono dienos. Atsiskaitymas turi būti atliktas per 10 kalendorinių dienų po sutarties pasirašymo. Pirkėjas apmoka visas sutarčių sudarymo išlaidas, įskaitant atlyginimą notarui.
📍 Objekto lokacija
📍 Mažeikių r. sav. Mažeikių m. Melioratorių g. 4
❓ Dažnai užduodami klausimai
Kokia yra gyvenamojo namo Melioratorių g. 4, Mažeikiuose, pradinė kaina aukcione?
Pradinė kaina, už kurią pradedamas aukcionas, yra 90148 EUR.
Kada vyks turto apžiūra Mažeikiuose?
Nekilnojamojo turto apžiūra numatyta 2026 m. balandžio 24 d. 10.00 val. Būtina išankstinė registracija iki 2026 m. balandžio 23 d. 12.00 val.
Kada prasideda ir baigiasi aukciono registracija?
Registracija aukcionui prasideda 2026-04-27 00:00:00 ir baigiasi 2026-04-28 23:59:59.
Kokie yra privalomi mokesčiai dalyvaujant aukcione?
Dalyvaujant aukcione reikia sumokėti 9015 EUR dydžio garantinį mokestį ir 50 EUR registracijos mokestį.
Kokie yra pagrindiniai namo Mažeikiuose, Melioratorių g. 4, statybiniai ypatumai?
Namas statytas 2012 metais, yra mūrinis, vieno aukšto su mansarda. Įvestas komunalinis vandentiekis ir nuotekų šalinimas, šildymas vietinis.
Per kiek laiko po laimėjimo turi būti sudaryta pirkimo-pardavimo sutartis?
Su aukciono laimėtoju pirkimo-pardavimo sutartis privalo būti sudaryta ne vėliau kaip per 30 dienų nuo pardavimo aukcione dienos.