📝 Aprašymas
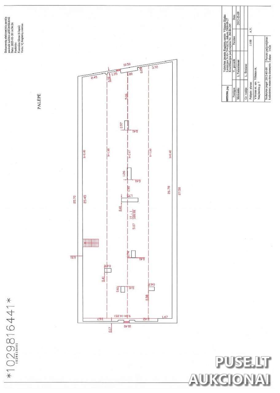
Parduodama neįrengta pastogės dalis (141/1000 dalis) Vilniaus miesto savivaldybėje, adresu Naujininkų g. 7, Vilnius. Bendras patalpų plotas, į kurį tenka parduodama dalis, yra 109,98 kv. m, o parduodama dalis atitinka 15,51 kv. m negyvenamosios patalpos dalį. Tai yra puiki galimybė investuoti į nekilnojamąjį turtą Vilniaus senamiesčio vizualinės apsaugos zonoje. Patalpos yra mūrinio pastato palėpėje ir parduodamos esamos būklės, be įrengimo. Objekto unikalus kodas registre 4400-2358-2467:3910.
SVARBI SAUGOMO KULTŪROS PAVELDO SĄLYGA: Nors pats pastatas nėra įrašytas į Kultūros vertybių registrą, jis visgi yra Vilniaus senamiesčio, kuris yra paskelbtas kultūros paminklu (unikalus kodas 16073), vizualinės apsaugos pozonio teritorijoje. Todėl visos patalpų naudojimo, tvarkymo, statybos (remonto, rekonstrukcijos) darbos yra griežtai reglamentuojami Lietuvos Respublikos nekilnojamojo kultūros paveldo apsaugos įstatymu bei kitais susijusiais teisės aktais. Būsimiems savininkams būtina atsižvelgti į paveldosaugininkų reikalavimus.
Ekonominiai aukciono aspektai: Pradinė pardavimo kaina nustatyta 3300 EUR. Dalyvio garantinis mokestis sudaro 330 EUR, o registracijos mokestis yra 70 EUR. Galimybė įsigyti dalį nekilnojamojo turto su potencialu vystyti projektą, esant atitikmenims paveldo apsaugos reikalavimams. Pirkimo-pardavimo sutartis turi būti pasirašoma per 30 dienų nuo aukciono vykdymo dienos, o visa kaina sumokama per 10 dienų po sutarties pasirašymo. Aukcioną organizuoja Vilniaus miesto savivaldybės administracija.
SVARBI SAUGOMO KULTŪROS PAVELDO SĄLYGA: Nors pats pastatas nėra įrašytas į Kultūros vertybių registrą, jis visgi yra Vilniaus senamiesčio, kuris yra paskelbtas kultūros paminklu (unikalus kodas 16073), vizualinės apsaugos pozonio teritorijoje. Todėl visos patalpų naudojimo, tvarkymo, statybos (remonto, rekonstrukcijos) darbos yra griežtai reglamentuojami Lietuvos Respublikos nekilnojamojo kultūros paveldo apsaugos įstatymu bei kitais susijusiais teisės aktais. Būsimiems savininkams būtina atsižvelgti į paveldosaugininkų reikalavimus.
Ekonominiai aukciono aspektai: Pradinė pardavimo kaina nustatyta 3300 EUR. Dalyvio garantinis mokestis sudaro 330 EUR, o registracijos mokestis yra 70 EUR. Galimybė įsigyti dalį nekilnojamojo turto su potencialu vystyti projektą, esant atitikmenims paveldo apsaugos reikalavimams. Pirkimo-pardavimo sutartis turi būti pasirašoma per 30 dienų nuo aukciono vykdymo dienos, o visa kaina sumokama per 10 dienų po sutarties pasirašymo. Aukcioną organizuoja Vilniaus miesto savivaldybės administracija.
📍 Objekto lokacija
📍 Vilniaus m. sav. Vilniaus m. Naujininkų g. 7
❓ Dažnai užduodami klausimai
Kokia yra neįrengtos palėpės dalies pradinė kaina Vilniuje Naujininkų g. 7?
Pradinė pardavimo kaina yra 3300 EUR už 141/1000 dalį patalpų.
Kada vyks pagrindinis aukcionas šiam nekilnojamajam turtui?
Aukcionas vyks nuo 2026-05-25 09:00:00 iki 2026-05-26 13:59:59.
Kokie yra privalomi pradiniai mokesčiai norint dalyvauti aukcione?
Dalyvio garantinis mokestis yra 330 EUR, o registracijos mokestis – 70 EUR. Šie mokesčiai turi būti sumokėti iki registracijos pabaigos.
Kokie pagrindiniai apribojimai taikomi šiam turtui, susiję su vieta?
Patalpos yra Vilniaus senamiesčio, kuris yra kultūros paminklas, vizualinės apsaugos zonoje. Visi remonto ar statybos darbai turi atitikti Kultūros paveldo apsaugos reikalavimus.
Kiek laiko turi laimėtojas sutarties pasirašymui ir pilnam apmokėjimui?
Pirkimo-pardavimo sutartis turi būti sudaryta per 30 dienų nuo aukciono dienos, o visa kaina sumokėta per 10 dienų po sutarties pasirašymo.
Kokie yra patalpų ploto duomenys?
Parduodama 141/1000 dalis negyvenamosios patalpos (pastogės) sudaro 15,51 kv. m iš bendro 109,98 kv. m ploto pastate.