📝 Aprašymas
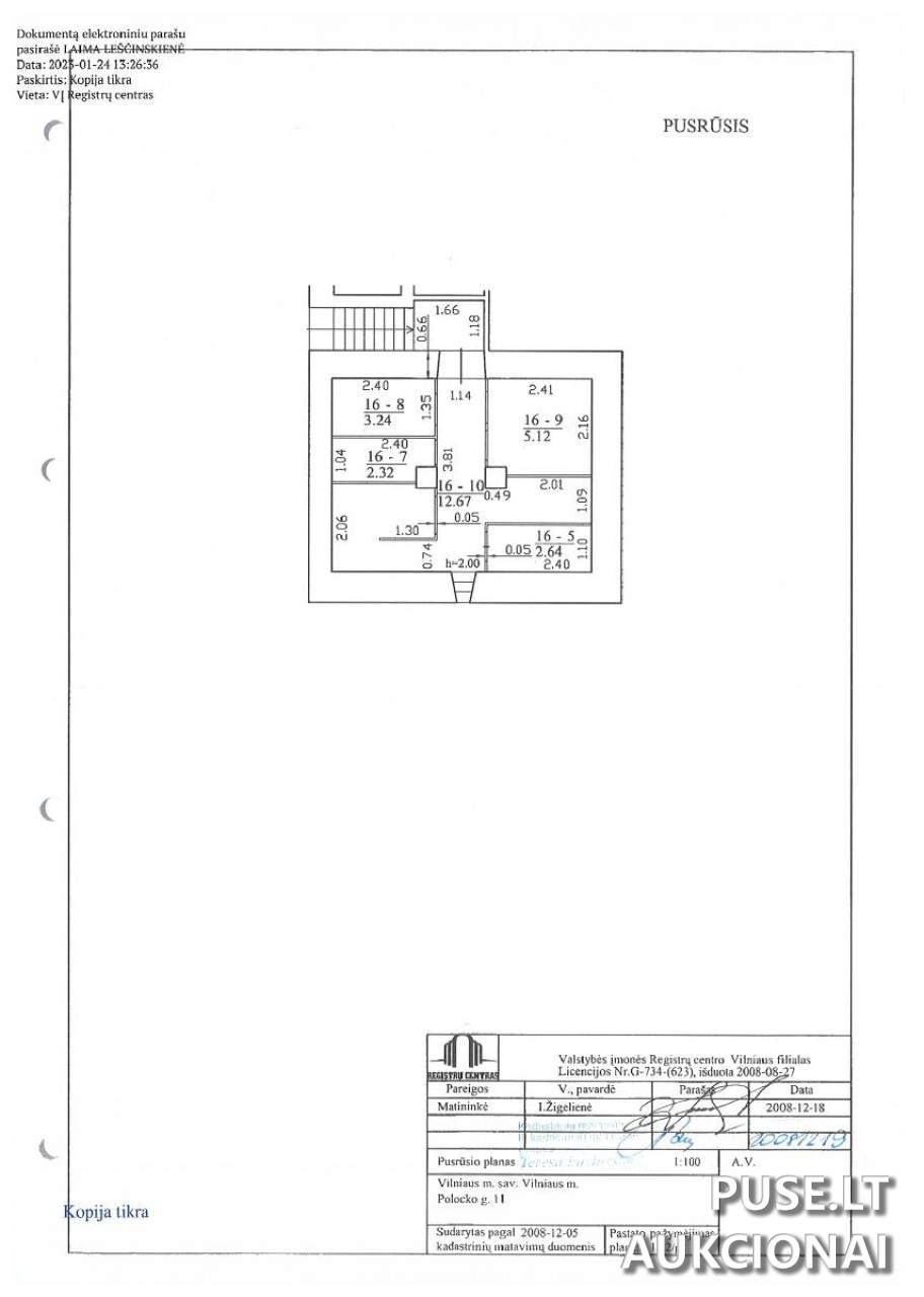
Parduodama 477/10000 dalis negyvenamosios patalpos, konkrečiai pusrūsio patalpos, esančios Vilniaus miesto savivaldybėje, adresu Polocko g. 11. Ši dalis atitinka 1,24 kv. m bendro 25,99 kv. m ploto, patalpos yra dviejų aukštų mūrinio pastato cokoliniame aukšte. Unikalus parduodamos dalies numeris yra 4400-1784-2930:7102. Pradinė kaina, už kurią pradedamas pakartotinis aukcionas, yra 537 EUR.
Aukciono dalyviai privalo susimokėti 53 EUR dydžio garantinį mokestį ir 70 EUR registracijos mokestį. Garantinis įnašas ir registracijos mokestis turi būti sumokėti iki registracijos į elektroninį aukcioną pabaigos.
SVARBIOS NAUDOJIMO SĄLYGOS: Nors patalpos nėra įrašytos į Kultūros vertybių registrą, jos yra valstybės saugomo kultūros paveldo objekto – Vilniaus senamiesčio, paskelbto kultūros paminklu (unikalus kodas 16073) bei Vilniaus senojo miesto ir priemiesčių archeologinės vietovės (unikalus kodas 25504) teritorijoje. Dėl šios aplinkybės, patalpų naudojimas, tvarkymas, o taip pat bet kokie statybos, remonto ar rekonstrukcijos darbai, esantys šioje teritorijoje, yra griežtai reglamentuojami Lietuvos Respublikos nekilnojamojo kultūros paveldo apsaugos įstatymu ir kitais susijusiais teisės aktais. Patalpos parduodamos esamos būklės.
Informacija apie apžiūras: Turto apžiūra numatyta 2026-05-06 16:00 val. ir 2026-05-13 16:00 val. Prieš apžiūrą būtina suderinti laiką su atsakingu darbuotoju. Pardavimo sąlygos numato, kad pirkimo-pardavimo sutartis turi būti sudaryta per 30 dienų nuo aukciono vykdymo dienos, o visa kaina sumokėta per 10 dienų po sutarties pasirašymo.
Organizatorius yra Vilniaus miesto savivaldybės administracija (įmonės kodas 188710061). Parduodama nuosavybė priklauso Vilniaus miesto savivaldybei.
Aukciono dalyviai privalo susimokėti 53 EUR dydžio garantinį mokestį ir 70 EUR registracijos mokestį. Garantinis įnašas ir registracijos mokestis turi būti sumokėti iki registracijos į elektroninį aukcioną pabaigos.
SVARBIOS NAUDOJIMO SĄLYGOS: Nors patalpos nėra įrašytos į Kultūros vertybių registrą, jos yra valstybės saugomo kultūros paveldo objekto – Vilniaus senamiesčio, paskelbto kultūros paminklu (unikalus kodas 16073) bei Vilniaus senojo miesto ir priemiesčių archeologinės vietovės (unikalus kodas 25504) teritorijoje. Dėl šios aplinkybės, patalpų naudojimas, tvarkymas, o taip pat bet kokie statybos, remonto ar rekonstrukcijos darbai, esantys šioje teritorijoje, yra griežtai reglamentuojami Lietuvos Respublikos nekilnojamojo kultūros paveldo apsaugos įstatymu ir kitais susijusiais teisės aktais. Patalpos parduodamos esamos būklės.
Informacija apie apžiūras: Turto apžiūra numatyta 2026-05-06 16:00 val. ir 2026-05-13 16:00 val. Prieš apžiūrą būtina suderinti laiką su atsakingu darbuotoju. Pardavimo sąlygos numato, kad pirkimo-pardavimo sutartis turi būti sudaryta per 30 dienų nuo aukciono vykdymo dienos, o visa kaina sumokėta per 10 dienų po sutarties pasirašymo.
Organizatorius yra Vilniaus miesto savivaldybės administracija (įmonės kodas 188710061). Parduodama nuosavybė priklauso Vilniaus miesto savivaldybei.
📍 Objekto lokacija
📍 Vilniaus m. sav. Vilniaus m. Polocko g. 11
❓ Dažnai užduodami klausimai
Kokia parduodamos negyvenamosios patalpos dalies pradinė kaina?
Pradinė pardavimo kaina nustatyta 537 EUR.
Kada vyks pagrindinis pardavimo aukcionas Polocko g. 11 esančios dalies pardavimui?
Aukcionas vyks nuo 2026-05-25 09:00:00 iki 2026-05-26 13:59:59.
Kokie papildomi mokesčiai taikomi dalyvaujant aukcione?
Dalyvio garantinis mokestis yra 53 EUR, o registracijos mokestis sudaro 70 EUR.
Kokie yra pagrindiniai apribojimai, susiję su šio turto naudojimu Vilniuje?
Patalpos yra Vilniaus senamiesčio kultūros paveldo teritorijoje, todėl bet kokie statybos, remonto ar rekonstrukcijos darbai yra griežtai reglamentuojami Nekilnojamojo kultūros paveldo apsaugos įstatymu.
Kada galima apžiūrėti negyvenamąsias patalpas Polocko g. 11?
Apžiūros numatytos 2026-05-06 16:00 val. ir 2026-05-13 16:00 val., prieš tai būtina suderinti laiką.
Koks parduodamos dalies unikalus numeris ir kokio dydžio yra visa patalpa?
Parduodamos dalies unikalus Nr. 4400-1784-2930:7102. Visa patalpa yra 25,99 kv. m.