📝 Aprašymas
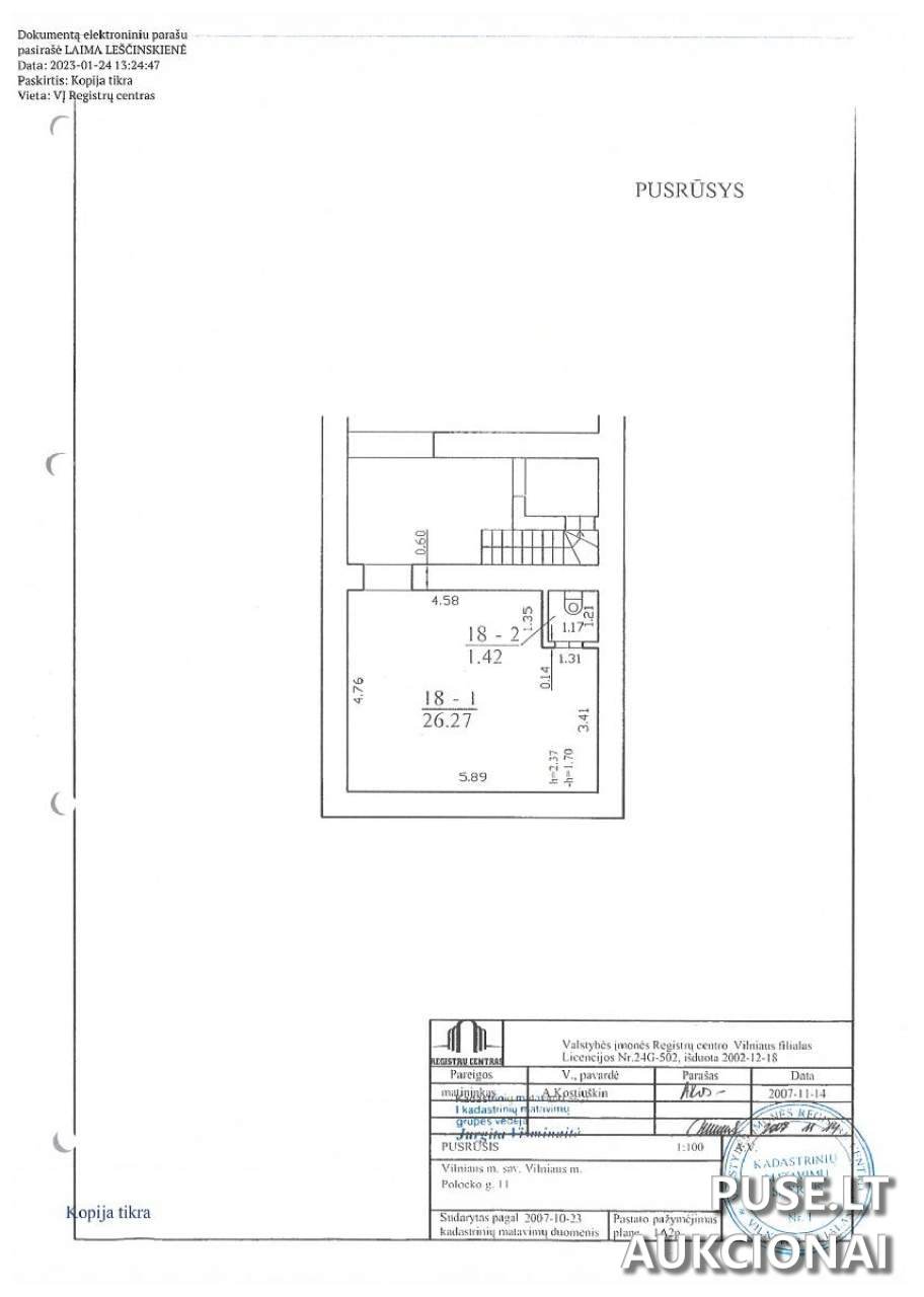
Parduodama 1052/10000 dalis negyvenamosios patalpos - pusrūsio patalpos, esančios Polocko g. 11, Vilniaus mieste. Šios patalpos užima 2,91 kv. m iš bendro 27,69 kv. m ploto ir yra dviejų aukštų mūrinio pastato cokoliniame aukšte. Patalpos parduodamos esamos būklės. Nekilnojamojo turto unikalus numeris yra 4400-1276-5358:2908. Šis objektas yra svarbioje Vilniaus senamiesčio teritorijoje.
Svarbu atkreipti dėmesį, kad nors patalpos nėra tiesiogiai įrašytos į Kultūros vertybių registrą, jos yra nekilnojamosios kultūros vertybės - Vilniaus senojo miesto ir priemiesčių archeologinė vietovė (unikalus kodas 25504) bei valstybės saugomos nekilnojamosios kultūros vertybės - Vilniaus senamiesčio, paskelbto kultūros paminklu (unikalus kodas 16073) teritorijoje. Dėl šios priežasties, bet kokie patalpų naudojimo, tvarkymo, statybos, remonto ar rekonstrukcijos darbai bus griežtai reglamentuojami Lietuvos Respublikos nekilnojamojo kultūros paveldo apsaugos įstatymu ir kitais susijusiais teisės aktais.
Šis aukcionas yra pakartotinis. Pradinė pardavimo kaina siekia 1274 EUR. Registracijos mokestis yra 70 EUR, o garantinis mokestis, kurį reikia sumokėti dalyvaujant, sudaro 127 EUR. Registracijos į elektroninį aukcioną laikotarpis yra nuo 2026-05-18 ir baigiasi 2026-05-20 23:59:59. Pats aukcionas vyks nuo 2026-05-25 09:00:00 iki 2026-05-26 13:59:59. Pirkimo-pardavimo sutartis turi būti pasirašyta per 30 dienų nuo pardavimo dienos, o visa kaina privalo būti sumokėta per 10 dienų po sutarties pasirašymo. Mokėjimus reikia atlikti į Vilniaus miesto savivaldybės administracijos sąskaitą.
Aukciono organizatorius yra Vilniaus miesto savivaldybės administracija (įmonės kodas 188710061). Patalpų apžiūros galimos 2026-05-06 16:00 val. ir 2026-05-13 16:00 val. Dėl apžiūros laiko būtina iš anksto derintis su atsakingu specialistu.
Svarbu atkreipti dėmesį, kad nors patalpos nėra tiesiogiai įrašytos į Kultūros vertybių registrą, jos yra nekilnojamosios kultūros vertybės - Vilniaus senojo miesto ir priemiesčių archeologinė vietovė (unikalus kodas 25504) bei valstybės saugomos nekilnojamosios kultūros vertybės - Vilniaus senamiesčio, paskelbto kultūros paminklu (unikalus kodas 16073) teritorijoje. Dėl šios priežasties, bet kokie patalpų naudojimo, tvarkymo, statybos, remonto ar rekonstrukcijos darbai bus griežtai reglamentuojami Lietuvos Respublikos nekilnojamojo kultūros paveldo apsaugos įstatymu ir kitais susijusiais teisės aktais.
Šis aukcionas yra pakartotinis. Pradinė pardavimo kaina siekia 1274 EUR. Registracijos mokestis yra 70 EUR, o garantinis mokestis, kurį reikia sumokėti dalyvaujant, sudaro 127 EUR. Registracijos į elektroninį aukcioną laikotarpis yra nuo 2026-05-18 ir baigiasi 2026-05-20 23:59:59. Pats aukcionas vyks nuo 2026-05-25 09:00:00 iki 2026-05-26 13:59:59. Pirkimo-pardavimo sutartis turi būti pasirašyta per 30 dienų nuo pardavimo dienos, o visa kaina privalo būti sumokėta per 10 dienų po sutarties pasirašymo. Mokėjimus reikia atlikti į Vilniaus miesto savivaldybės administracijos sąskaitą.
Aukciono organizatorius yra Vilniaus miesto savivaldybės administracija (įmonės kodas 188710061). Patalpų apžiūros galimos 2026-05-06 16:00 val. ir 2026-05-13 16:00 val. Dėl apžiūros laiko būtina iš anksto derintis su atsakingu specialistu.
📍 Objekto lokacija
📍 Vilniaus m. sav. Vilniaus m. Polocko g. 11
❓ Dažnai užduodami klausimai
Kokia yra negyvenamosios patalpos Polocko g. 11, Vilniuje, pradinė kaina?
Patalpų pradinė kaina aukcione yra 1274 EUR.
Kada vyks negyvenamosios patalpos aukcionas?
Aukcionas prasideda 2026-05-25 09:00:00 ir baigiasi 2026-05-26 13:59:59.
Koks yra šio objekto unikalus numeris ir kokia jo dalis parduodama?
Parduodama 1052/10000 dalis negyvenamosios patalpos, kurios unikalus numeris yra 4400-1276-5358:2908.
Kokie papildomi mokesčiai yra taikomi dalyvaujant aukcione?
Privalomas garantinis mokestis yra 127 EUR, o registracijos mokestis yra 70 EUR.
Kokie apribojimai taikomi šio pusrūsio patalpų naudojimui?
Kadangi patalpos yra saugomoje Vilniaus senamiesčio kultūrinėje teritorijoje, bet kokie statybos, remonto ar rekonstrukcijos darbai turi būti vykdomi griežtai vadovaujantis Nekilnojamojo kultūros paveldo apsaugos įstatymu.
Kada galima apžiūrėti parduodamas pusrūsio patalpas Polocko g. 11?
Apžiūros numatytos 2026-05-06 16:00 val. ir 2026-05-13 16:00 val., kurias reikia iš anksto suderinti.