📝 Aprašymas
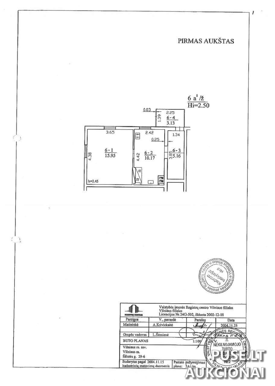
Parduodamas 1/1 dalis buto Vilniaus miesto savivaldybėje, adresu Šilutės g. 31-6, Vilnius. Šis nekilnojamasis turtas, identifikavimo unikaliu numeriu 1094-0464-4020:0007, yra 34,41 kvadratinių metrų ploto, esantis vieno aukšto mediniame pastate. Objekto pradinė kaina aukcione siekia 46146 EUR.
Svarbu pažymėti, kad patalpos yra nekilnojamosios kultūros vertybės - Vilniaus miesto istorinės dalies, vadinamos Medinėmis Šnipiškėmis (unikalus kodas - 12599), bei valstybės saugomos nekilnojamosios kultūros vertybės - Vilniaus senamiesčio, vizualinės apsaugos pozonio teritorijoje (unikalus kodas - 16073).
Visus su statybos (remonto, rekonstrukcijos) darbais susijusius klausimus, susijusius su kultūros paveldo objektais, reglamentuoja Lietuvos Respublikos nekilnojamojo kultūros paveldo apsaugos įstatymas bei kiti teisės aktai.
Patalpos parduodamos esamos būklės. Nors skolų už elektros energijos tiekimą šiam objektui nėra, savivaldybė neįsipareigoja užtikrinti nenutrūkstamo elektros tiekimo ar techniškai tvarkingo vidaus elektros tinklo. Pirkėjas įsipareigoja spręsti visus elektros tiekimo atnaujinimo ir remonto klausimus savo lėšomis ir rizika.
Registracija į elektroninį aukcioną vykdoma nuo 2026-05-18 00:00:00 iki 2026-05-20 23:59:59. Pats aukcionas vyks nuo 2026-05-25 09:00:00 iki 2026-05-26 13:59:59.
Pardavėjas yra Vilniaus miesto savivaldybė (įmonės kodas 111109233). Aukcioną organizuoja Vilniaus miesto savivaldybės administracija, įmonės kodas 188710061.
Svarbu pažymėti, kad patalpos yra nekilnojamosios kultūros vertybės - Vilniaus miesto istorinės dalies, vadinamos Medinėmis Šnipiškėmis (unikalus kodas - 12599), bei valstybės saugomos nekilnojamosios kultūros vertybės - Vilniaus senamiesčio, vizualinės apsaugos pozonio teritorijoje (unikalus kodas - 16073).
Visus su statybos (remonto, rekonstrukcijos) darbais susijusius klausimus, susijusius su kultūros paveldo objektais, reglamentuoja Lietuvos Respublikos nekilnojamojo kultūros paveldo apsaugos įstatymas bei kiti teisės aktai.
Patalpos parduodamos esamos būklės. Nors skolų už elektros energijos tiekimą šiam objektui nėra, savivaldybė neįsipareigoja užtikrinti nenutrūkstamo elektros tiekimo ar techniškai tvarkingo vidaus elektros tinklo. Pirkėjas įsipareigoja spręsti visus elektros tiekimo atnaujinimo ir remonto klausimus savo lėšomis ir rizika.
Registracija į elektroninį aukcioną vykdoma nuo 2026-05-18 00:00:00 iki 2026-05-20 23:59:59. Pats aukcionas vyks nuo 2026-05-25 09:00:00 iki 2026-05-26 13:59:59.
Pardavėjas yra Vilniaus miesto savivaldybė (įmonės kodas 111109233). Aukcioną organizuoja Vilniaus miesto savivaldybės administracija, įmonės kodas 188710061.
📍 Objekto lokacija
📍 Vilniaus m. sav. Vilniaus m. Šilutės g. 31-6
❓ Dažnai užduodami klausimai
Kokia pradinė pardavimo kaina aukcione?
Buto pradinė kaina aukcione yra 46146 EUR.
Kada vyks nekilnojamojo turto aukcionas?
Aukcionas prasidės 2026-05-25 09:00:00 ir baigsis 2026-05-26 13:59:59.
Koks yra parduodamo buto unikalus numeris ir plotas?
Buto unikalus numeris yra 1094-0464-4020:0007, o bendras plotas siekia 34,41 kvadratinio metro.
Kokie yra mokėjimai, kuriuos reikia sumokėti dalyvaujant aukcione?
Reikalingas garantinis mokestis – 4614 EUR, bei registracijos mokestis – 145 EUR. Šie mokesčiai turi būti sumokėti iki registracijos pabaigos.
Kur yra parduodamas objektas ir kokios jo kultūrinės sąlygos?
Objektas yra Vilniuje, Šilutės g. 31-6, ir yra vizualinės apsaugos pozonio teritorijoje (Medinės Šnipiškės ir Vilniaus senamiestis).
Kokie yra apžiūros terminai?
Turto apžiūros planuojamos 2026-05-07 8.45 val. ir 2026-05-14 8.45 val., suderinus laiką iš anksto.
Kokia yra sutarties sudarymo ir visos sumos apmokėjimo tvarka?
Pirkimo-pardavimo sutartis turi būti sudaryta per 30 dienų nuo aukciono datos, o visa kaina sumokėta ne vėliau kaip per 10 dienų po sutarties pasirašymo.