📝 Aprašymas
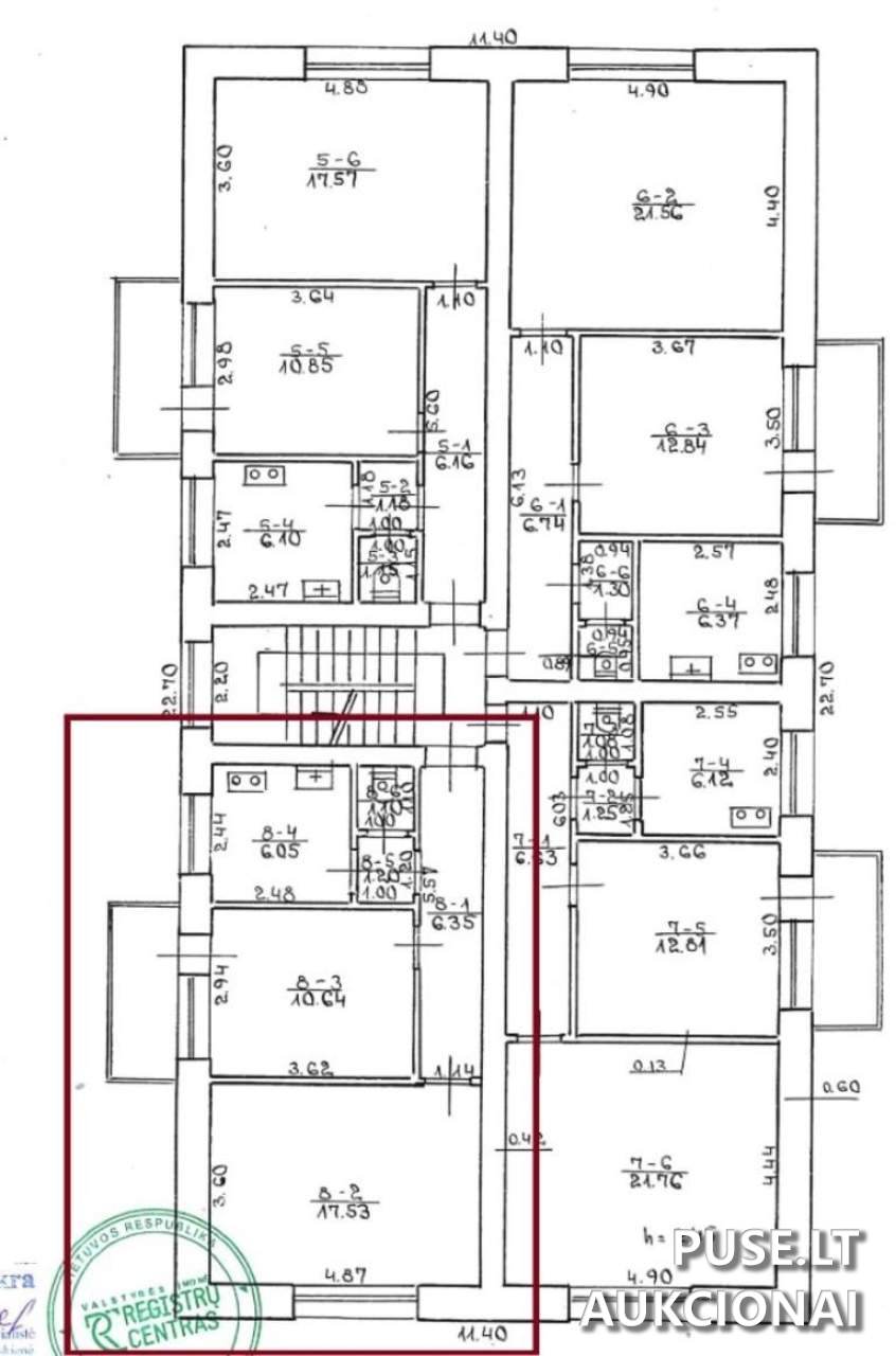
Parduodamas nekilnojamasis turtas - butas Kelmės rajono savivaldybėje, Vaiguvos kaimo teritorijoje, Kaštonų g. 10-8. Šis butas yra parduodamas su 1/1 dalimi, o pradinė jo kaina aukcione yra itin maža – tik 90 EUR. Objekto unikalus numeris – 5497-1008-9013:0008. Būkite atsargūs: šis nekilnojamasis turtas parduodamas esamos faktinės būklės ir pagal neatnaujintus kadastro duomenis. Valstybės įmonė Turto bankas neįsipareigoja nustatyti aktualios būklės ar iškraustyti jame esančius daiktus.
Butas yra avariniame name. Namo avaringumas nustatytas Kelmės rajono savivaldybės 2014 metais. Pastatas šiuo metu yra apleistas, išplėštas, nesandarus ir aptvertas stop juosta kaip pavojingas aplinkiniams. Tai svarbi sąlyga, kurią pirkėjas turi įvertinti prieš įsigydamas turtą.
Aukcionas prasideda 2026-05-13 09:00:00 ir baigiasi 2026-05-14 13:59:59. Registracija vyksta nuo 2026-05-06 00:00:00 iki 2026-05-08 23:59:59. Pirkėjas turi sumokėti 9 EUR garantinį mokestį ir 1 EUR registracijos mokestį. Mokėjimai organizuojami per elektrinę bankininkystę naudojant NEOPAY arba bankiniu pavedimu į AB SEB banko sąskaitą (LT85 7044 0901 0022 1537), nurodant el. aukciono numerį.
Visos išsamios bendrosios aukciono sąlygos ir pirkimo-pardavimo sutarčių projektai skelbiami atskirose nuorodose, su kuriomis būtina susipažinti prieš dalyvaujant.
Butas yra avariniame name. Namo avaringumas nustatytas Kelmės rajono savivaldybės 2014 metais. Pastatas šiuo metu yra apleistas, išplėštas, nesandarus ir aptvertas stop juosta kaip pavojingas aplinkiniams. Tai svarbi sąlyga, kurią pirkėjas turi įvertinti prieš įsigydamas turtą.
Aukcionas prasideda 2026-05-13 09:00:00 ir baigiasi 2026-05-14 13:59:59. Registracija vyksta nuo 2026-05-06 00:00:00 iki 2026-05-08 23:59:59. Pirkėjas turi sumokėti 9 EUR garantinį mokestį ir 1 EUR registracijos mokestį. Mokėjimai organizuojami per elektrinę bankininkystę naudojant NEOPAY arba bankiniu pavedimu į AB SEB banko sąskaitą (LT85 7044 0901 0022 1537), nurodant el. aukciono numerį.
Visos išsamios bendrosios aukciono sąlygos ir pirkimo-pardavimo sutarčių projektai skelbiami atskirose nuorodose, su kuriomis būtina susipažinti prieš dalyvaujant.
📍 Objekto lokacija
📍 Kelmės r. sav. Vaiguvos k. Kaštonų g. 10-8
❓ Dažnai užduodami klausimai
Kokia yra nekilnojamojo turto pradinė kaina aukcione?
Nekilnojamojo turto pradinė kaina aukcione yra 90 EUR.
Kada vyksta aukcionas dėl buto Kaštonų g. 10-8?
Aukcionas prasideda 2026-05-13 09:00:00 ir baigiasi 2026-05-14 13:59:59.
Kokia yra preliminari registracijos pabaigos data?
Registracija į aukcioną baigiasi 2026-05-08 23:59:59.
Kokie papildomi mokesčiai reikalingi dalyvaujant aukcione?
Reikalingas 9 EUR garantinis mokestis ir 1 EUR registracijos mokestis.
Kokia yra buto (ID 87716) Kaštonų g. 10-8, Vaiguvos kaime, faktinė būklė?
Butas parduodamas esamos faktinės būklės. Namas yra avarinis, apleistas, išplėštas ir aptvertas stop juosta kaip pavojingas.
Koks parduodamo turto plotas ir unikalus numeris?
Bendra ploto dalis – 42.87 kv. m. Unikalus numeris: 5497-1008-9013:0008.