📝 Aprašymas
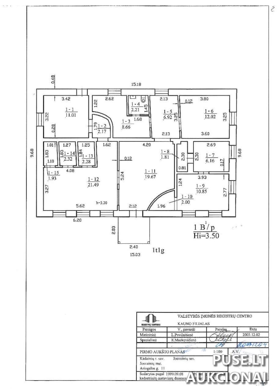
Parduodamas Kėdainių rajono savivaldybės administracinis pastatas, esantis Josvainių miestelyje, Ariogalos g. 11, pakartotiniame viešame aukcione. Pradinė pastato kaina yra 49100 EUR, o parduodamas 1/1 visos dalies nuosavybės teisė. Šis pastatas, statytas 1939 metais ir rekonstruotas 1996 metais, pasižymi 111,50 kv. m bendru plotu. Pastato konstrukcijos apima gelžbetoninius pamatus, plytų sienas, gelžbetonio perdangas ir metalinį šlaitinį stogą. Pastatas turi komunalinį vandentiekį, nuotekų šalinimą ir vietinį centrinį šildymą.
Svarbu atkreipti dėmesį, kad parduodamas nekilnojamasis turtas yra įrašytas į Nekilnojamųjų kultūros vertybių registrą, todėl jo tvarkyba ir naudojimas gali turėti specifikos, susijusios su paveldo apsauga. Nekilnojamasis turtas parduodamas esamos būklės, o Kėdainių rajono savivaldybė neįsipareigoja iškraustyti patalpose esančių daiktų.
Aukciono registracija prasideda 2026-05-15 ir baigiasi 2026-05-18. Pats aukcionas vyks nuo 2026-05-20 09:00:00 iki 2026-05-21 13:59:59. Dalyvių registracijos mokestis yra 100 EUR, o nustatytas garantinis mokestis siekia 4000 EUR. Registruojantis būtina sumokėti abu šiuos mokesčius pavedimu Kėdainių rajono savivaldybės administracijai (Į. K. 188768545) į AB SEB banko sąskaitą LT39 7044 0600 0619 6823.
Laimėjus aukcioną, pirkimo-pardavimo sutartis turi būti sudaroma per 30 dienų, o visa kaina sumokėta per 10 dienų po sutarties pasirašymo. Dokumentų projektai prieinami Kėdainių rajono savivaldybės svetainėje www.kedainiai.lt. Pastato apžiūra galima iš anksto susitarus su Josvainių seniūnijos seniūnu.
Svarbu atkreipti dėmesį, kad parduodamas nekilnojamasis turtas yra įrašytas į Nekilnojamųjų kultūros vertybių registrą, todėl jo tvarkyba ir naudojimas gali turėti specifikos, susijusios su paveldo apsauga. Nekilnojamasis turtas parduodamas esamos būklės, o Kėdainių rajono savivaldybė neįsipareigoja iškraustyti patalpose esančių daiktų.
Aukciono registracija prasideda 2026-05-15 ir baigiasi 2026-05-18. Pats aukcionas vyks nuo 2026-05-20 09:00:00 iki 2026-05-21 13:59:59. Dalyvių registracijos mokestis yra 100 EUR, o nustatytas garantinis mokestis siekia 4000 EUR. Registruojantis būtina sumokėti abu šiuos mokesčius pavedimu Kėdainių rajono savivaldybės administracijai (Į. K. 188768545) į AB SEB banko sąskaitą LT39 7044 0600 0619 6823.
Laimėjus aukcioną, pirkimo-pardavimo sutartis turi būti sudaroma per 30 dienų, o visa kaina sumokėta per 10 dienų po sutarties pasirašymo. Dokumentų projektai prieinami Kėdainių rajono savivaldybės svetainėje www.kedainiai.lt. Pastato apžiūra galima iš anksto susitarus su Josvainių seniūnijos seniūnu.
📍 Objekto lokacija
📍 Kėdainių r. sav. Josvainių mstl. Ariogalos g. 11
❓ Dažnai užduodami klausimai
Kokia yra pradinė administracinio pastato Kėdainių r. pardavimo kaina?
Administracinio pastato pradinė kaina aukcione yra 49100 EUR.
Kada vyks Viešas aukcionas dėl pastato Josvainių miestelyje?
Aukcionas vyks nuo 2026-05-20 09:00:00 iki 2026-05-21 13:59:59.
Kokie yra privalomi mokesčiai registruojantis į 88025 ID aukcioną?
Reikalingas 100 EUR registravimo mokestis ir 4000 EUR garantinis mokestis, mokėtini Kėdainių rajono savivaldybės administracijai į AB SEB banko sąskaitą.
Kokia pagrindinė pastato specifikacija ir pastatymo metai?
Pastato bendras plotas 111,50 kv. m, statybos metai yra 1939, rekonstruotas 1996 m.
Ką reikia žinoti apie parduodamo objekto kultūrinį statusą?
Minėtas pastatas yra įrašytas į Nekilnojamųjų kultūros vertybių registrą.
Kaip galima apžiūrėti parduodamą administracinį pastatą Ariogalos g. 11?
Apžiūra vyksta iš anksto susitarus su Josvainių seniūnijos seniūnu.
Kokie yra terminai, per kuriuos privaloma sudaryti pirkimo-pardavimo sutartį ir sumokėti kainą?
Pirkimo-pardavimo sutartis turi būti sudaroma per 30 dienų nuo pardavimo dienos, o visa kaina sumokėta per 10 dienų po sutarties pasirašymo.