LT EN RU UA

Nuomojamas administracinis pastatas Vilniuje, Laisvės pr. 28, 18.02 kv. m. patalpos, pradinė kaina 0 EUR

📝 Aprašymas

★★★★★ ★★★★★ 3.5
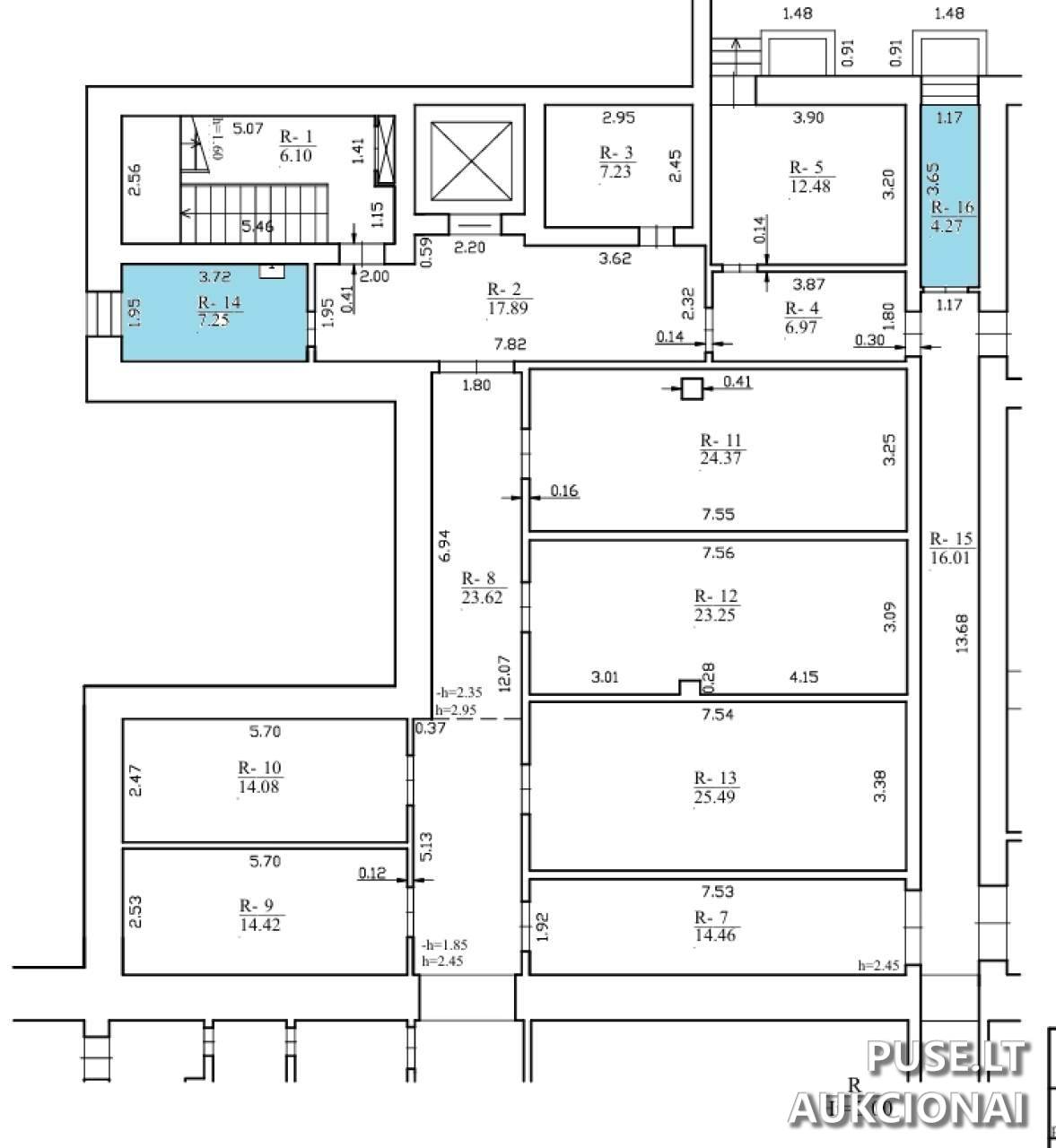
Parduodamas (nuomojamas) valstybinis nekilnojamasis turtas Vilniaus miesto savivaldybėje, adresu Laisvės pr. 28. Skelbiamas nuomos konkursas administraciniam pastatui, skirtam daiktų/produkcijos laikymui ir saugojimui. Išnuomojamas bendras plotas 18,02 kv. m., apimantis patalpų indeksus R-14 ir R-16, kurios yra rūsyje. Patalpos nuomojamos esamos būklės. Nuomininkas turės galimybę patalpas įsirengti pagal asmeninius poreikius, tačiau įrengimo išlaidas padengia nuomininkas.

Konkurso pradžia 2026-05-14 09:00:00, baigiasi 2026-05-15 13:59:59. Registracija dalyvavimui vyksta nuo 2026-05-04 00:00:00 iki 2026-05-06 23:59:59. Pradinė nuomos kaina nustatyta 0 EUR. Būtina sumokėti 1 EUR registracijos mokestį.

Turto unikalus numeris yra 1099-7015-4002. Nuomos sutarties projektas bei Valstybės ilgalaikio materialiojo turto nuomos elektroninio konkurso bendrosios sąlygos skelbiami nuorodoje.

Apie turto apžiūrą būtina iš anksto informuoti kontaktinį asmenį ne vėliau kaip prieš 2 darbo dienas iki apžiūros. Galimi apžiūros laikai yra nuo 2026-04-23 iki 2026-04-30, nuo 10:00 val. iki 15:00 val.

Konkursą organizuoja Valstybės įmonė Turto bankas, įmonės kodas 112021042.

📍 Objekto lokacija

📍 Vilniaus m. sav. Vilniaus m. Laisvės pr. 28

❓ Dažnai užduodami klausimai

Kokia nuomojamo administracinio pastato dalies su patalpų indeksais R-14 ir R-16 (-0.02 kv. m.) bendra ploto startinė kaina?
Pradinė nuomos kaina yra 0 EUR.
Kada baigiasi nuomos konkurso registracija Laisvės pr. 28, Vilniuje, patalpoms?
Registracija baigiasi 2026-05-06 23:59:59.
Kada vyks nuomos konkursas dėl 18,02 kv. m. patalpų Vilniuje?
Aukcionas vyks nuo 2026-05-14 09:00:00 iki 2026-05-15 13:59:59.
Koks yra registracijos mokestis dalyvauti e. konkurse?
Registracijos mokestis yra 1 EUR.
Kokia yra turto apžiūros galimybė šioms rūsyje esančioms patalpoms?
Apžiūros vyksta nuo 2026-04-23 iki 2026-04-30, 10:00 val. - 15:00 val., informavus kontaktinį asmenį iš anksto.
Koks yra parduodamo/nuomojamo turto unikalus kodas?
Turto unikalus numeris yra 1099-7015-4002.

⏱ Aukciono laikas

Registracija dar neprasidėjo

Registracija

Iki: 2026-05-06 23:59:59
Liko: 14 dienų

Aukcionas

Iki: 2026-05-15 13:59:59
Liko: 23 dienų

🏠 Objekto informacija

📍 Adresas
Vilniaus m. sav. Vilniaus m. Laisvės pr. 28
Tipas
Pirminis
Potipis
Pastatai
Objekto ID: 417578
💰 Pradinė kaina
Registracijos mokestis
1.00 €
Mažiausias kainos didinimas
5.00 €
Patvirtinimas
per 5 d. d.
Dalyvauti aukcione
🔑 Raktažodžiai
nuomojamos patalpos vilniuje administracinės patalpos laisvės pr valtstybės turtas nuomai konkursas rūsys daiktų laikymui vilnius komercinis turtas vilniuje 0 eur