📝 Aprašymas
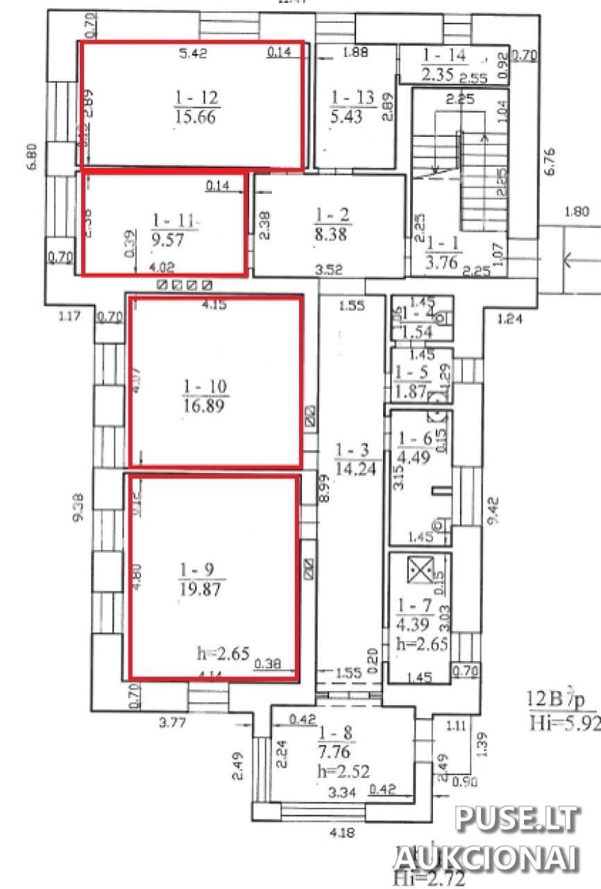
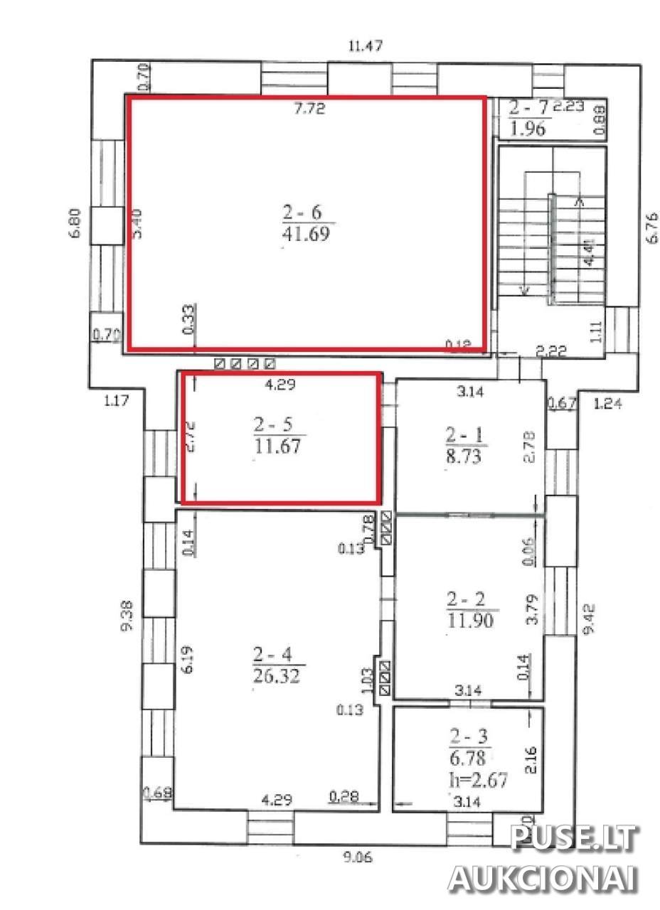
Parduodamas nuomos teisės konkursas - nuomojamos administracinės paskirties patalpos Plungės mieste, adresu Salantų g. 18. Konkursui nustatyta pradinė nuomos kaina 0 EUR. Nuomos terminui siūlomas pastato pirmas aukštas (patalpos nuo 1-9 iki 1-12) ir antras aukštas (patalpos 2-5, 2-6).
Bendras nuomojamas plotas sudaro 149,75 kv. m. Patalpos perduodamos esamos būklės. Tai suteikia galimybę būsimam nuomininkui patalpas įsirengti ir pritaikyti savo verslo poreikiams, naudojant nuomininko lėšas.
Konkurso dalyviai turi sumokėti 50 EUR dydžio registracijos mokestį. Dalyvio registravimo mokestis ir galimas pradinio įnašo suma turi būti sumokėti į VĮ Turto bankas sąskaitą AB SEB banke (Sąskaita Nr. LT51 7044 0600 0044 3925). Mokėjimo paskirtyje privaloma nurodyti konkretaus e. konkurso ID numerį.
Turto unikalus numeris registro įraše yra 6895-8003-2183. Patalpų apžiūros galimos laikotarpiu nuo 2026-04-29 iki 2026-05-11, nuo 10:00 val. iki 15:00 val. Būtina išankstinė registracija ir informavimas kontaktinio asmens ne vėliau kaip prieš 2 darbo dienas iki planuojamos apžiūros.
Konkursas prasidės 2026-05-21 09:00:00 ir baigsis 2026-05-22 13:59:59. Registracija dalyviams vyksta nuo 2026-05-12 00:00:00 iki 2026-05-14 23:59:59. Preliminarios ilgalaikio materialiojo turto nuomos elektroninio konkurso bendrosios sąlygos ir nuomos sutarties projektai yra prieinami per nurodytas nuorodas.
Bendras nuomojamas plotas sudaro 149,75 kv. m. Patalpos perduodamos esamos būklės. Tai suteikia galimybę būsimam nuomininkui patalpas įsirengti ir pritaikyti savo verslo poreikiams, naudojant nuomininko lėšas.
Konkurso dalyviai turi sumokėti 50 EUR dydžio registracijos mokestį. Dalyvio registravimo mokestis ir galimas pradinio įnašo suma turi būti sumokėti į VĮ Turto bankas sąskaitą AB SEB banke (Sąskaita Nr. LT51 7044 0600 0044 3925). Mokėjimo paskirtyje privaloma nurodyti konkretaus e. konkurso ID numerį.
Turto unikalus numeris registro įraše yra 6895-8003-2183. Patalpų apžiūros galimos laikotarpiu nuo 2026-04-29 iki 2026-05-11, nuo 10:00 val. iki 15:00 val. Būtina išankstinė registracija ir informavimas kontaktinio asmens ne vėliau kaip prieš 2 darbo dienas iki planuojamos apžiūros.
Konkursas prasidės 2026-05-21 09:00:00 ir baigsis 2026-05-22 13:59:59. Registracija dalyviams vyksta nuo 2026-05-12 00:00:00 iki 2026-05-14 23:59:59. Preliminarios ilgalaikio materialiojo turto nuomos elektroninio konkurso bendrosios sąlygos ir nuomos sutarties projektai yra prieinami per nurodytas nuorodas.
📍 Objekto lokacija
📍 Plungės r. sav. Plungės m. Salantų g. 18
❓ Dažnai užduodami klausimai
Kokia pradinė administracinių patalpų nuomos kaina Plungėje?
Pradinė nuomos kaina šiam administracinės paskirties turtui, esančiam Salantų g. 18, Plungėje, yra 0 EUR.
Kada vyksta nuomos konkursas ir kada galima teikti paraiškas?
Aukcionas prasideda 2026-05-21 09:00:00 ir baigiasi 2026-05-22 13:59:59. Registracija vyksta nuo 2026-05-12 00:00:00 iki 2026-05-14 23:59:59.
Koks bendras nuomojamas plotas ir kokios patalpos apima?
Nuomojamas bendras 149,75 kv. m plotas, apimantis pirmame aukšte patalpas nuo 1-9 iki 1-12 ir antrame aukšte patalpas 2-5, 2-6.
Koks yra registracijos mokestis dalyvaujant konkurse?
Registracijos mokestis, skirtas dalyvio registravimui, yra 50 EUR.
Kokia turto būklė ir ar yra galimybė jį pritaikyti verslui?
Patalpos nuomojamos esamos būklės, tačiau nuomininkas turi teisę (savo lėšomis) patalpas įsirengti pagal savo poreikius.
Kaip susitarti dėl turto apžiūros Plungėje?
Apžiūra galima nuo 2026-04-29 iki 2026-05-11, 10:00 val. – 15:00 val. Būtina informuoti kontaktinį asmenį ne vėliau kaip prieš 2 darbo dienas.