📝 Aprašymas
Parduodamas nekilnojamojo turto kompleksas Vilniaus rajono savivaldybėje, Akmenytės kaime, Medelyno g. 13, per Turto banko pakartotinį aukcioną. Bendra pradinė kaina siekia 135804 EUR. Parduodama visa nekilnojamojo turto dalis (1/1).
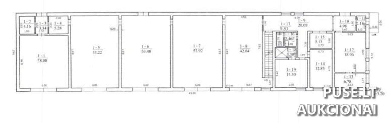
Objektą sudaro sandėlis, kurio bendras plotas yra 790.99 kv. m, unikalus Nr. 4196-9009-7063. Taip pat parduodami du šiltnamiai su unikaliais numeriais 4196-9009-7130 (190.00 kv. m) ir 4196-9009-7141 (196.00 kv. m). Priklausinys apima du žemės sklypus: 0.0533 ha (unikalus Nr. 4400-5402-8538) adresu Medelyno g. 13, bei 0.1602 ha (unikalus Nr. 4400-5041-6561) adresu Medelyno g. 11, Akmenytės k., Nemėžio sen., Vilniaus r. sav.
Svarbu atkreipti dėmesį į pardavimo sąlygas: turtas parduodamas esamos fizinės ir funkcinės būklės bei pagal esamus kadastro duomenis. Valstybės įmonė Turto bankas neįsipareigoja nustatyti aktualios būklės ar iškraustyti esančių daiktų. Dalis parduodamo turto, būtent sandėlis (unikalus Nr. 4196-9009-7063), yra faktiškai naudojamas trečiojo asmens, kuris nebus iškeldinamas iki nuosavybės perleidimo laimėtojui.
Pradinis aukcionas vyks nuo 2026-06-01 09:00:00 iki 2026-06-02 13:59:59. Registracija dalyvavimui vyksta nuo 2026-05-25 00:00:00 iki 2026-05-27 23:59:59. Garantinis mokestis, kurį reikia sumokėti dalyvaujant, sudaro 13580 EUR, o registracijos mokestis yra 100 EUR. Išsamesni sutarties projektai ir bendros aukciono sąlygos yra pateikti organizatorių nurodytose nuorodose.
Objektą sudaro sandėlis, kurio bendras plotas yra 790.99 kv. m, unikalus Nr. 4196-9009-7063. Taip pat parduodami du šiltnamiai su unikaliais numeriais 4196-9009-7130 (190.00 kv. m) ir 4196-9009-7141 (196.00 kv. m). Priklausinys apima du žemės sklypus: 0.0533 ha (unikalus Nr. 4400-5402-8538) adresu Medelyno g. 13, bei 0.1602 ha (unikalus Nr. 4400-5041-6561) adresu Medelyno g. 11, Akmenytės k., Nemėžio sen., Vilniaus r. sav.
Svarbu atkreipti dėmesį į pardavimo sąlygas: turtas parduodamas esamos fizinės ir funkcinės būklės bei pagal esamus kadastro duomenis. Valstybės įmonė Turto bankas neįsipareigoja nustatyti aktualios būklės ar iškraustyti esančių daiktų. Dalis parduodamo turto, būtent sandėlis (unikalus Nr. 4196-9009-7063), yra faktiškai naudojamas trečiojo asmens, kuris nebus iškeldinamas iki nuosavybės perleidimo laimėtojui.
Pradinis aukcionas vyks nuo 2026-06-01 09:00:00 iki 2026-06-02 13:59:59. Registracija dalyvavimui vyksta nuo 2026-05-25 00:00:00 iki 2026-05-27 23:59:59. Garantinis mokestis, kurį reikia sumokėti dalyvaujant, sudaro 13580 EUR, o registracijos mokestis yra 100 EUR. Išsamesni sutarties projektai ir bendros aukciono sąlygos yra pateikti organizatorių nurodytose nuorodose.
📍 Objekto lokacija
📍 Vilniaus r. sav. Akmenytės k. Medelyno g. 13
❓ Dažnai užduodami klausimai
Kokia sandėlio ir priklausančių žemės sklypų pradinė kaina aukcione?
Pradinė nekilnojamojo turto kaina yra 135804 EUR.
Kada vyksta pagrindinis aukcionas dėl turto įsigijimo?
Aukcionas prasideda 2026-06-01 09:00:00 ir baigiasi 2026-06-02 13:59:59.
Koks yra reikalingas garantinis ir registracijos mokestis dalyviui?
Garantinis mokestis yra 13580 EUR, o registracijos mokestis, kurį reikia sumokėti, yra 100 EUR.
Kokia pagrindinio parduodamo sandėlio bendroji kvadratūra?
Parduodamo sandėlio bendras plotas yra 790.99 kv. m (unikalus Nr. 4196-9009-7063).
Ar parduodamas turtas yra apdraustas nuo trečiųjų asmenų naudojimo?
Ne, pirkėjas turi žinoti, kad sandėlio dalis faktiškai naudojama trečiojo asmens, ir VĮ Turto bankas neįsipareigoja jo iškeldinti iki nuosavybės perleidimo.
Koks yra šio komplekso pardavimo adresas Vilniaus rajone?
Objektas yra Vilniaus r. sav., Nemėžio sen., Akmenytės k., Medelyno g. 13 ir Medelyno g. 11.