📝 Aprašymas
Parduodamas gyvenamasis namas su priklausiniais ir 0.3766 ha žemės sklypu Šakių rajono savivaldybėje, Slavikų kaime, Suvalkiečių gatvėje 3A. Tai patikimas pirkimas per Turto banko aukcioną, siūlantis kompleksinį nekilnojamojo turto objektą su pradine kaina 17832 EUR. Svarbu atkreipti dėmesį į tai, kad nekilnojamasis turtas parduodamas esamos fizinės ir funkcinės būklės, pagal esamus kadastro duomenis. Valstybės įmonė Turto bankas neįsipareigoja nustatyti aktualios būklės ar iškraustyti objekte esančių daiktų.
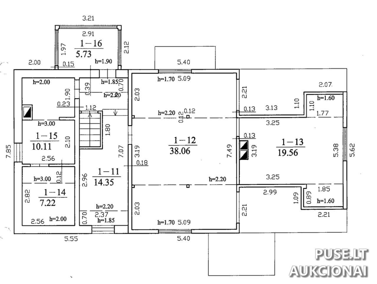
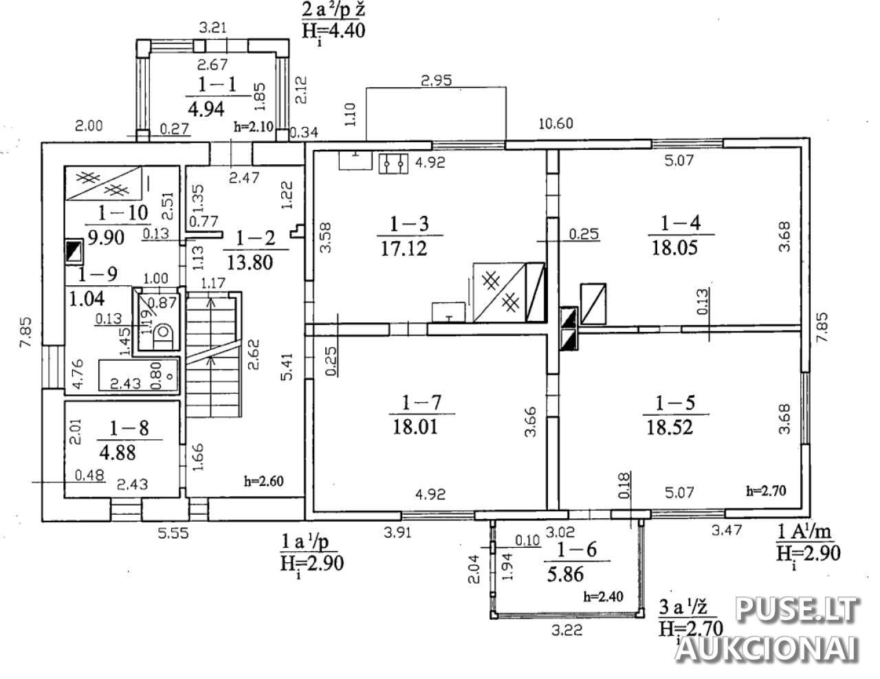
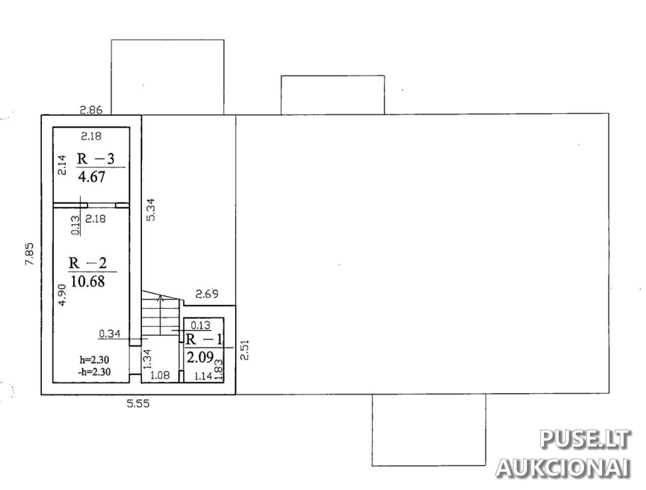
Objektą sudaro gyvenamasis namas, kurio bendras plotas siekia 224.59 kv. m (Unikalus Nr. 8495-5011-2012). Priklauso ūkiniai statiniai: garažas užstatyto ploto 63.00 kv. m (Unikalus Nr. 8495-5011-2023) ir tvartas užstatyto ploto 56.00 kv. m (Unikalus Nr. 8495-5011-2034). Taip pat parduodami kiemo statiniai, tokie kaip šulinys ir lauko tualetas (Unikalus Nr. 8495-5011-2045).
Į parduodamą kompleksą įeina 0.3766 ha žemės sklypas (Unikalus Nr. 4400-6595-0261) Slavikų kaime. Kompleksas parduodamas visa apimtimi, t.y. 1/1 priklauso parduodamai daliai.
Potencialus pirkėjas turi išnagrinėti visas su tokios būklės statinio pirkimu susijusias teisines ir ekonomines rizikas. Ypatingas dėmesys turi būti skirtas inžinieriniam statiniui (lauko tualetui), kuris, kaip nurodoma, neatitinka jo įrengimui ir eksploatavimui taikomų teisės aktų reikalavimų. Rekomenduojama atlikti išsamią apžiūrą vietoje iki registracijos pradžios, siekiant įvertinti galimus kaštus, susijusius su įrengimu ar nugriovimu.
Organizatorius yra Valstybės įmonė Turto bankas (Įmonės kodas 112021042). Būtina sumokėti 1783 EUR dydžio garantinį mokestį ir 40 EUR registracijos mokestį, kad būtų galima dalyvauti aukcione.
Objektą sudaro gyvenamasis namas, kurio bendras plotas siekia 224.59 kv. m (Unikalus Nr. 8495-5011-2012). Priklauso ūkiniai statiniai: garažas užstatyto ploto 63.00 kv. m (Unikalus Nr. 8495-5011-2023) ir tvartas užstatyto ploto 56.00 kv. m (Unikalus Nr. 8495-5011-2034). Taip pat parduodami kiemo statiniai, tokie kaip šulinys ir lauko tualetas (Unikalus Nr. 8495-5011-2045).
Į parduodamą kompleksą įeina 0.3766 ha žemės sklypas (Unikalus Nr. 4400-6595-0261) Slavikų kaime. Kompleksas parduodamas visa apimtimi, t.y. 1/1 priklauso parduodamai daliai.
Potencialus pirkėjas turi išnagrinėti visas su tokios būklės statinio pirkimu susijusias teisines ir ekonomines rizikas. Ypatingas dėmesys turi būti skirtas inžinieriniam statiniui (lauko tualetui), kuris, kaip nurodoma, neatitinka jo įrengimui ir eksploatavimui taikomų teisės aktų reikalavimų. Rekomenduojama atlikti išsamią apžiūrą vietoje iki registracijos pradžios, siekiant įvertinti galimus kaštus, susijusius su įrengimu ar nugriovimu.
Organizatorius yra Valstybės įmonė Turto bankas (Įmonės kodas 112021042). Būtina sumokėti 1783 EUR dydžio garantinį mokestį ir 40 EUR registracijos mokestį, kad būtų galima dalyvauti aukcione.
📍 Objekto lokacija
📍 Šakių r. sav. Slavikų k. Suvalkiečių g. 3A
❓ Dažnai užduodami klausimai
Kokia yra šio gyvenamojo namo su priklausiniais ir sklypu pradinė kaina?
Pradinė kaina, už kurią bus pradedamas aukcionas, yra 17832 EUR.
Kada vyks turto aukcionas Šakių rajone?
Aukcionas prasidės 2026-06-01 09:00:00 ir baigsis 2026-06-02 13:59:59.
Koks yra parduodamas žemės sklypo plotas ir kur tiksliai yra objektas?
Parduodamas 0.3766 ha žemės sklypas su namu, esantis Šakių r. sav., Slavikų k., Suvalkiečių g. 3A.
Kokie yra privalomi mokesčiai dalyvaujant aukcione?
Reikalingas 1783 EUR garantinis mokestis ir 40 EUR registracijos mokestis.
Kada reikia registruotis, kad galėčiau dalyvauti aukcione?
Registracija prasideda 2026-05-25 00:00:00 ir baigiasi 2026-05-27 23:59:59.
Kokios būklės parduodamas nekilnojamasis turtas ir ar yra apribojimų?
Turtas parduodamas esamos fizinės ir funkcinės būklės. Dėmesio: lauko tualetas neatitinka teisės aktų reikalavimų, ir pardavėjas neiškrausto esamų daiktų.