📝 Aprašymas
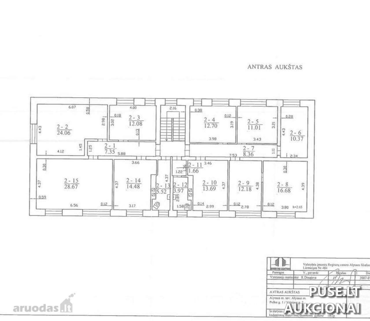
Alytaus miesto savivaldybės administracija skelbia viešą nuomos konkursą negyvenamosioms patalpoms, esančioms Alytuje, Pulko g. 1. Bendras nuomojamas plotas yra 17,24 kv. m. Šios patalpos yra pastato su unikaliu numeriu 1195-8002-1018 dalyse: 2-14 (14,48 kv. m), 2-1 (1,36 kv. m iš 7,35 kv. m), 2-12 (0,99 kv. m iš 3,97 kv. m) ir 2-11 (0,41 kv. m iš 1,66 kv. m). Patalpos pažymėtos plane 1B2p.
Pagrindinė numatyta naudojimo paskirtis yra administracinė veikla. Nuomos terminas yra nustatytas 5 metams, su galimybe jį pratęsti papildomam 5 metų laikotarpiui. Pradinis nuompinigių dydis konkurse nustatytas 2,7 Eur už 1 kv. m per mėnesį.
Konkurso dalyviai turi sumokėti negrąžinamą registravimo mokestį, kuris yra 30 Eur, bei grąžinamą pradinį įnašą, kuris lygus trims mėnesiams pradinių nuompinigių sumos (141 Eur). Pradinis įnašas negrąžinamas konkurso laimėtojui, nepasirašiusiam sutarties laiku. Nuomos sutartis turi būti pasirašyta nuo 5 iki 10 darbo dienų nuo nuomos komisijos protokolo pasirašymo dienos. Alytaus miesto savivaldybės administracija nėra PVM mokėtoja.
Šis nuomos konkursas yra pakartotinis. Su sutarties projektu galima susipažinti kreipiantis el. paštu.
Pagrindinė numatyta naudojimo paskirtis yra administracinė veikla. Nuomos terminas yra nustatytas 5 metams, su galimybe jį pratęsti papildomam 5 metų laikotarpiui. Pradinis nuompinigių dydis konkurse nustatytas 2,7 Eur už 1 kv. m per mėnesį.
Konkurso dalyviai turi sumokėti negrąžinamą registravimo mokestį, kuris yra 30 Eur, bei grąžinamą pradinį įnašą, kuris lygus trims mėnesiams pradinių nuompinigių sumos (141 Eur). Pradinis įnašas negrąžinamas konkurso laimėtojui, nepasirašiusiam sutarties laiku. Nuomos sutartis turi būti pasirašyta nuo 5 iki 10 darbo dienų nuo nuomos komisijos protokolo pasirašymo dienos. Alytaus miesto savivaldybės administracija nėra PVM mokėtoja.
Šis nuomos konkursas yra pakartotinis. Su sutarties projektu galima susipažinti kreipiantis el. paštu.
📍 Objekto lokacija
📍 Alytaus m. sav. Alytaus m. Pulko g. 1
❓ Dažnai užduodami klausimai
Kokia bendra nuomojama plotas Alytuje, Pulko g. 1?
Bendras nuomojamas negyvenamųjų patalpų plotas yra 17,24 kv. m.
Kokia nustatyta pradinė nuompinigių suma už kvadratinį metrą?
Pradinis nuompinigių dydis konkurse yra 2,7 Eur už 1 kv. m per mėnesį.
Kada vyksta nuomos konkurso registracija ir balsavimas?
Registracija vyksta nuo 2026-05-21 00:00:00 iki 2026-05-25 23:59:59. Balsavimas (aukcionas) prasideda 2026-05-27 09:00:00 ir baigiasi 2026-05-28 13:59:59.
Koks yra nuomos terminas ir ar jį galima pratęsti?
Nuomos terminas yra 5 metai, su galimybe jį pratęsti dar 5 metams.
Kokie yra privalomi mokesčiai dalyviui?
Dalyvio registracijos mokestis yra 30 Eur (negrąžinamas). Taip pat reikia sumokėti grąžinamą pradinį įnašą, lygų trijų mėnesių pradiniam nuomos mokesčiui (141 Eur).
Kokia yra preliminari bendra trijų mėnesių nuomos suma pagal pradinį tarifą?
Preliminarus pradinio įnašo dydis (trys mėnesiai po 2.7 Eur/kv.m/mėn. už 17,24 kv.m) yra 141 Eur.