📝 Aprašymas
Alytaus miesto savivaldybės administracija skelbia administracinių negyvenamųjų patalpų nuomos konkursą Alytuje, Pulko g. 1. Konkursui siūlomos bendro 14,6 kv. m. ploto patalpos, unikalaus pastato Nr. 1195-8002-1018 pastate. Šis turtas yra puiki galimybė įmonėms, ieškančioms administracinės veiklai pritaikytų patalpų Alytaus miesto centre.
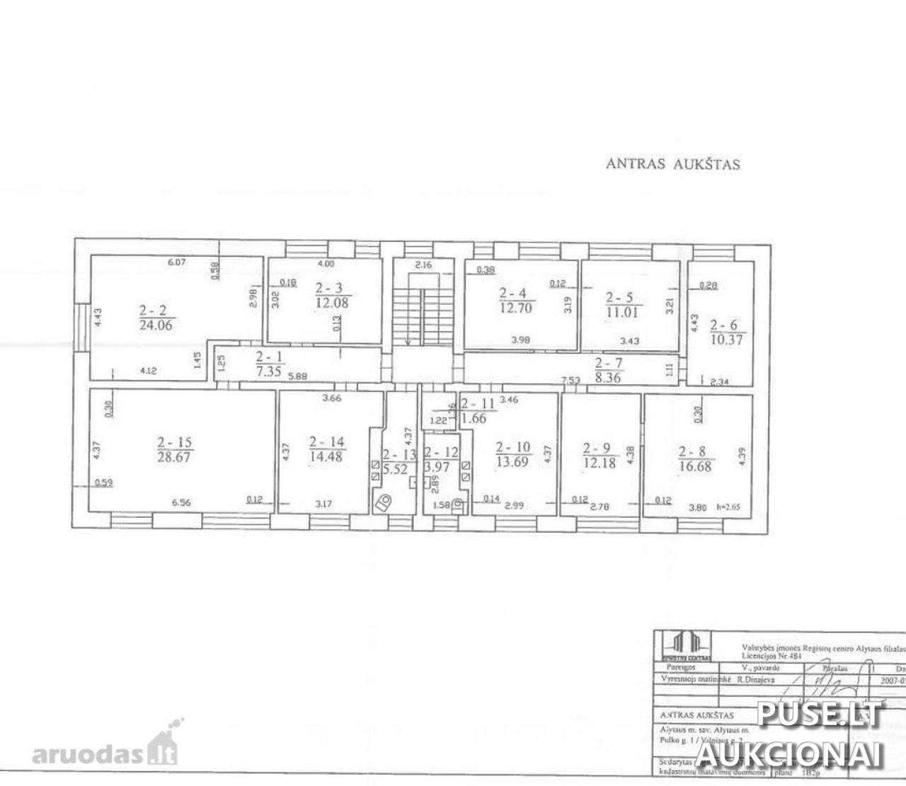
Išnuomojamos patalpų dalys: 2-3 (12,08 kv. m), dalis 2-1 (1,12 kv. m iš 7,35 kv. m), dalis 2-12 (0,99 kv. m iš 3,97 kv. m) ir dalis 2-11 (0,41 kv. m iš 1,66 kv. m). Visos šios erdvės yra pastato plane žymimos 1B2p. Naudojimo paskirtis nuomos pagrindu yra griežtai administracinė veikla.
Nuomos sąlygos numato ilgalaikį bendradarbiavimą: nuomos terminas yra 5 metai su realia galimybe pratęsti dar 5 metų laikotarpiui. Pradinis nuompinigių dydis nustatytas 2,7 Eur už 1 kv. m per mėnesį. Nugalėtojui taikomi papildomi finansiniai įnašai: pradinis įnašas sudaro 120 Eur (grąžinamas nelaimėjusiems) ir negrąžinamas registravimo mokestis – 30 Eur.
Sutarties pasirašymas privalomas per 5-10 darbo dienų nuo atitinkamo komisijos protokolo pasirašymo dienos. Jei laimėtojas laiku nepasirašo sutarties, jis praranda sumokėtą pradinį įnašą, o konkursas anuliuojamas. Būsimi nuomininkai turi susipažinti su nuomos sutarties projektais. Išsamesnė informacija ir turto apžiūra teikiama susisiekus su Turto skyriaus atstovu.
Išnuomojamos patalpų dalys: 2-3 (12,08 kv. m), dalis 2-1 (1,12 kv. m iš 7,35 kv. m), dalis 2-12 (0,99 kv. m iš 3,97 kv. m) ir dalis 2-11 (0,41 kv. m iš 1,66 kv. m). Visos šios erdvės yra pastato plane žymimos 1B2p. Naudojimo paskirtis nuomos pagrindu yra griežtai administracinė veikla.
Nuomos sąlygos numato ilgalaikį bendradarbiavimą: nuomos terminas yra 5 metai su realia galimybe pratęsti dar 5 metų laikotarpiui. Pradinis nuompinigių dydis nustatytas 2,7 Eur už 1 kv. m per mėnesį. Nugalėtojui taikomi papildomi finansiniai įnašai: pradinis įnašas sudaro 120 Eur (grąžinamas nelaimėjusiems) ir negrąžinamas registravimo mokestis – 30 Eur.
Sutarties pasirašymas privalomas per 5-10 darbo dienų nuo atitinkamo komisijos protokolo pasirašymo dienos. Jei laimėtojas laiku nepasirašo sutarties, jis praranda sumokėtą pradinį įnašą, o konkursas anuliuojamas. Būsimi nuomininkai turi susipažinti su nuomos sutarties projektais. Išsamesnė informacija ir turto apžiūra teikiama susisiekus su Turto skyriaus atstovu.
📍 Objekto lokacija
📍 Alytaus m. sav. Alytaus m. Pulko g. 1
❓ Dažnai užduodami klausimai
Kokia bendra nuomojamų patalpų plotas Alytuje, Pulko g. 1?
Bendras nuomojamų negyvenamųjų patalpų plotas yra 14,6 kv. m. Tai apima dalis iš patalpų plane žymimų 2-3, 2-1, 2-12 ir 2-11.
Kada vyksta nuomos konkursas ir kada reikia registruotis?
Aukcionas prasideda 2026-05-27 09:00:00 ir baigiasi 2026-05-28 13:59:59. Registracija vyksta nuo 2026-05-21 00:00:00 iki 2026-05-25 23:59:59.
Kokia yra pradinė nuomos kaina (nuompinigių dydis) per kvadratinį metrą ir nuomos terminas?
Pradinis nuompinigių dydis yra 2,7 Eur už 1 kv. m per mėnesį. Nuomos terminas yra 5 metai su galimybe jį pratęsti dar 5 metams administracinei veiklai.
Kokie papildomi mokesčiai taikomi dalyvaujant konkurse?
Konkurso dalyviai privalo sumokėti 30 Eur registracijos mokestį (negrąžinamas) ir pradinis įnašas lygus trijų mėnesių pradiniam nuomos mokesčiui (120 Eur) – šis įnašas grąžinamas nelaimėjusiems.
Koks unikalus objekto kodas ir adresas?
Objektas yra Alytuje, Pulko g. 1, jo unikalus numeris yra 1195-8002-1018.
Koks yra pradinė kaina (pradinė suma) konkurse?
Konkurso pradinė kaina nurodyta 0 EUR, tačiau yra nustatytas mėnesinis nuompinigių dydis ir privalomas pradinis įnašas.