📝 Aprašymas
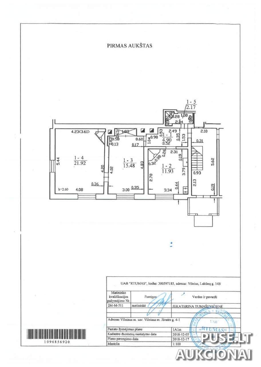
Parduodamas 56,40 kv. m. ploto butas Vilniaus mieste, Jūratės g. 4-1, esantis vieno aukšto medinio pastato pirmame aukšte. Oficiali pradinė kaina aukcione yra 100845 EUR. Unikalus objekto numeris – 4400-0510-0345:1266.
SVARBI INFORMACIJA DĖL BŪKLĖS IR TEISINIŲ ASPEKTŲ: Nekilnojamasis turtas parduodamas esamos fizinės ir funkcinės būklės. Svarbu įvertinti, kad pastatas, kuriame yra šis butas, yra įregistruotas kaip avarinis (pagal 2014-09-17 Statinio pripažinimo avariniu aktą Nr. A32-2448/14). Aukciono dalyviams rekomenduojama atlikti išsamią turto apžiūrą ir susipažinti su pateiktais ekspertizės aktais (pvz., 2014 m. birželio 12 d. statinio ekspertizės aktu Nr. SE 14/118 bei naujesniais 2025 m. aktais). Savivaldybė neatsako už nuostolius, kylančius dėl statinio būklės ar neatitikimo reikalavimams.
KULTŪROS PAVELDAS: Nors pats pastatas nėra įrašytas į Kultūros vertybių registrą, jis yra valstybės saugomos nekilnojamosios kultūros vertybės - Vilniaus senamiesčio, paskelbto kultūros paminklu (unikalus kodas - 16073) vizualinės apsaugos zonoje. Dėl to bet kokie statybos, remonto ar rekonstrukcijos darbai bus griežtai reglamentuojami Lietuvos Respublikos nekilnojamojo kultūros paveldo apsaugos įstatymu.
KOMUNALINĖS PASLAUGOS: Skolų už elektros energijos tiekimą šiam objektui nėra. Tačiau Savivaldybė negarantuoja nenutrūkstamo elektros tiekimo ar techniškai tvarkingo vidaus elektros tinklo. Visus su vidaus elektros tinklų remontu ir atnaujinimu susijusius kaštus ir riziką prisiima pirkėjas.
FINANSINĖS SĄLYGOS: Pradinis turto kaina – 100845 EUR. Privalomas mokėti Garantinis mokestis – 10084 EUR. Registracijos mokestis aukcione – 145 EUR. Sutartis su laimėtoju sudaroma per 30 dienų, visa pirkimo kaina sumokama per 10 dienų po sutarties pasirašymo.
SVARBI INFORMACIJA DĖL BŪKLĖS IR TEISINIŲ ASPEKTŲ: Nekilnojamasis turtas parduodamas esamos fizinės ir funkcinės būklės. Svarbu įvertinti, kad pastatas, kuriame yra šis butas, yra įregistruotas kaip avarinis (pagal 2014-09-17 Statinio pripažinimo avariniu aktą Nr. A32-2448/14). Aukciono dalyviams rekomenduojama atlikti išsamią turto apžiūrą ir susipažinti su pateiktais ekspertizės aktais (pvz., 2014 m. birželio 12 d. statinio ekspertizės aktu Nr. SE 14/118 bei naujesniais 2025 m. aktais). Savivaldybė neatsako už nuostolius, kylančius dėl statinio būklės ar neatitikimo reikalavimams.
KULTŪROS PAVELDAS: Nors pats pastatas nėra įrašytas į Kultūros vertybių registrą, jis yra valstybės saugomos nekilnojamosios kultūros vertybės - Vilniaus senamiesčio, paskelbto kultūros paminklu (unikalus kodas - 16073) vizualinės apsaugos zonoje. Dėl to bet kokie statybos, remonto ar rekonstrukcijos darbai bus griežtai reglamentuojami Lietuvos Respublikos nekilnojamojo kultūros paveldo apsaugos įstatymu.
KOMUNALINĖS PASLAUGOS: Skolų už elektros energijos tiekimą šiam objektui nėra. Tačiau Savivaldybė negarantuoja nenutrūkstamo elektros tiekimo ar techniškai tvarkingo vidaus elektros tinklo. Visus su vidaus elektros tinklų remontu ir atnaujinimu susijusius kaštus ir riziką prisiima pirkėjas.
FINANSINĖS SĄLYGOS: Pradinis turto kaina – 100845 EUR. Privalomas mokėti Garantinis mokestis – 10084 EUR. Registracijos mokestis aukcione – 145 EUR. Sutartis su laimėtoju sudaroma per 30 dienų, visa pirkimo kaina sumokama per 10 dienų po sutarties pasirašymo.
📍 Objekto lokacija
📍 Vilniaus m. sav. Vilniaus m. Jūratės g. 4-1
❓ Dažnai užduodami klausimai
Kokia nekilnojamojo turto Jūratės g. 4-1 pradinė kaina ir pardavimo būdas?
Pradinė buto Jūratės g. 4-1 kaina yra 100845 EUR. Pardavimas vyksta paskelbtame savivaldybės aukcione.
Kada vyksta šio buto aukciono registracija ir kada jis prasideda/baigiasi?
Registracija į aukcioną vyksta nuo 2026-05-18 00:00:00 iki 2026-05-20 23:59:59. Pats aukcionas vyks nuo 2026-05-25 09:00:00 iki 2026-05-26 13:59:59.
Kokios yra mokestinės prievolės dalyvaujant aukcione?
Privalomas Garantinis mokestis yra 10084 EUR, o Registracijos mokestis yra 145 EUR.
Kokios yra pagrindinės pastato būklės ir naudojimo sąlygos?
Pastatas, kuriame yra butas, yra pripažintas avariniu. Turtas parduodamas esamos būklės. Be to, objektas yra Vilniaus senamiesčio vizualinės apsaugos zonoje, kas reikš remontų ir tvarkymo apribojimus pagal Kultūros paveldo įstatymą.
Kaip galima apžiūrėti butą Jūratės g. 4-1 prieš aukcioną?
Apžiūros numatytos 2026-05-08 14:00 val. ir 2026-05-15 14:00 val. Būtina iš anksto suderinti laiką su atsakingu Antakalnio seniūnijos darbuotoju.
Kas yra nekilnojamojo turto pardavimo organizatorius ir kam mokėti įnašus?
Organizatorius yra Vilniaus miesto savivaldybės administracija (kodas 188710061). Garantinis įnašas ir registracijos mokestis turi būti sumokėti į Vilniaus miesto savivaldybės administracijos sąskaitą AB SEB banke (LT63 7044 0600 0123 5132).